4 Rishworth Street , Wakefield, West Yorkshire, WF1 3BY
- SIZE AVAILABLE
893 sq ft
83 sq m
- SECTOR
High street retail property to lease
Lease details
- Lease available date:
- Ask agent
Key features
- FORMER DENITIST SURGERY TO LET BY WAY OF ASSIGNMENT
- Very visible position
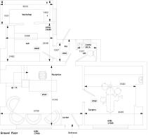
- Ground floor open plan space
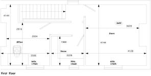
- First floor offices and kitchen
- Within easy walking distance of Westgate Railway Station and convenient for the M1 motorway
- Kitchen and wc facilities
Description
This is a superb self contained property offering broadly open plan accommodation at ground floor with the addition of a treatment room and lab to the rear. Along with Wc facilities. The first floor is divided to provide 2 private offices and kitchen. The property further benefits from a gas central heating system, security alarm, double glazing and small private yard.
The property is available by way of assignment with the lease expiring on the 3rd June 2029 with a passing rental of £12,000 per annum.
There is a user clause within the lease that the property must be used for dentistry or associated to dentistry purposes only. However, the landlord may consider alternative uses subject to a new lease being granted.
Interested parties should be aware that there is an outstanding rent review.
Bullets Points 1
FORMER DENITIST SURGERY
TO LET BY WAY OF ASSIGNMENT
Bullets Points 2
Very visible position
Bullets Points 3
Ground floor open plan space
Bullets Points 4
First floor offices and kitchen
Bullets Points 5
Within easy walking distance of Westgate Railway Station and convenient for the M1 motorway
Bullets Points 6
Kitchen and wc facilities
Brochures
4 Rishworth Street , Wakefield, West Yorkshire, WF1 3BY
NEAREST STATIONS
Distances are straight line measurements from the centre of the postcode- Wakefield Westgate Station0.3 miles
- Wakefield Kirkgate Station0.7 miles
- Sandal & Agbrigg Station1.8 miles
Notes
Disclaimer - Property reference 6998LH. The information displayed about this property comprises a property advertisement. Rightmove.co.uk makes no warranty as to the accuracy or completeness of the advertisement or any linked or associated information, and Rightmove has no control over the content. This property advertisement does not constitute property particulars. The information is provided and maintained by Vickers Carnley, Wakefield. Please contact the selling agent or developer directly to obtain any information which may be available under the terms of The Energy Performance of Buildings (Certificates and Inspections) (England and Wales) Regulations 2007 or the Home Report if in relation to a residential property in Scotland.
Map data ©OpenStreetMap contributors.






