
Welsh Row, Nantwich, Cheshire, CW5

- PROPERTY TYPE
Terraced
- BEDROOMS
8
- BATHROOMS
4
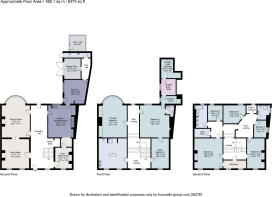
- SIZE
6,373 sq ft
592 sq m
- TENUREDescribes how you own a property. There are different types of tenure - freehold, leasehold, and commonhold.Read more about tenure in our glossary page.
Freehold
Key features
- A fantastic family home in a popular market town
- Spacious and well-proportioned throughout
- Accommodation extending to over 6,300 sq ft
- Large and private walled garden to the rear
- Off road parking and garage
- EPC Rating = D
Description
Description
Townwell House is an impressive and historically important house in the popular market town of Nantwich. Believed to date from 1710, the property is Grade II* listed and has a prominent position on Welsh Row.
The accommodation opens into a spacious reception hall which runs from the front to the rear of the property and features a panelled oak staircase to the first floor and understairs cupboard. To the left of the hall is the dining room with full height panelled walls and a large fireplace. The adjoining drawing room (also accessed from the hall) displays a fantastic bow window overlooking the rear courtyard and gardens.
On the other side of the hall is a sitting room/snug which has a door to the kitchen breakfast room. The focal point of this room is the four oven Aga cooker set into a full length stone recess. There is useful storage in the form of cupboards and drawers, and plenty of space for a large dining table. A door leads to a second kitchen, finished with additional storage and appliances.
The accommodation on the ground floor is completed by a rear corridor (with access into the garage) and a WC.
On the first floor and centred around the naturally light landing there is an impressive principal bedroom with Palladian window overlooking the rear. There is a second bedroom on this floor, a study and two bathrooms (one en suite). There is an extension with three rooms, which could provide extra accommodation or workspace. There is planning permission to use one of these rooms to enlarge the en-suite bathroom.
The second floor comprises five more bedrooms, a family bathroom, separate shower room, a wig room and linen room.
Outside
Vehicular access is off Townwell Court by proceeding through an archway to the side of the property which leads to brick pillared double entrance gates. The cobbled rear courtyard acts as a turning area and provides plenty of parking as well as access to the garage.
The walled gardens to the rear are delightful. Screened from the adjacent properties by mature shrubs and trees, the gardens are principally laid to lawn with a paved area featuring a pergola and stone fountain. There is also a large garden shed.
Location
Townwell House occupies a lovely position on Welsh Row, brilliantly situated to access the market town of Nantwich and all it has to offer.
There is an excellent range of day to day facilities, all within easy reach, and the property is well placed to access the major road networks for those planning to commute. Crewe station (less than 10 miles) has direct services to London Euston (from 1.5 hours).
Nantwich hosts many events throughout the year, including the annual Jazz Festival, the renowned Nantwich Show and the Food Festival. There are monthly farmer’s markets and a range of performances at the Players Theatre, all easily accessible from the property.
A large part of the town’s character and charm is the number of boutique shops and independent restaurants, located within attractive, historical buildings.
There are many popular schools at both primary and secondary levels in Nantwich and its surrounding villages. Alternatively, The Kings School (23 miles) and The Queens School (20 miles) are popular independent schools in Chester, and The Grange School in Hartford is 16.5 miles away.
Square Footage: 6,373 sq ft
Brochures
Web Details- COUNCIL TAXA payment made to your local authority in order to pay for local services like schools, libraries, and refuse collection. The amount you pay depends on the value of the property.Read more about council Tax in our glossary page.
- Band: H
- PARKINGDetails of how and where vehicles can be parked, and any associated costs.Read more about parking in our glossary page.
- Yes
- GARDENA property has access to an outdoor space, which could be private or shared.
- Yes
- ACCESSIBILITYHow a property has been adapted to meet the needs of vulnerable or disabled individuals.Read more about accessibility in our glossary page.
- Ask agent
Welsh Row, Nantwich, Cheshire, CW5
Add an important place to see how long it'd take to get there from our property listings.
__mins driving to your place
Get an instant, personalised result:
- Show sellers you’re serious
- Secure viewings faster with agents
- No impact on your credit score
Affordability
Notes
Staying secure when looking for property
Ensure you're up to date with our latest advice on how to avoid fraud or scams when looking for property online.
Visit our security centre to find out moreDisclaimer - Property reference CSS160160. The information displayed about this property comprises a property advertisement. Rightmove.co.uk makes no warranty as to the accuracy or completeness of the advertisement or any linked or associated information, and Rightmove has no control over the content. This property advertisement does not constitute property particulars. The information is provided and maintained by Savills, Chester. Please contact the selling agent or developer directly to obtain any information which may be available under the terms of The Energy Performance of Buildings (Certificates and Inspections) (England and Wales) Regulations 2007 or the Home Report if in relation to a residential property in Scotland.
*This is the average speed from the provider with the fastest broadband package available at this postcode. The average speed displayed is based on the download speeds of at least 50% of customers at peak time (8pm to 10pm). Fibre/cable services at the postcode are subject to availability and may differ between properties within a postcode. Speeds can be affected by a range of technical and environmental factors. The speed at the property may be lower than that listed above. You can check the estimated speed and confirm availability to a property prior to purchasing on the broadband provider's website. Providers may increase charges. The information is provided and maintained by Decision Technologies Limited. **This is indicative only and based on a 2-person household with multiple devices and simultaneous usage. Broadband performance is affected by multiple factors including number of occupants and devices, simultaneous usage, router range etc. For more information speak to your broadband provider.
Map data ©OpenStreetMap contributors.





