Belford, Northumberland
- PROPERTY TYPE
Land
- SIZE
Ask agent
Key features
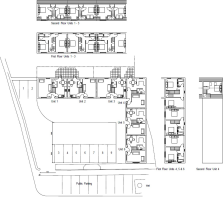
- Full planning consent to provide 6 residential units
- 4x town houses and 2x two storey properties
- Prominent village centre location on West Street, Belford
- Well-designed scheme with terraced and semi-detached style accommodation
- On-site parking provision including additional rear parking (circa 11 spaces)
- Freehold
- Recently demolished
Description
Site Overview:
A well-located residential development opportunity, the former “Belford Community Club” positioned on West Street in the centre of Belford. The site benefits from full planning consent for the construction of 6 residential units, with associated parking.
Planning Permission:
Full planning granted to create 4x town houses and 2x two storey properties
The Current Site:
The site has recently been demolished.
Total Site Area:
Approximately 910 sqm
Location:
Belford is a well-connected Northumberland village positioned just off the A1, providing access to Alnwick to the south and Berwick-upon-Tweed to the north.
Train Stations:
Alnmouth (approx. 15 miles)
Road Connections:
Direct access to the A1 trunk road
Local Amenities:
Village centre location with shops, pubs, and local services within walking distance.
Information Available Upon Request:
Brochure
GDV and SOA
Planning Decision Notice
Approved Plans, Elevations, Site Layout
Additional Technical Information
Contact the land team for the above information
Belford, Northumberland
NEAREST STATIONS
Distances are straight line measurements from the centre of the postcode- Chathill Station6.5 miles
Notes
Disclaimer - Property reference 0be9ac22-5923-4049-b4c4-75464965ec39. The information displayed about this property comprises a property advertisement. Rightmove.co.uk makes no warranty as to the accuracy or completeness of the advertisement or any linked or associated information, and Rightmove has no control over the content. This property advertisement does not constitute property particulars. The information is provided and maintained by Allen Heritage, Shirley. Please contact the selling agent or developer directly to obtain any information which may be available under the terms of The Energy Performance of Buildings (Certificates and Inspections) (England and Wales) Regulations 2007 or the Home Report if in relation to a residential property in Scotland.
Map data ©OpenStreetMap contributors.








