Office to lease
Loughton,IG10
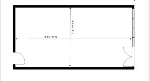
- SIZE AVAILABLE
450 sq ft
42 sq m
- SECTOR
Office to lease
Lease details
- Lease available date:
- Ask agent
- Lease type:
- Long term
- Furnish type:
- Unfurnished
Key features
- Close to M11
- Close to M25
- Parking outside office
- Close to train Station
- Manned Reception
- Flexible Terms
- Meeting Room Facilities
- Close to amenities
- 24 Hour access
- Communal kitchen & toilets
Description
Situated approx. 600 metres from M11 Junction 5 and approx. 10
minutes drive to M25 Junction 26 the site is ideal for commuters.
Public transport links are also available with Debden Underground
Station being just half a mile away. The station is situated on the
Central Line and provides direct access to Shepherds Bush, Stratford
and Oxford Circus. You can also be at London Liverpool Street in
approx. 30 minutes. A short walk from the site are a range of
businesses such as Wickes, TK Maxx, Barclays Bank and Straight Line
Tattoos. Food and beverage facilities are also available within
approx. 1 mile, including Greggs, Carlton London Café and
Sainsbury's. There are a range of facilities in the local area
including a gymnastics club, cricket and football. Some other
popular activities in the area include Top golf which is located
close to Woolston Manor and Country Club, both being less than two
miles to the site.
The Site-
The site is made up of 42 unit including 24 offices. There are a
variety of Office, Workshops and Studios at the site. Ideal for
start-ups and established businesses on an affordable, flexible,
rolling monthly contract. The easy-in/easy-out transparent monthly
licence fee includes parking, security, buildings insurance and
repairs. The site also provide full internet access and telecoms,
including set-up and adapting the services to suit your specific
needs. There is also a friendly centre management team are on hand
to assist with services including telephone answering service, mail
collection, use of photocopier and greeting visiting guests and much
more. There are meeting rooms available for usage onsite.
Included in the monthly rental are cleaning and lighting of common
areas, buildings insurance and external building maintenance. The
site is security patrolled and benefits from 24-hour CCTV. There is
on-site maintenance, landscaping and gardening.
UNIT D3
SIZE:- 450 sq ft
RENT- £1550 pcm + VAT
AGENT FEE*- £250 PLUS VAT
BUSINESS RATES- PAYABLE TO EPPING FOREST COUNCIL (SSBR Possible)
This attractive studio is an ideal location for up to 4-6 people with internal office and offering own entrance with signage above and convenient parking for you and your visitors. The license fee includes the cost of water rates, buildings insurance, high speed fibre internet, refuse collection, external repairs, lighting and cleaning to common areas, CCTV cameras, site
security and management. Equipped for all your communication and IT
services with Cat5e structured cabling system within the unit.
Electricity and phone/internet are supplied and charged separately.
Ample free parking
*PLEASE NOTE THAT AN AGENT FEE OF £250 + VAT WILL BE PAYABLE IF YOU
WISH TO TAKE UP TENANCY AT THIS UNIT OR ANY OTHER UNIT OWNED OR
MANAGED BY THE LANDLORD AT HIS/HERS SITES. THIS APPLIES FOR SIX
MONTHS FROM ORIGINAL ENQUIRY
Please note that these particulars do not form part of any offer or contract. All descriptions, photographs and plans are for guidance only and should not be relied upon as statements or representations of fact. All measurements are approximate
Loughton,IG10
NEAREST STATIONS
Distances are straight line measurements from the centre of the postcode- Debden Station0.2 miles
- Loughton Station1.5 miles
- Theydon Bois Station1.8 miles
Notes
Disclaimer - Property reference SeedbedD3. The information displayed about this property comprises a property advertisement. Rightmove.co.uk makes no warranty as to the accuracy or completeness of the advertisement or any linked or associated information, and Rightmove has no control over the content. This property advertisement does not constitute property particulars. The information is provided and maintained by Bell and Co Estate Agents Limited, Braintree. Please contact the selling agent or developer directly to obtain any information which may be available under the terms of The Energy Performance of Buildings (Certificates and Inspections) (England and Wales) Regulations 2007 or the Home Report if in relation to a residential property in Scotland.
Map data ©OpenStreetMap contributors.






