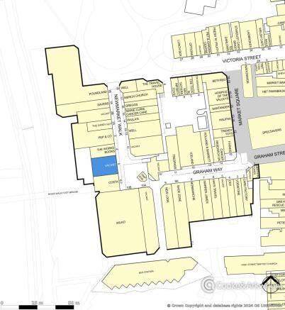
5 New Market Walk, St. Tydfil Square Shopping Centre, Merthyr Tudful, CF47 8EL
- SIZE AVAILABLE
5,680 sq ft
528 sq m
- SECTOR
High street retail property to lease
Lease details
- Lease available date:
- Ask agent
Key features
- Well Configured Unit
- Prominent Position Within Scheme
- Occupiers Nearby include; Greggs, Well Pharmacy, Poundland
Description
The unit can be accessed from New Market Walk, there is rear access for deliveries in
the service area.
Location
St Tydfil Shopping Centre is the prime shopping destination in Merthyr Tydfil Town Centre. Occupiers within the scheme include Poundland, Iceland, Costa, Greggs and Savers. Footfall figures can be provided upon request. The new bus station is located to the south of the scheme. Merthyr benefits from good transport links to neighbouring towns via the A470 and A465.
Viewings
By appointment via sole letting agents Cooke & Arkwright
Terms
The unit is available to let on the basis of a new lease for a term to be agreed via
effective full repairing and insuring terms via service charge
Planning
We understand that the property benefits from A1 use however other uses will be
considered subject to the tenant obtaining all necessary planning consents
5 New Market Walk, St. Tydfil Square Shopping Centre, Merthyr Tudful, CF47 8EL
NEAREST STATIONS
Distances are straight line measurements from the centre of the postcode- Merthyr Tydfil Station0.1 miles
- Pentre-bach Station1.6 miles
- Troed-y-rhiw Station2.7 miles
Notes
Disclaimer - Property reference 196943-2. The information displayed about this property comprises a property advertisement. Rightmove.co.uk makes no warranty as to the accuracy or completeness of the advertisement or any linked or associated information, and Rightmove has no control over the content. This property advertisement does not constitute property particulars. The information is provided and maintained by Cooke & Arkwright Limited, Retail & Leisure. Please contact the selling agent or developer directly to obtain any information which may be available under the terms of The Energy Performance of Buildings (Certificates and Inspections) (England and Wales) Regulations 2007 or the Home Report if in relation to a residential property in Scotland.
Map data ©OpenStreetMap contributors.




