Briar Croft, Alcester Road, Stratford-Upon-Avon, CV37 6PH
Size
218
Lease length
Ask agent
EPC
Ask agent
Parking
Ask agent
- Price per
- Primary use
- Other
Key features
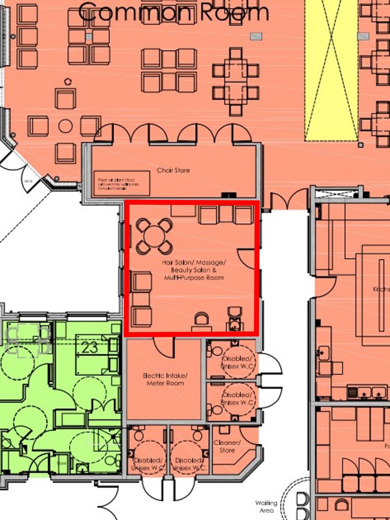
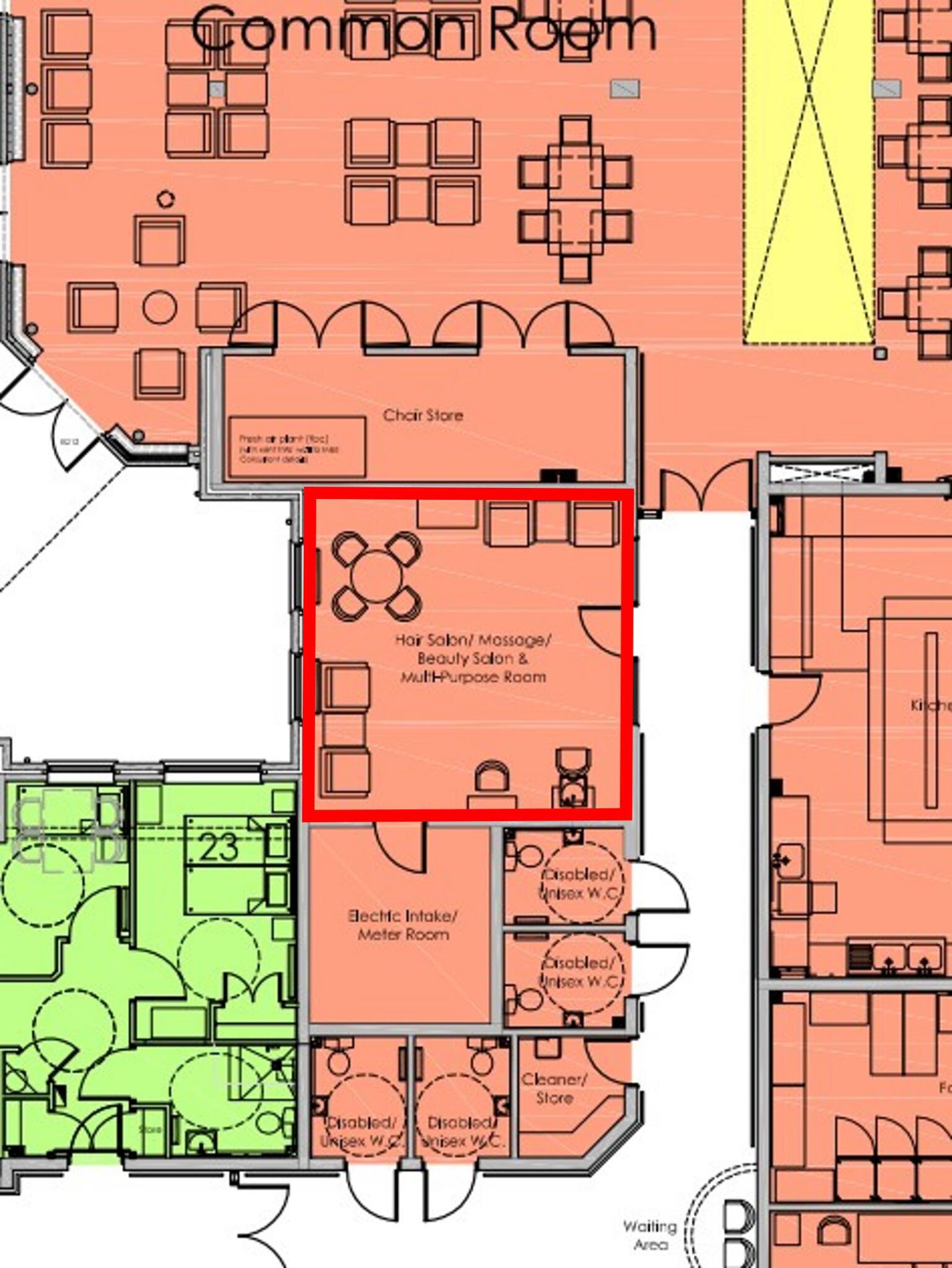
- Quality salon premises located within independent living scheme
- Adjacent to the Briar Croft cafe
- Electric heating
- View of the gardens
Description
Briar Croft is an independent living scheme located in central Stratford, less than a 5 minute walk to the town centre and train station. Alcester Road leads to Greenhill Street, which hosts numerous shops and restuarants. The buidling itself consists of 64 flats as well as extensive communal / reception areas and a cafe, which is adjacent to the salon.
Strictly by appointment with the agent Bromwich Hardy.
- Let type
- Long
- Let contract length
- Ask agent
- Status
- Available
- Date available
- 10 June 2025
- Service charge
- Ask agent
- Business rates
- Ask agent
- Use class
- Ask agent
- Floors in building
- 1
An Energy Performance certificate helps you understand the current energy efficiency of a property.
Read more about EPC requirementsAsk agent
- BREEAM rating
- Ask agent
- Environmental description
- Ask agent
Brochure
Briar Croft, Alcester Road, Stratford-Upon-Avon, CV37 6PH
Bromwich Hardy is a dynamic property consultancy and agency based in the heart of the Midlands, Coventry.
Founders of the company, Richard Hardy and Tom Bromwich, have over 50 years of experience between them, dealing with all aspects of the commercial property market.
They are both very well known in the industry and have complementary skills and expertise. Tom Bromwich has an unparalleled and intimate knowledge of the Midland's regional market and Richard Hardy has a deep understanding of how best to meet the needs of nation-wide organisations with interests right across the UK.
Your search history
You have no recent searches
Disclaimer - Property reference 296864-2. The information displayed about this property comprises a property advertisement. Rightmove.co.uk makes no warranty as to the accuracy or completeness of the advertisement or any linked or associated information, and Rightmove has no control over the content. This property advertisement does not constitute property particulars. The information is provided and maintained by Bromwich Hardy LLP, Coventry. Please contact the selling agent or developer directly to obtain any information which may be available under the terms of The Energy Performance of Buildings (Certificates and Inspections) (England and Wales) Regulations 2007 or the Home Report if in relation to a residential property in Scotland.










