2nd Floor, Warwick Gate, 21 Warwick Row, Coventry, CV1 1ET
Size
1,497
Lease length
Ask agent
EPC
Ask agent
Parking
Ask agent
- Price per
- Primary use
- Traditional office
- Capacity
- Ask agent
- Desks
- Ask agent
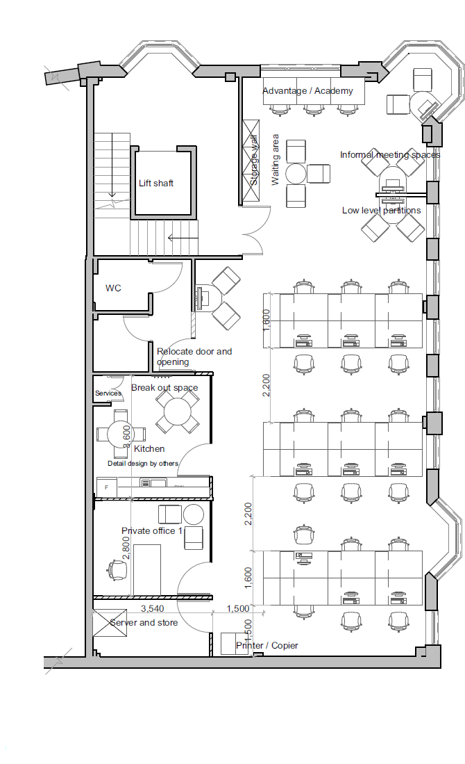
Key features
- Ample Natural Light
- City Centre Location
- Raised underfloor boxing
- Built-in Meeting Room
- Lift and Stair Access
- 2 car parking spaces in secure basement car park
- Fully Fitted Office that's Ready to Go
Description
The property is strategically located on the southern side of Coventry City Centre along Warwick Row, near its intersection with Greyfriars Road. Positioned close to Junction 6 of the City Centre Ring Road, it offers excellent connectivity across the city and the wider region. Additionally, the premises are within a short walking distance of Coventry's main railway station, the Friargate business district, and the City Centre South retail development, ensuring convenient access to key transport links, commercial hubs, and retail amenities.
Available by way of assignment of the current lease which runs to 3rd October 2028. No further rent reviews.
The current lease benefits from a photographic schedule of condition. The lease is within the protection of the Landlord and Tenant Act.
- Let type
- Long
- Let contract length
- Ask agent
- Status
- Available
- Date available
- 11 June 2025
- Service charge
- Ask agent
- Business rates
- Ask agent
- Use class
- Ask agent
An Energy Performance certificate helps you understand the current energy efficiency of a property.
Read more about EPC requirementsAsk agent
- BREEAM rating
- Ask agent
- Environmental description
- Ask agent
2nd Floor, Warwick Gate, 21 Warwick Row, Coventry, CV1 1ET
Bromwich Hardy is a dynamic property consultancy and agency based in the heart of the Midlands, Coventry.
Founders of the company, Richard Hardy and Tom Bromwich, have over 50 years of experience between them, dealing with all aspects of the commercial property market.
They are both very well known in the industry and have complementary skills and expertise. Tom Bromwich has an unparalleled and intimate knowledge of the Midland's regional market and Richard Hardy has a deep understanding of how best to meet the needs of nation-wide organisations with interests right across the UK.
Your search history
You have no recent searches
Disclaimer - Property reference 303157-2. The information displayed about this property comprises a property advertisement. Rightmove.co.uk makes no warranty as to the accuracy or completeness of the advertisement or any linked or associated information, and Rightmove has no control over the content. This property advertisement does not constitute property particulars. The information is provided and maintained by Bromwich Hardy LLP, Coventry. Please contact the selling agent or developer directly to obtain any information which may be available under the terms of The Energy Performance of Buildings (Certificates and Inspections) (England and Wales) Regulations 2007 or the Home Report if in relation to a residential property in Scotland.















