Berrington Road - Unit 2, Berrington Road - Unit 2, Leamington Spa, CV31 1NB
Size
6,514
Lease length
Ask agent
EPC
Ask agent
Parking
Ask agent
- Price per
- Primary use
- Distribution warehouse
- Other use(s)
- Light industrial, Light industrial, Light industrial
Key features
- Large size concrete forecourt
- High quality refurbished fit-out - Total spend £98,539
- 5 metres working height
- Fully renovated two storey offices
- Newly installed roof lights and modernised internal lighting
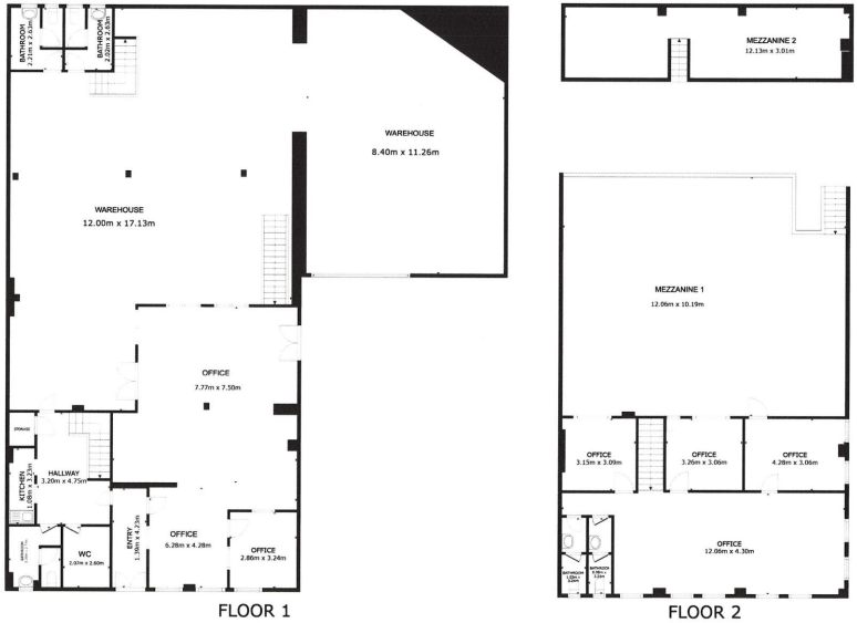
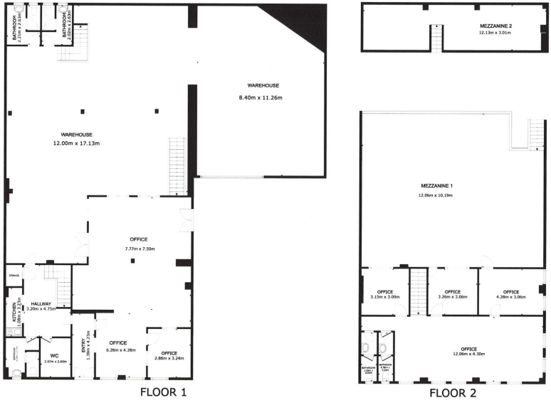
Description
amenity areas, plus extensive mezzanine store/ work area. There is also a side loading bay with steel roller shutter doors into a clear area. The main bay has a height to eaves of 5 metres and there are newly installed light panels in the roof. The offices are newly renovated and decorated with newly installed lighting and refurbished windows to the front and side. The unit therefore has excellent natural light. Externally there is a concrete surface parking and loading forecourt.
The property is situated on the popular Sydenham Industrial Estate, just a short distance from Leamington Town Centre. The nearby A425 offers easy access to areas east of the town, including Rugby, Daventry, and the M1 Motorway. Additionally, the M40 to the
southwest connects the town directly to the Midlands and the broader motorway network. Leamington benefits from a railway station with direct services to London and Birmingham. Furthermore, Birmingham International Airport is approximately 15 miles away.
- Clear height
- Ask agent
- Yard depth
- Ask agent
- Let type
- Long
- Let contract length
- Ask agent
- Status
- Available
- Date available
- 18 June 2025
- Service charge
- Ask agent
- Business rates
- Ask agent
- Use class
- Ask agent
- Floors in building
- 1
An Energy Performance certificate helps you understand the current energy efficiency of a property.
Read more about EPC requirementsAsk agent
- BREEAM rating
- Ask agent
- Environmental description
- Ask agent
Brochure
Berrington Road - Unit 2, Berrington Road - Unit 2, Leamington Spa, CV31 1NB
Bromwich Hardy is a dynamic property consultancy and agency based in the heart of the Midlands, Coventry.
Founders of the company, Richard Hardy and Tom Bromwich, have over 50 years of experience between them, dealing with all aspects of the commercial property market.
They are both very well known in the industry and have complementary skills and expertise. Tom Bromwich has an unparalleled and intimate knowledge of the Midland's regional market and Richard Hardy has a deep understanding of how best to meet the needs of nation-wide organisations with interests right across the UK.
Your search history
You have no recent searches
Disclaimer - Property reference 303764-2. The information displayed about this property comprises a property advertisement. Rightmove.co.uk makes no warranty as to the accuracy or completeness of the advertisement or any linked or associated information, and Rightmove has no control over the content. This property advertisement does not constitute property particulars. The information is provided and maintained by Bromwich Hardy LLP, Coventry. Please contact the selling agent or developer directly to obtain any information which may be available under the terms of The Energy Performance of Buildings (Certificates and Inspections) (England and Wales) Regulations 2007 or the Home Report if in relation to a residential property in Scotland.













