52 Ashdown Road, Worthing, BN11 1DE
Size
1,539
Tenure
Freehold
EPC
Parking
Ask agent
- Primary use
- Residential development
Key features
- Fully Let
- Producing £65,100pax
Description
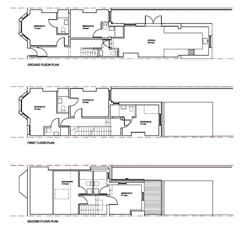
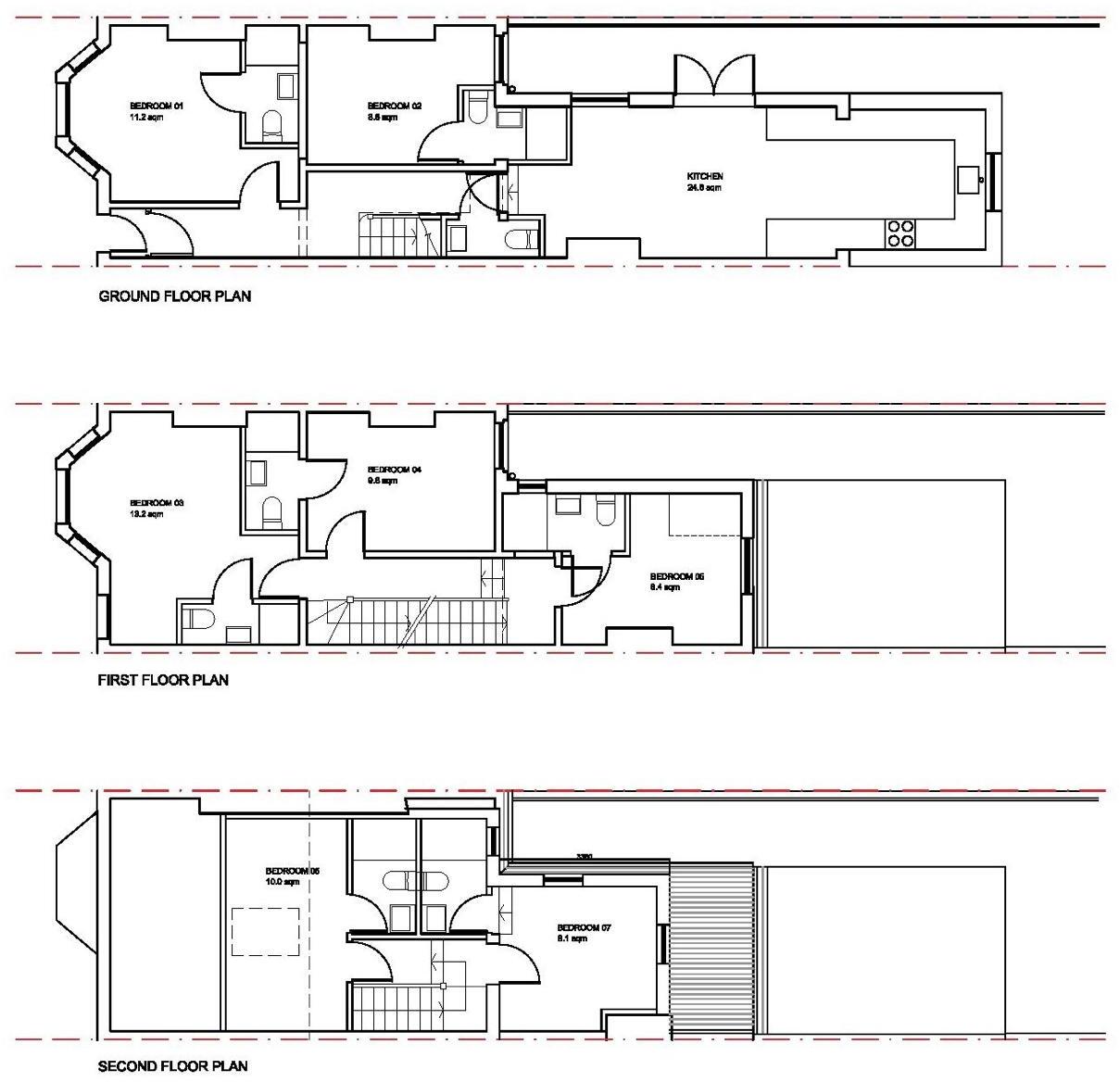
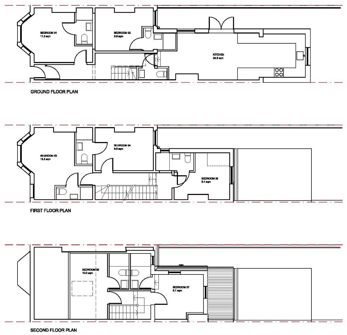
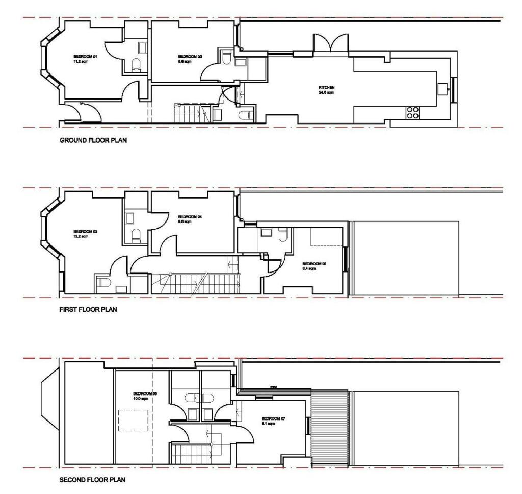
The property comprises of a mid terrace brick built building, the property was completely refurbished in 2023 and comprises of 7x bedrooms all en-suite over 3 floors with spacious kitchen area.
Internally the flats benefit from carpeted flooring with ample electrical sockets, double glazed windows and
adequate lighting. The en-suite facilities have vinyl flooring with WC, sink and showers. Included within the monthly rent is electricity, water, gas, cleaning of common parts, & Wi-Fi usage.
Each flat has access to an open plan kitchen which is furnished to a high standard, externally to front there is a small garden whilst at the rear there is a small courtyard.
Location
Located in Ashdown Road in the heart of Worthing Town Centre., Ashdown Road is situated at the northern end of the Town close the the large Morrisons supermarket whilst also being a short walk away from the major shopping & leisure streets of Montague Street, Warwick Street and South Street.
Viewings
Viewings can be arranged by the Vendors Sole Agent - Newlands Property
Terms
OIEO £710,000 for the freehold interest subject to the existing tenancies in place.
Running Costs
Current monthly running costs are circa £700pcm. These costs include cleaning of the common parts, insurance, broadband, utilities and Council Tax. Further information is available upon request.
Planning
Planning was granted in April 2024 under reference number AWDM/0129/24 for a change of use from small house in multiple occupation (C4) to a large house in multiple occupation (sui generis). Further information can be obtained from visiting or contacting the Local Planning Authority
- Service charge
- Ask agent
- Business rates
- Ask agent
- Use class
- Ask agent
- Listed building
- No
- Business for sale
- No
An Energy Performance certificate helps you understand the current energy efficiency of a property.
Read more about EPC requirements- BREEAM rating
- Ask agent
- Environmental description
- Ask agent
Brochure
52 Ashdown Road, Worthing, BN11 1DE
Your search history
You have no recent searches
Disclaimer - Property reference 333018-1. The information displayed about this property comprises a property advertisement. Rightmove.co.uk makes no warranty as to the accuracy or completeness of the advertisement or any linked or associated information, and Rightmove has no control over the content. This property advertisement does not constitute property particulars. The information is provided and maintained by NEWLANDS COMMERCIAL LIMITED, Newlands Commercial Limited. Please contact the selling agent or developer directly to obtain any information which may be available under the terms of The Energy Performance of Buildings (Certificates and Inspections) (England and Wales) Regulations 2007 or the Home Report if in relation to a residential property in Scotland.








