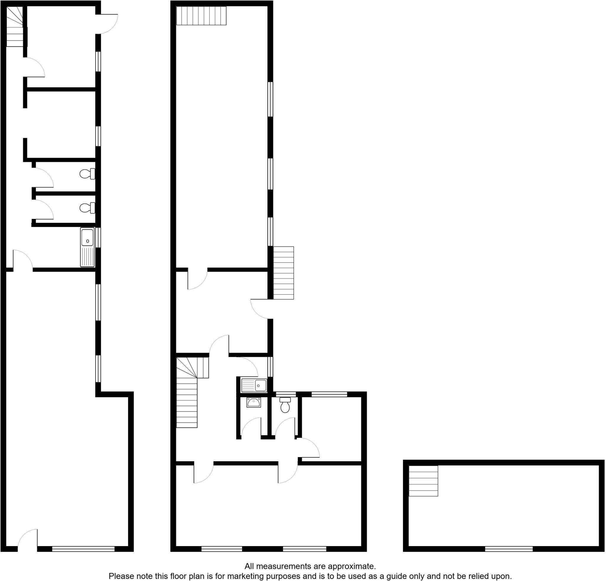
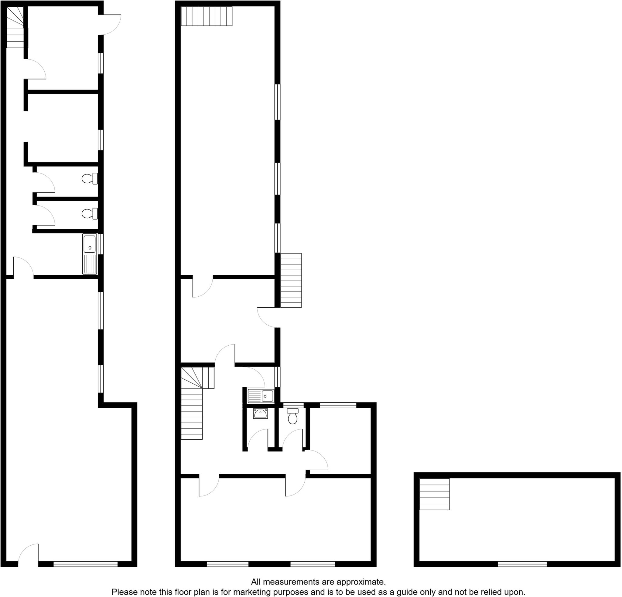
38 High Street, Northwood, HA6 1BN
Size
2,043
Tenure
Freehold
EPC
Parking
Ask agent
- Primary use
- Traditional office
- Capacity
- Ask agent
- Desks
- Ask agent
Key features
- Good parking facility
- Office building arranged over three floors
- Redevelopment potential STPP
- Sold with vacant possesion
Description
Ideally situated on High Street, Northwood, with easy access to a range of shopping faciltiies including Waitrose supermarket, a large range of restaurants and other amenities with the closest Underground Northwood (Metropolitan Line) station providing access to Baker Street and the City and beyond. There is a plethora of state and private schooling together with a wide choice of recreational facilities, which include golf courses and fitness centres. The A40, A312, M1, M40 and M25 motorways are also accessible.
- Service charge
- Ask agent
- Business rates
- Ask agent
- Use class
- E
- Listed building
- Ask agent
- Business for sale
- No
An Energy Performance certificate helps you understand the current energy efficiency of a property.
Read more about EPC requirementsAsk agent
- BREEAM rating
- Ask agent
- Environmental description
- Ask agent
Brochure
38 High Street, Northwood, HA6 1BN
Perry Holt Property Consultants, established in 2002, has grown into one of Hertfordshire’s leading commercial property specialists, known for its expertise, reliability, and results-driven approach.
We provide a highly dedicated and tailored service to a diverse range of clients, with a particular strength in property development and regeneration projects that help shape and revitalise communities. Our expertise spans the full spectrum of commercial property, including sales, acquisitions, lettings, and development.
Our success has been built on long-standing relationships founded on integrity, strong performance, and an unwavering commitment to client satisfaction. In an ever-changing market, we pride ourselves on delivering clear, insightful, and professional advice—empowering our clients to make confident and informed decisions at every stage of their property journey.
Your search history
You have no recent searches
Disclaimer - Property reference 278194-1. The information displayed about this property comprises a property advertisement. Rightmove.co.uk makes no warranty as to the accuracy or completeness of the advertisement or any linked or associated information, and Rightmove has no control over the content. This property advertisement does not constitute property particulars. The information is provided and maintained by PERRY HOLT PROPERTY CONSULTANTS, Hertfordshire. Please contact the selling agent or developer directly to obtain any information which may be available under the terms of The Energy Performance of Buildings (Certificates and Inspections) (England and Wales) Regulations 2007 or the Home Report if in relation to a residential property in Scotland.









