16 Hempsted Lane, Gloucester, GL2 5JD
Size
6,000
Lease length
Ask agent
EPC
Parking
Ask agent
- Price per
- POA
- Primary use
- Distribution warehouse
Key features
- City ring road location
- Side loading
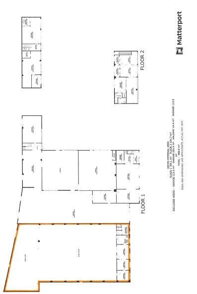
Description
Additionally, it benefits from side loading. Formally used as an engineering facility providing an ideal opportunity to locate in this central location.
The building is a warehouse with a truss roof. The modern frontage makes it easily identifiable from the ring road.
The premises is well located in Gloucester on the city ring road A430 Hempsted Lane. Located on the western side of Gloucester providing close links to the M5, A40, A38 and the A417.
It is situated within easy walking distance of Gloucester Quays, Gloucester City Centre and benefits from Sainsbury’s opposite the site.
- Clear height
- Ask agent
- Yard depth
- Ask agent
- Let type
- Long
- Let contract length
- Ask agent
- Status
- Available
- Date available
- 06 February 2025
- Service charge
- Ask agent
- Business rates
- Ask agent
- Use class
- Ask agent
- Floors in building
- 1
An Energy Performance certificate helps you understand the current energy efficiency of a property.
Read more about EPC requirementsAsk agent
- BREEAM rating
- Ask agent
- Environmental description
- Ask agent
Brochure
Drawing on many years of experience we are able to help you make the best decision for your business. All our clients will enjoy the same level of professional tailored service. No matter what your property needs are, we can help guide you along the way.
If you have a quick property related question or you need to review things in more detail we are here to help. We pride ourselves on being able to add value to you or your business, no matter how big, small or complicated your requirements are.
Your search history
You have no recent searches
Disclaimer - Property reference 279856-2. The information displayed about this property comprises a property advertisement. Rightmove.co.uk makes no warranty as to the accuracy or completeness of the advertisement or any linked or associated information, and Rightmove has no control over the content. This property advertisement does not constitute property particulars. The information is provided and maintained by WBM Commercial Property Limited, Swindon. Please contact the selling agent or developer directly to obtain any information which may be available under the terms of The Energy Performance of Buildings (Certificates and Inspections) (England and Wales) Regulations 2007 or the Home Report if in relation to a residential property in Scotland.




