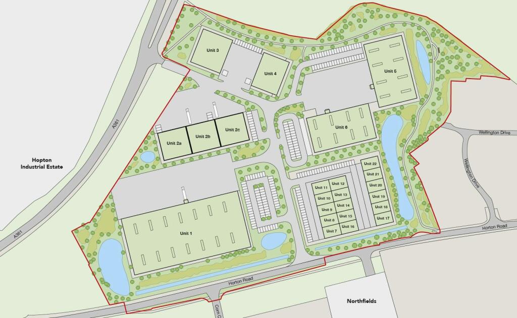
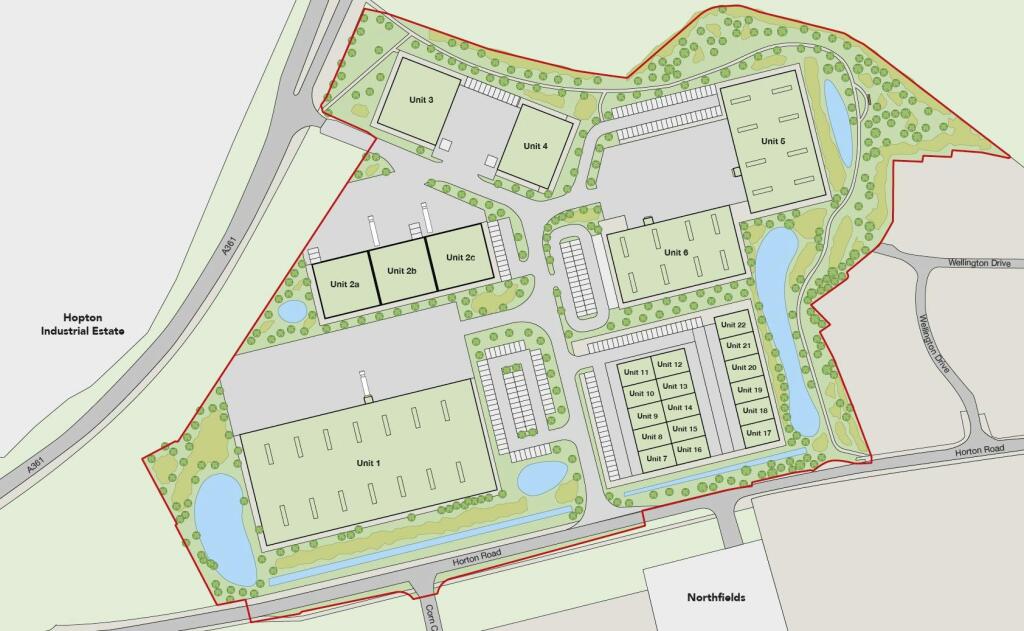
Moonraker Business Park, Horton Road, Devizes, SN10 2JL
Size
0.04017 - 1.607
Tenure
Freehold
EPC
Ask agent
Parking
Ask agent
- Primary use
- Commercial development
- Other use(s)
- Distribution warehouse, Light industrial
No floor / site plan
Key features
- Build to suit
- Leasehold or freehold
- Consent for Class B2, B8 and E
- Located adjacent to Hopton Industrial Estate, a well established industrial and commercial destination
Description
The site is capable of accommodating up to 269,095 sq ft (25,000 sq m).
Buildings can be designed in accordance with typical institutional specification or bespoke to suit specific occupier requirements.
The site is situated in a prominent gateway position adjacent to the A361 and Horton Road in Devizes, an attractive Wiltshire market town. Located adjacent to Hopton Industrial Estate, a well established industrial and commercial destination. Good connectivity to the South West regional centres of Swindon and Bristol.
- Service charge
- Ask agent
- Business rates
- Ask agent
- Use class
- B2, B8, E
- Listed building
- No
- Business for sale
- No
An Energy Performance certificate helps you understand the current energy efficiency of a property.
Read more about EPC requirementsAsk agent
- BREEAM rating
- Ask agent
- Environmental description
- Ask agent
Drawing on many years of experience we are able to help you make the best decision for your business. All our clients will enjoy the same level of professional tailored service. No matter what your property needs are, we can help guide you along the way.
If you have a quick property related question or you need to review things in more detail we are here to help. We pride ourselves on being able to add value to you or your business, no matter how big, small or complicated your requirements are.
Your search history
You have no recent searches
Disclaimer - Property reference 307906-1. The information displayed about this property comprises a property advertisement. Rightmove.co.uk makes no warranty as to the accuracy or completeness of the advertisement or any linked or associated information, and Rightmove has no control over the content. This property advertisement does not constitute property particulars. The information is provided and maintained by WBM Commercial Property Limited, Swindon. Please contact the selling agent or developer directly to obtain any information which may be available under the terms of The Energy Performance of Buildings (Certificates and Inspections) (England and Wales) Regulations 2007 or the Home Report if in relation to a residential property in Scotland.




