Upton Hall, Main Street, Newark, NG23 5TE
Size
0.5315
Tenure
Freehold
EPC
Ask agent
Parking
Ask agent
- Primary use
- Commercial development
- Other use(s)
- Traditional office
Key features
- Upton Hall is the headquarters of the British Horological Institute
- Grade II* Listed building with 72 rooms.
- The Hall houses the Museum of Time keeping and the BHI Headquarters.
- Approx GIA 23,152 sq ft (2,151 sq m)
- Offers are sought in the region of £2,300,000
Description
Upton Hall comprises a substantial country house in the Greek revival style, predominantly being of an early 19thcentury construction but incorporating earlier medieval and 17th century origins.
The property is Grade II* Listed, being of a traditional brick construction principally arranged over basement, and two storeys with stucco and colour wash elevations under a series of interlocking hipped roofs with slate covering and a feature dome parapet beneath which is situated a tetrastyleIonic portico with pediment.
Internally, the property is extremely well appointed being configured in a traditional arrangement of rooms and of particular note is the double height inner hall with cantilevered staircase and galleried landing. In addition, the ballroom with theatre and feature two storey bow window with Ionic pilasters and three curved sashes.
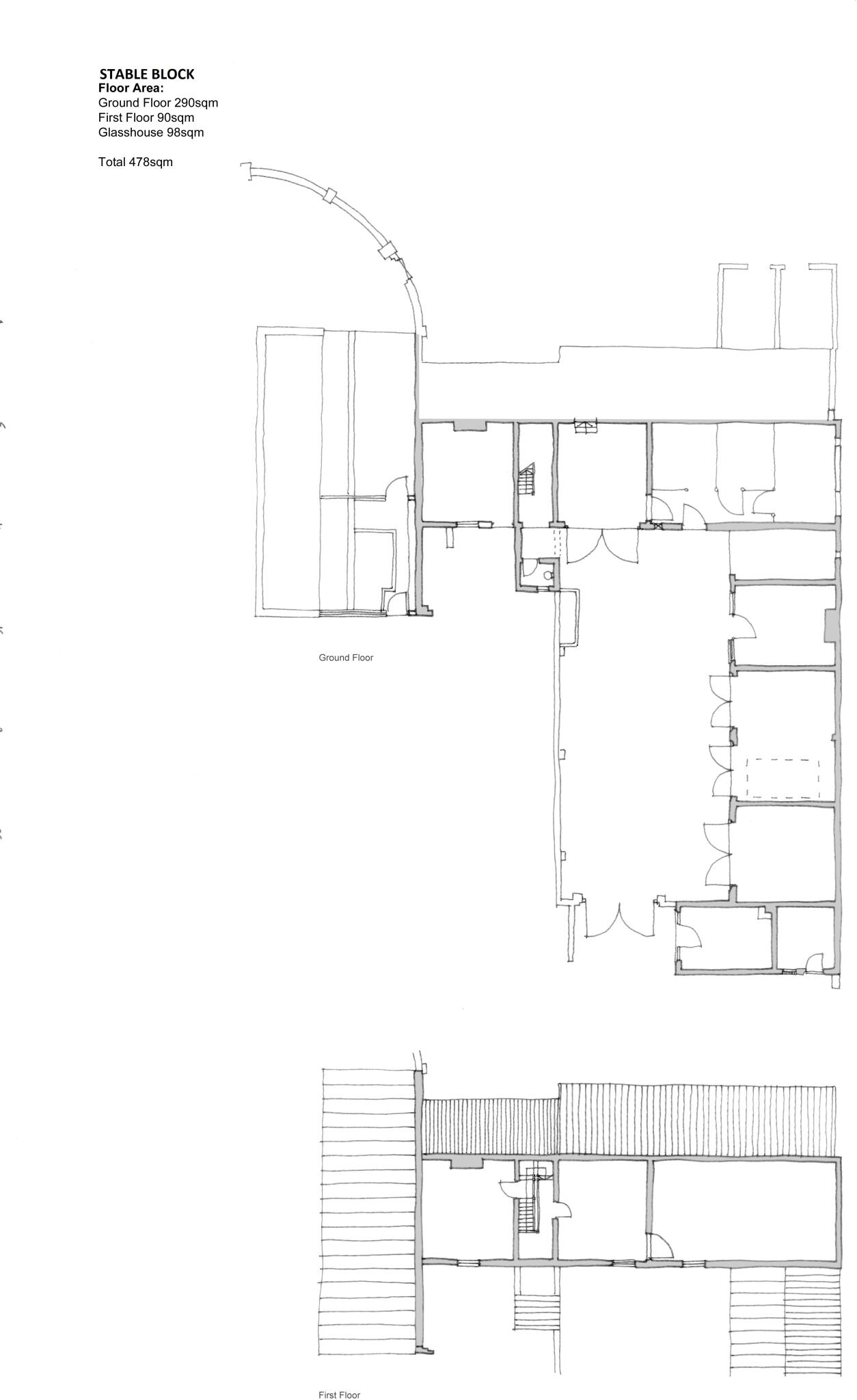
Externally, the property is approached via an integral service road on the northern boundary which provides for a dedicated car parking area and access to the former stableblock. The property sits within substantial landscaped grounds.
Location
Upton is an attractive village some 2 miles to the east of Southwell, a location which offers relatively direct access into the regional centres of Newark and Nottingham.
The property occupies a prominent position fronting Main Street to the west off which it has direct access, close to its junction with Hockerton Road.
Viewings
Strictly by appointment only with the Sole Agent, Savills.
Terms
Offers are sought in the region of £2,300,000.
- Service charge
- Ask agent
- Business rates
- Ask agent
- Use class
- Ask agent
- Listed building
- No
- Business for sale
- No
An Energy Performance certificate helps you understand the current energy efficiency of a property.
Read more about EPC requirementsAsk agent
- BREEAM rating
- Ask agent
- Environmental description
- Ask agent
Upton Hall, Main Street, Newark, NG23 5TE
Your search history
You have no recent searches
Disclaimer - Property reference 237604-1. The information displayed about this property comprises a property advertisement. Rightmove.co.uk makes no warranty as to the accuracy or completeness of the advertisement or any linked or associated information, and Rightmove has no control over the content. This property advertisement does not constitute property particulars. The information is provided and maintained by Savills, Nottingham. Please contact the selling agent or developer directly to obtain any information which may be available under the terms of The Energy Performance of Buildings (Certificates and Inspections) (England and Wales) Regulations 2007 or the Home Report if in relation to a residential property in Scotland.

















