55 Cross Street, Cowes, Cowes, PO31 7TA
Size
1,152 - 2,824
Tenure
Freehold
EPC
Parking
Ask agent
- Primary use
- Bar or nightclub
- Other use(s)
- Restaurant, Residential development, Restaurant
Key features
- Unique commercial and residential opportunity owned since 2011 character converted former School House
- Currently run as bar and restaurant dining and events venue with wider scope for other business uses (STPP)
- Highly sought after central Cowes location
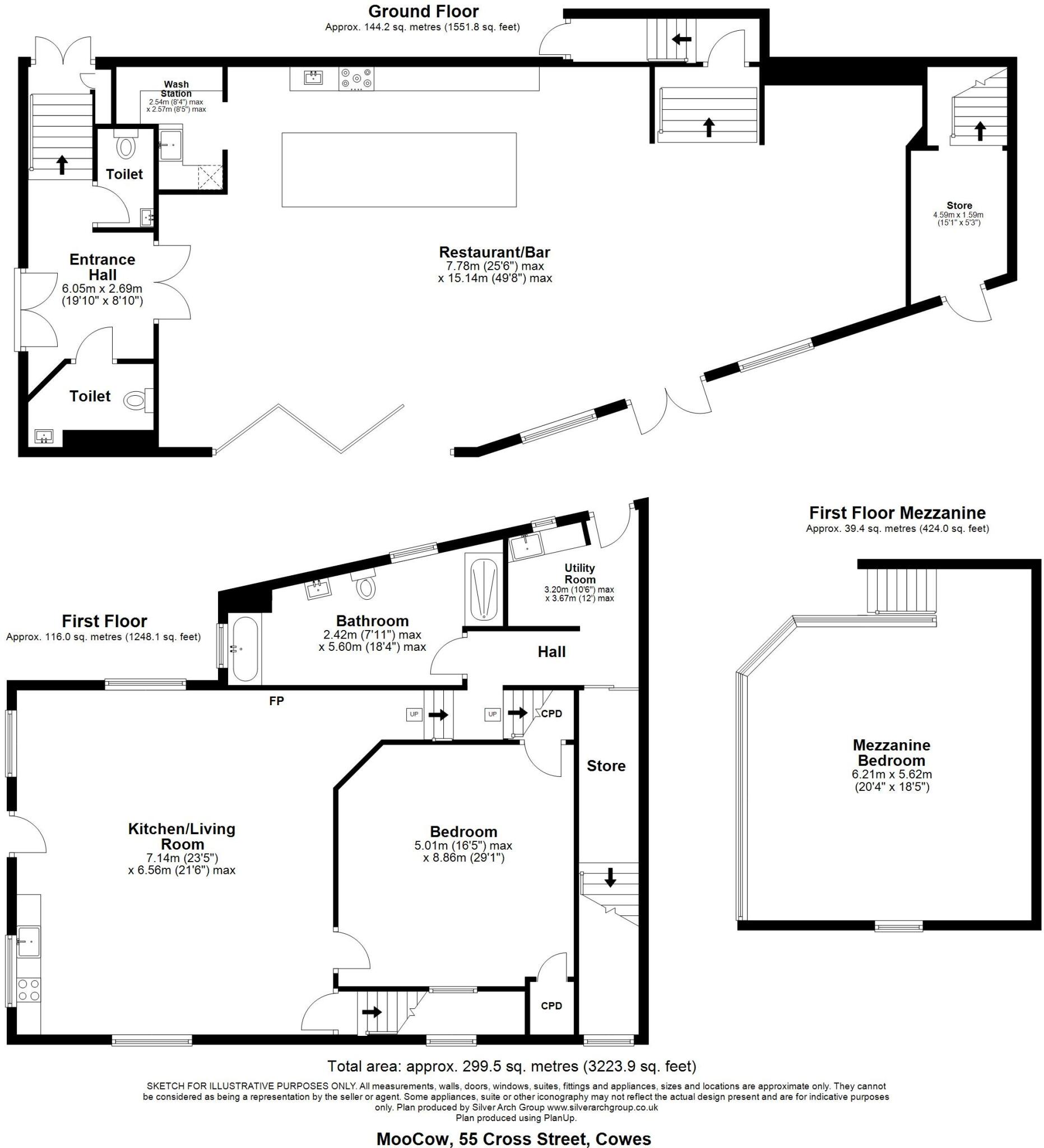
- Approximate GIA commercial (1,152 sq ft) and residential (1,672 sq ft)
- Freehold £725,000
Description
The property comprises of two distinct attached buildings with the restaurant being single storey with rendered and painted elevations under a flat roof. The living accommodation is single storey converted Victorian penny day school of stone construction under a pitched slate roof. To the rear, unique for this area, is a landscaped multi terrace garden.
Location
Moocow is located on the Isle of Wight in the centre of Cowes benefiting from being within walking distance to the RedJet Ferry terminal. The property occupies a prominent position just a few metres behind the main pedestrianised High Street where you will find a wide variety of independent retail and hospitality businesses. Located immediately adjacent is the Cross Street car park (69 spaces/EV).
Cowes is a busy harbour town; the waters of the Solent play host to the annual Cowes Week Regatta, Round the Island Race and a host of other sailing events and attracts significant visitors throughout the season.
Cowes and East Cowes have a combined total population of approximately 14,370 with the Isle of Wight 140,400 (2021 Census).
Commercial Space
The contemporary, bright and vibrant interior benefits from a long glazed return frontage with bi-fold doors. Currently the configuration provides an open plan kitchen and fitted bar servery with a separate preparation and wash-up room. The customer space features an open plan dining area for 30 customer seats (100 standing for functions) and soft seating. The fixtures and fittings are primarily of a high end design and include Corian worktops and a Dik Guerts log burner. Approximate GIA 1,152 sq ft.
Living Accommodation
The residential element to the property is highly desirable. This former school house has been extensively renovated, retaining some of the original features. An open plan living space with bespoke kitchenette including Quooker tap, a large bedroom, modern bathroom, separate utility room and a substantial mezzanine area. Approximate GIA 1,672 sq ft.
External
The space here is totally unique for the area, with two interconnected walled terraced areas which can be used as commercial or private spaces. These areas are designed in a Mediterranean style; features include paved and artificial grass ground cover, concrete outdoor kitchen, composite decking and white washed walls.
The Business
The business for the past 13 years of ownership, has become renowned across the Island as a bar, restaurant and events venue, but could lend itself to wide range of commercial orientated uses. Moocow is a sustainable “lifestyle business” currently operating just two days of the week; there is scope to extend trading days to meet demand. Please visit the Moocow website for more information.
EPC, Services & Rates
EPC C - 69. We understand all mains services are connected. The 2023 Rateable Value is £7,600. This is not the rates payable. Council Tax Band C.
Premises Licence
The property benefits from a premises licence granted by Isle of Wight Council (number 052042) which permits the sale of alcohol daily 10:00 - 00:00.
Tenure & Terms
Freehold Title (IW7260). Guide price £725,000.
The property will be sold with vacant possession upon completion. Fixtures and fittings which are owned outright by the vendor can be acquired by separate negotiation; stock can also be purchased in addition at valuation on completion of a sale.
Local Authority & Planning
Isle of Wight Council. We understand the property is considered to be Use Class E (Commercial) with part C3 (Residential). We recommend interested parties seek independent advice on all planning matters.
Conservation
The residential accommodation is situated in the early 19th century former Old Penny School building which is Grade II listed. The property is within the Cowes Conservation Area.
Viewings
We recommend a visit to the locality in the first instance before a formal viewing, however, our clients would welcome a conversation about the opportunity in person if visiting. Viewings can also be conducted remotely via video. All other enquiries should be directed to the sole selling agents, Savills.
- Service charge
- Ask agent
- Business rates
- Ask agent
- Use class
- E, C4
- Listed building
- No
- Business for sale
- No
An Energy Performance certificate helps you understand the current energy efficiency of a property.
Read more about EPC requirements- BREEAM rating
- Ask agent
- Environmental description
- Ask agent
Brochure
Your search history
You have no recent searches
Disclaimer - Property reference 304482-1. The information displayed about this property comprises a property advertisement. Rightmove.co.uk makes no warranty as to the accuracy or completeness of the advertisement or any linked or associated information, and Rightmove has no control over the content. This property advertisement does not constitute property particulars. The information is provided and maintained by Savills National , Southampton - Licensed Leisure . Please contact the selling agent or developer directly to obtain any information which may be available under the terms of The Energy Performance of Buildings (Certificates and Inspections) (England and Wales) Regulations 2007 or the Home Report if in relation to a residential property in Scotland.













