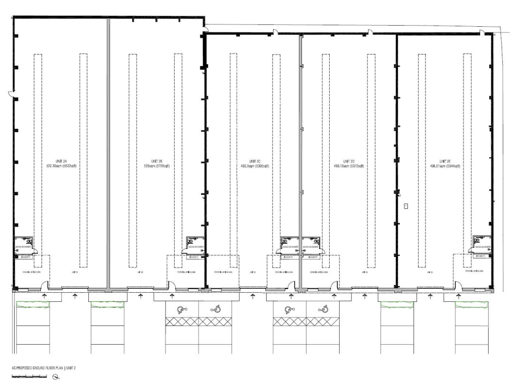
Unit 2A, Hookstone Park, Harrogate, HG2 7DB
Size
5,622
Lease length
Ask agent
EPC
Ask agent
Parking
Ask agent
Spaces
1
Key features
- Located in an established Industrial/Trade Counter location;
- Comprehensively refurbished with automated roller shutters, ancillary office space and allocated parking;
- Prominent location 2 miles east from town centre in the Starbeck area of Harrogate
- 5.5 miles from Junction 47 of the A1(M)
Description
Units 2A provide single storey warehouse/trade counter accommodation. The unit has undergone comprehensive refurbishment, suitable for B2 and B8 Trade Counter and industrial/distribution uses. The unit benefits from the following specification:
• Brick construction with a series of pitched roofs over clad with profile metal sheeting;
• Automated roller shutter door to each unit;
• Ancillary office and welfare facilities to each unit;
• Allocated car parking;
Location
The units are prominently positioned on Hookstone Park in the Starbeck area of Harrogate, approximately 2 miles east of the town centre. Access into the town centre is via Hookstone Chase and the A661, which links Harrogate with Wetherby and Junction 46 of the A1(M) approximately 8 miles to the south east. Junction 47 of the A1(M) is also accessible circa 5.5 miles to the east via Forest Moor Road and the A59.
Surrounding occupiers include Bettys & Taylors of Harrogate Ltd, Platinum HPL, Harvey George, Jollyes, Oldridge Windows, City Plumbing and Crown Decorating Centre.
Terms
The units are available to rent by way of a Full Repairing and Insuring lease on terms to be agreed. Full details are available on request from the agents.
EPC
B44
VAT & Legal Costs
VAT will be charged where applicable. Each party will be responsible for their own legal costs incurred in the transaction.
Robins Associate (Joint Agent)
- Let type
- Ask agent
- Let contract length
- Ask agent
- Status
- Available
- Date available
- 23 July 2025
- Service charge
- Ask agent
- Business rates
- Ask agent
- Use class
- Ask agent
An Energy Performance certificate helps you understand the current energy efficiency of a property.
Read more about EPC requirementsAsk agent
- BREEAM rating
- Ask agent
- Environmental description
- Ask agent
Unit 2A, Hookstone Park, Harrogate, HG2 7DB
Your search history
You have no recent searches
Disclaimer - Property reference 315476-2. The information displayed about this property comprises a property advertisement. Rightmove.co.uk makes no warranty as to the accuracy or completeness of the advertisement or any linked or associated information, and Rightmove has no control over the content. This property advertisement does not constitute property particulars. The information is provided and maintained by Savills, Leeds Industrial. Please contact the selling agent or developer directly to obtain any information which may be available under the terms of The Energy Performance of Buildings (Certificates and Inspections) (England and Wales) Regulations 2007 or the Home Report if in relation to a residential property in Scotland.





