Kilnwood Vale, Kilnwood Vale, Horsham, RH12 0BZ
Size
4,305 - 9,956
Lease length
Ask agent
EPC
Ask agent
Parking
Ask agent
Spaces
1
Key features
- A fully serviced greenfield freehold parcel of land with reserved matters planning permission for a public house
- A separate retail unit with planning permission for a convenience store granted
- Both elements form part of the Kilnwood Vale urban extension for 2,750 homes
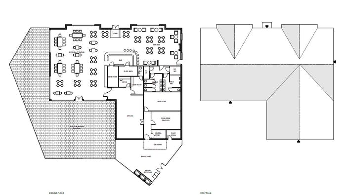
- 400 sq metre (4,305 sq ft) convenience store
- 525 sq metre (5,651 sq ft) public house
- Site area of 0.83 acres for public house
- Freehold Offers are invited for the pub site and Leasehold Offers for the convenience store.
Description
The site has reserved matters planning permission (REF:DC/23/0856) for a public house and convenience store (see yellow outlines on the aerial photo provided) on the scheme.
The site is fully remediated to a standard suitable for development. The site was formally ‘landfill’ that accepted inert wastes for disposal as a land raise operation from the early 1970s until its closure in May 2006. Crest Nicholson have undertaken all of the required remediation and warranties are available.
The site is gently sloping from south to north. A topographical survey is provided in the data room. The site is to be sold ‘as is’ in terms of the existing levels.
Savills are currently marketing the residential development plots on the neighbouring Phase 3DEFG, comprising 182 units. Crest Nicholson are retaining the remaining 98 units within that phase.
There are 8 additional retail units that will be available ‘To Let’ which will be available in due course, but any expressions of interest in this space is also invited.
For a detailed breakdown of planning, legal and technical information including reports, please refer to the Land Sale Pack and appendices included in the Data Room.
Location
Kilnwood Vale is a large-scale urban extension within close proximity to Gatwick, developed by Crest Nicholson, that is transforming a former landfill site into a community with housing, a primary school, employment, and retail uses, along with extensive green spaces. The project is designed to create a vibrant new neighbourhood, with a Neighbourhood Centre planned in phases, and has been recognised with an award for its sustainable brownfield regeneration.
Kilnwood Vale is situated on the western edge of Crawley to the north of the A264, west of Bewbush and east of Faygate. The site is located in the administrative boundary of Horsham District Council (HDC), with the eastern boundary of the site lying on the border of Crawley Borough Council (CBC).
Nearby towns include Crawley and Horsham which offer a good range of shops and services. Nearest supermarkets include a Tesco and Asda with an M&S Food and Tesco Express within a two mile drive of the site.
In 2019, Kilnwood Vale Primary School opened which has capacity for up to 420 students. A nursery was also opened at Kilnwood Vale in September 2024. Other nearby primary schools include Seymour Primary School, Southgate Primary, Northgate Primary School, Broadfield Primary Academy, and St Francis of Assisi Catholic Primary School. For secondary education, Ifield Community College and Thomas Bennett Community College are also in the area.
Title and Tenure
Public House - Freehold for sale with vacant possession.
Convenience Store – Leasehold (Term to be agreed), shell and core unit with capped services and vacant possession.
Guide Price/ Method of sale
Public House – The site is offered for sale by private treaty. Freehold offers are invited.
Convenience Store – The site is offered for sale by private treaty. Leasehold offers are invited
VAT
The Vendor has elected to charge VAT. VAT will be payable on the purchase price / rent.
Viewing
For a formal viewing strictly by appointment with Savills.
AML
Regulations require Savills to conduct various checks on purchasers and tenants. Further details are available upon request.
Data room
Further information including all drawings, technical information, surveys etc. is available to download from our online data room. Please contact Savills for access.
- Let type
- Long
- Let contract length
- Ask agent
- Status
- Available
- Date available
- 12 August 2025
- Service charge
- Ask agent
- Business rates
- Ask agent
- Use class
- Ask agent
An Energy Performance certificate helps you understand the current energy efficiency of a property.
Read more about EPC requirementsAsk agent
- BREEAM rating
- Ask agent
- Environmental description
- Ask agent
Brochure
Kilnwood Vale, Kilnwood Vale, Horsham, RH12 0BZ
Your search history
You have no recent searches
Disclaimer - Property reference 318513-2. The information displayed about this property comprises a property advertisement. Rightmove.co.uk makes no warranty as to the accuracy or completeness of the advertisement or any linked or associated information, and Rightmove has no control over the content. This property advertisement does not constitute property particulars. The information is provided and maintained by Savills National , Southampton - Licensed Leisure . Please contact the selling agent or developer directly to obtain any information which may be available under the terms of The Energy Performance of Buildings (Certificates and Inspections) (England and Wales) Regulations 2007 or the Home Report if in relation to a residential property in Scotland.













