Probus School Filling Station, Fore Street, Probus, Truro, TR2 4LZ
Size
Ask agent
Tenure
Freehold
EPC
Parking
Ask agent
- Primary use
- Petrol station
Key features
- Fuel volume circa 2 million litres pa
- Shop sales circa £27,000 per week
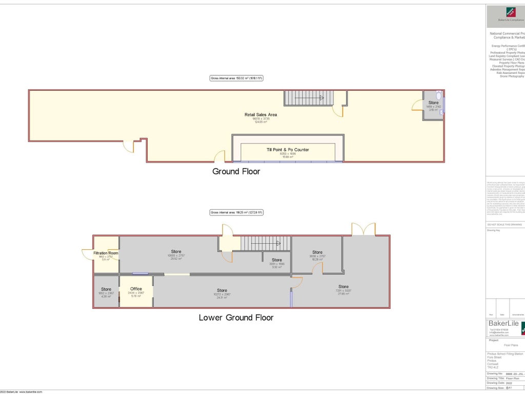
- Retail space in excess of c.1600 sq.ft.
- Planning approved for further extension
- Two jet wash bays, air and water station
- Energy Rating B – 32 Solar panelled roof & Borehole water supply
- Christie & Co Ref: 3217137
Description
The Gulf branded forecourt is situated in a prominent position on the main road through Probus. A spacious forecourt with four pumps and 24 nozzles. Customer parking across the site. Two jet wash stations plus air and water stations. The shop is presented to a high standard throughout with two EPOS counters and independent Post Office counter. Wide selection of produce, with fresh fruit and veg, dairy, beers and wines. Numerous fridges and freezers, everyday essentials, cards and gifts. There is a large storeroom on the lower floor which can be accessed via ramp to side for deliveries.
LocationSituated in central Cornwall, 4.2 miles from Truro to the west and 7.9 miles from St. Austell to the east. Probus is just off the A390 with the filling station being positioned on the main road through the town.
Fixtures & FittingsWe are advised that all fixtures and fittings are included in the sale subject to an inventory.
Forecourt & Shop DetailsThe Gulf branded forecourt is situated in a prominent position on the main road through Probus. A spacious forecourt with four pumps and 24 nozzles. Customer parking across the site. Two jet wash stations plus air and water stations. The shop is presented to a high standard throughout with two EPOS counters and independent Post Office counter. Wide selection of produce, with fresh fruit and veg, dairy, beers and wines. Numerous fridges and freezers, everyday essentials, cards and gifts. There is a large storeroom on the lower floor which can be accessed via ramp to side for deliveries.
Tanks:
We understand from the owner there are five tanks in total, with tank three decommissioned and tank five installed in 2022.
There is a five year fuel supply agreement with Certas which began June 2022.
A great opportunity to acquire a long established and well run petrol filling station in central Cornwall. The business is beautifully presented and highly profitable. The owners have worked hard make the filling station efficient with a 32 solar paneled roof and borehole water supply, modern fridges and freezers. With additional income from a post office counter and twin jet wash bay.
StaffThere are nine staff that will transfer under TUPE - two full-time and seven part-time.
Trading InformationMore detailed financials can be provided on request. Trading information for the year ending 2025, 2024 and 2023 is summarised below. for the full year Jan - Dec 2025 Turnover is £3,757,226.
Trading HoursCurrent trading hours are Monday – Saturday 7am – 8pm, Sunday 8am – 6pm.
TenureFreehold.
Business RatesThe rateable value as of April 2023 is £22,750.
- Service charge
- Ask agent
- Business rates
- Ask agent
- Use class
- Ask agent
- Listed building
- Ask agent
- Business for sale
- Yes
An Energy Performance certificate helps you understand the current energy efficiency of a property.
Read more about EPC requirementsAsk agent
- BREEAM rating
- Ask agent
- Environmental description
- Ask agent
Probus School Filling Station, Fore Street, Probus, Truro, TR2 4LZ
We’re the leading specialist advisor for buying and selling businesses in our sectors - hotels, pubs, restaurants, childcare, healthcare, convenience retail, leisure and medical.
If you’re looking to buy or sell a business in our specialist sectors – from a pharmacy in Sussex to a hotel in Austria – our expert advice and collaborative support will help you achieve your goals. You may be an independent first-time buyer or a multinational adding to your portfolio; either way, you’ll discover that our personalised service is focused on helping you achieve your ambitions.
Clients have access to our carefully managed network of potential buyers. This unique database of contacts has been continually developed by our advanced IT capabilities and benefits from both our years of experience developing our network and our wide geographical coverage.
Where we work
We employ the largest team of sector specialists in the UK and the largest group of hotel specialists in Europe, providing professional brokerage and advisory services from offices in major cities across Britain and Europe. And because we’ve been doing this for over 80 years, we know our sectors and local markets inside out. We work closely with our clients to guide and conclude transactions of any size, covering hotels, restaurants and pubs, leisure, forecourts and convenience retail businesses, social care and elderly care, childcare & education facilities, dental practices and pharmacies.
Our professional services
We offer unrivalled insight, experience and expertise across your choice of services, including brokerage, consultancy, finance, development, investment, surveying, rent reviews, dispute resolution, corporate valuation, and turnaround & recovery. These services are all underpinned by our in-depth market intelligence and leading-edge technology. And we’re accredited by the Royal Institution of Chartered Surveyors (RICS), so you can trust in our professionalism.
What makes us tick
Businesses are about people, so relationships matter to us. We bring an integrity and transparency to business which can be all too rare – and that’s why people trust us. Our clients will attest to our genuine desire to help achieve their objectives, our attention to detail, and our tireless hard work on their behalf. We understand that buying a business can bring its own pressures and strains; needs can change, plans may need to be adjusted, and opportunities can come and go. But we’re always here, a constant, flexible and reliable force you can count on.
Our opening hours for all offices:
Mon – Fri, 9am – 5.30pm
Your search history
You have no recent searches
Disclaimer - Property reference 3217137-fh. The information displayed about this property comprises a property advertisement. Rightmove.co.uk makes no warranty as to the accuracy or completeness of the advertisement or any linked or associated information, and Rightmove has no control over the content. This property advertisement does not constitute property particulars. The information is provided and maintained by Christie Owen & Davies Ltd, Retail. Please contact the selling agent or developer directly to obtain any information which may be available under the terms of The Energy Performance of Buildings (Certificates and Inspections) (England and Wales) Regulations 2007 or the Home Report if in relation to a residential property in Scotland.





















