John Livingston & Sons Butchers, 27 East Main Street, Whitburn, EH47 0RA
Size
Ask agent
Tenure
Freehold
EPC
Parking
Ask agent
- Primary use
- High street retail
- Frontage
- Ask agent
Key features
- Long Established Business - Great Reputation
- ANP of £51,760 for Y/E 31.03.24
- GPM of 45% for Y/E 31.03.24
- High Standard Preparation & Storage Areas
- Potential to Increase Sales with Deliveries
- Substantial Freehold Property with Parking to rear - Energy Rating A
- Christie & Co Ref: 5218671
Description
A long established traditional butchers business situated in the busy commuter town of Whitburn in West Lothian.
Preparing a large variety of fresh meats, pies and pastries on site the business has excellent preparation areas and equipment including ovens, a walk-in freezer and two walk in chillers.
The site is well located on the main road through the town with lots of footfall throughout the day. It is also a five minute walk from the high school.
Whitburn is a commuter town in West Lothian, Scotland, halfway between Scotland's two largest cities, around 23 miles east of Glasgow and 22 miles west of Edinburgh. It lies between junction 4 and 4a of the M8. The nearest major towns are Bathgate (four miles) and Livingston (six miles).
There are five primary schools and one main high school, Whitburn Academy.
The town has a population of c.12,000 with the subjects situated on the main commercial road through the town which hosts a large number of different businesses.
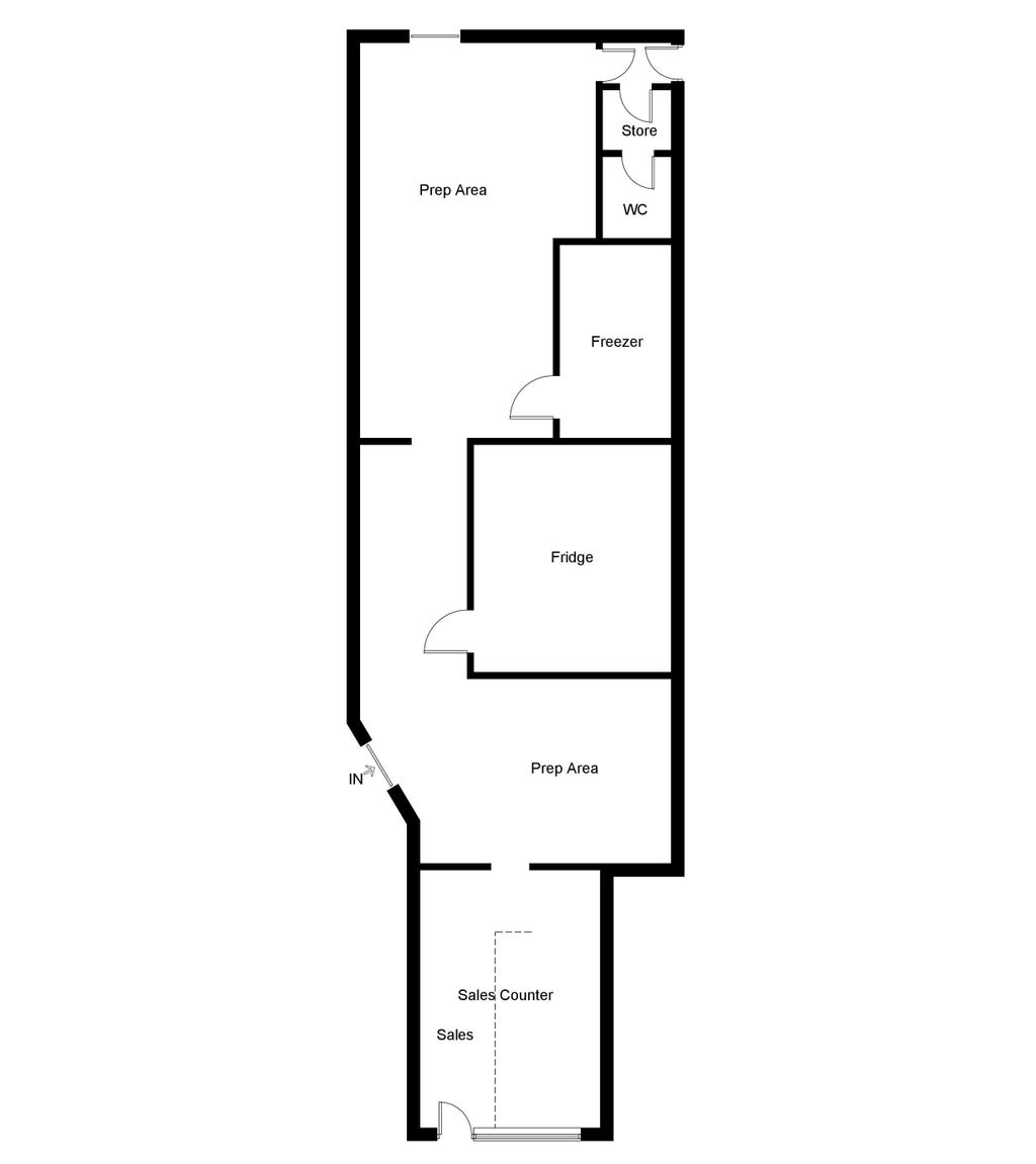
The shop has a main service area consisting of a large chiller counter with selection of fresh meats displayed. Pies and pastries are for sales behind the counter, with a selection of soft drinks, fruit and vegetables. Eggs are also available.
To the rear of the building there are two distinct preparation areas joined by a corridor, a walk-in freezer and two walk-in chillers, storage space and bathroom. There is also a full height roller door that leads to the yard for easy of deliveries.
We have been advised that all trade fixtures and fittings are owned outright and included within the sale/purchase.
External DetailsThe premises are part of a substantial two story detached building, with the business occupying the ground floor left hand side and extending out to the rear, with residential accommodation above and adjacent.
The OpportunityAn outstanding opportunity to secure a large freehold property housing a long established butchers business with potential to increase turnover.
Our clients have ran the business for many years and now wish to retire.
The business has a great reputation within Whitburn and beyond and would suit a current butcher looking to expand their business or incorporate another site into their portfolio.
There is huge scope to increase turnover with home deliveries or the supply of near by hospitality businesses. In store there is potential to increase the hot food options across the day, with breakfast lunch times providing a large number of school children leaving the academy in search of sustenance.
The business is ran by its two owners and part-time staff.
A full anonymized staff report can be produced for interested parties.
Transfer of Undertakings (Protection of Employment) Regulations (TUPE) will apply to any remaining staff.
Full business accounts are available and will be shared post viewing stage.
Trading HoursMonday - 6.00am to 5.00pm
Tuesday - 6.00am to 5.00pm
Wednesday - 6.00am to 1.00pm
Thursday - 6.00am to 5.00pm
Friday - 6.00am to 5.00pm
Saturday - 6.00am to 4.00pm
Sunday - Closed
Offered to the market at offers over £240,000 for the business and freehold interest.
Business RatesThe current Rateable Value as of 1 April 2023 is £8,300. This is subject to status and all interested parties are advised to check with the relevant local Authority.
- Service charge
- Ask agent
- Business rates
- Ask agent
- Use class
- Ask agent
- Listed building
- No
- Business for sale
- Yes
An Energy Performance certificate helps you understand the current energy efficiency of a property.
Read more about EPC requirementsAsk agent
- BREEAM rating
- Ask agent
- Environmental description
- Ask agent
John Livingston & Sons Butchers, 27 East Main Street, Whitburn, EH47 0RA
We’re the leading specialist advisor for buying and selling businesses in our sectors - hotels, pubs, restaurants, childcare, healthcare, convenience retail, leisure and medical.
If you’re looking to buy or sell a business in our specialist sectors – from a pharmacy in Sussex to a hotel in Austria – our expert advice and collaborative support will help you achieve your goals. You may be an independent first-time buyer or a multinational adding to your portfolio; either way, you’ll discover that our personalised service is focused on helping you achieve your ambitions.
Clients have access to our carefully managed network of potential buyers. This unique database of contacts has been continually developed by our advanced IT capabilities and benefits from both our years of experience developing our network and our wide geographical coverage.
Where we work
We employ the largest team of sector specialists in the UK and the largest group of hotel specialists in Europe, providing professional brokerage and advisory services from offices in major cities across Britain and Europe. And because we’ve been doing this for over 80 years, we know our sectors and local markets inside out. We work closely with our clients to guide and conclude transactions of any size, covering hotels, restaurants and pubs, leisure, forecourts and convenience retail businesses, social care and elderly care, childcare & education facilities, dental practices and pharmacies.
Our professional services
We offer unrivalled insight, experience and expertise across your choice of services, including brokerage, consultancy, finance, development, investment, surveying, rent reviews, dispute resolution, corporate valuation, and turnaround & recovery. These services are all underpinned by our in-depth market intelligence and leading-edge technology. And we’re accredited by the Royal Institution of Chartered Surveyors (RICS), so you can trust in our professionalism.
What makes us tick
Businesses are about people, so relationships matter to us. We bring an integrity and transparency to business which can be all too rare – and that’s why people trust us. Our clients will attest to our genuine desire to help achieve their objectives, our attention to detail, and our tireless hard work on their behalf. We understand that buying a business can bring its own pressures and strains; needs can change, plans may need to be adjusted, and opportunities can come and go. But we’re always here, a constant, flexible and reliable force you can count on.
Our opening hours for all offices:
Mon – Fri, 9am – 5.30pm
Your search history
You have no recent searches
Disclaimer - Property reference 5218671-fh. The information displayed about this property comprises a property advertisement. Rightmove.co.uk makes no warranty as to the accuracy or completeness of the advertisement or any linked or associated information, and Rightmove has no control over the content. This property advertisement does not constitute property particulars. The information is provided and maintained by Christie & Co, Retail. Please contact the selling agent or developer directly to obtain any information which may be available under the terms of The Energy Performance of Buildings (Certificates and Inspections) (England and Wales) Regulations 2007 or the Home Report if in relation to a residential property in Scotland.











