Ryan's Bargains, 10 Bridge Street, Downham Market, Norfolk, PE38 9DH
Size
Ask agent
Tenure
Leasehold
EPC
Parking
Ask agent
- Primary use
- Convenience store
- Frontage
- Ask agent
Key features
- Advised core weekly sales £8,500
- Gross Profit for the Y/E 31/12/2025: £116,016
- Potential to increase existing trade
- Free of symbol group ties
- 3-bedroom apartment included
- Finance available, subject to status, via Christie Finance. Energy Rating
- Annual rent: £25,000
- Christie & Co Ref: 1418288
Description
A rare opportunity to acquire this well-established store which is ideally positioned on the main High Street through Downham Market.
The business has become heavily relied upon by residents and enjoys further uplift of trade during the summer months.
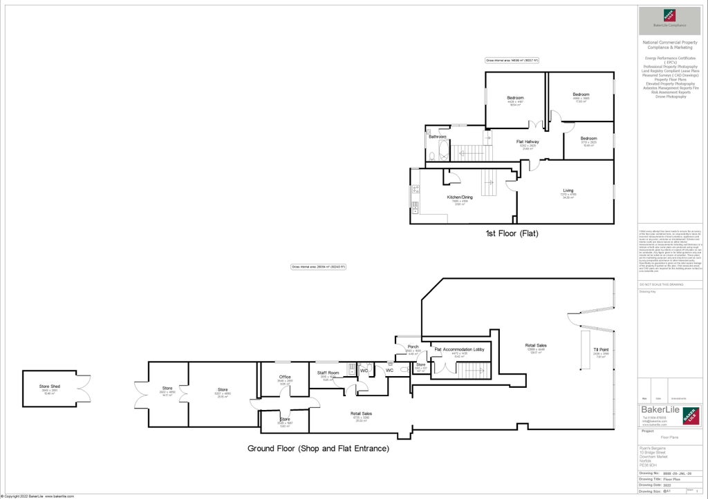
In addition to the store, this opportunity also includes a 3-bedroom self-contained flat above the store with further outside storage areas to the rear.
There is potential to increase trade via the means of longer opening hours, supplying and branding with a recognised supplier, and selling off-licence goods.
Situated on the bustling Bridge Street in Downham Market, this independently branded store enjoys a prime location within the heart of the town. Known for its historic charm and vibrant community, Downham Market attracts both locals and visitors, ensuring steady foot traffic throughout the year
.
This generously sized store includes a 3-bedroom apartment above, offering convenient living space alongside the business premises. The property benefits from high visibility and accessibility, with major routes such as the A10 and A1122 nearby, connecting it to surrounding towns and cities
The convenience store has a mainly open plan sales area of approximately 1,668 sq./ft (155sq/m) with chiller aisles lining the perimeter of the store.
The shop is fitted and equipped for the sale of convenience goods, chilled and frozen products, a full off licence, confectionary, cigarettes, newspapers, magazines, stationary, local products and pharmacy and medical products.
The main sales till is located at the front of the store with additional storage space to the rear.
There is also a communal staff area, office space and W/C occupying the ancillary areas.
We are advised by our clients that the fixtures and fittings are wholly owned and will be included within the sale.
External DetailsThere is additional access, parking and outside storage areas to the rear of the property.
Owner's AccommodationThere is a spacious 3-bedroom apartment included within the lease. This well presented flat has an open plan lounge, kitchen, diner and separate bedrooms and bathroom. Also, there is further space to the rear for parking and storage.
The OpportunityThis profitable business has been privately owned and operated by our vendors for over 4-years and are looking to sell to explore other business opportunities.
This popular convenience store derives its sales from traditional c-store good such as tobacco, alcohol, news and magazines, fresh, chilled and frozen foods, grocery products, bread and bakery, confectionary, snacks and soft drinks. Additional services include Lottery, scratch cards.
The business is run with the assistance of part time and full-time members of staff.
The Transfer of Undertakings Protection of Employment (TUPE) regulations shall apply to all employees, requiring purchasers to offer continuity of employment to all staff.
Accounts for period ending 31/12/2024 show sales of £400,432 and a gross profit of £138,210.
Further and more detailed trading information will be made available to interested parties following a viewing of the business.
Store opening hours:
Monday-Saturday 6am-6pm
Sunday- 7am-4pm
This will be the granting of a new lease. The landlord has suggested they will be agreeable to a new 10-year lease (subject to approval) with an annual passing rent in the region of £25,000.
Business RatesThe VOA web portal states that the Rateable Value (1st April 2023 to present) is £22,000.
- Service charge
- Ask agent
- Business rates
- Ask agent
- Use class
- Ask agent
- Listed building
- No
- Business for sale
- Yes
- Tenure
- Leasehold
- Length of lease
- Ask agent
An Energy Performance certificate helps you understand the current energy efficiency of a property.
Read more about EPC requirementsAsk agent
- BREEAM rating
- Ask agent
- Environmental description
- Ask agent
Brochure
Ryan's Bargains, 10 Bridge Street, Downham Market, Norfolk, PE38 9DH
We’re the leading specialist advisor for buying and selling businesses in our sectors - hotels, pubs, restaurants, childcare, healthcare, convenience retail, leisure and medical.
If you’re looking to buy or sell a business in our specialist sectors – from a pharmacy in Sussex to a hotel in Austria – our expert advice and collaborative support will help you achieve your goals. You may be an independent first-time buyer or a multinational adding to your portfolio; either way, you’ll discover that our personalised service is focused on helping you achieve your ambitions.
Clients have access to our carefully managed network of potential buyers. This unique database of contacts has been continually developed by our advanced IT capabilities and benefits from both our years of experience developing our network and our wide geographical coverage.
Where we work
We employ the largest team of sector specialists in the UK and the largest group of hotel specialists in Europe, providing professional brokerage and advisory services from offices in major cities across Britain and Europe. And because we’ve been doing this for over 80 years, we know our sectors and local markets inside out. We work closely with our clients to guide and conclude transactions of any size, covering hotels, restaurants and pubs, leisure, forecourts and convenience retail businesses, social care and elderly care, childcare & education facilities, dental practices and pharmacies.
Our professional services
We offer unrivalled insight, experience and expertise across your choice of services, including brokerage, consultancy, finance, development, investment, surveying, rent reviews, dispute resolution, corporate valuation, and turnaround & recovery. These services are all underpinned by our in-depth market intelligence and leading-edge technology. And we’re accredited by the Royal Institution of Chartered Surveyors (RICS), so you can trust in our professionalism.
What makes us tick
Businesses are about people, so relationships matter to us. We bring an integrity and transparency to business which can be all too rare – and that’s why people trust us. Our clients will attest to our genuine desire to help achieve their objectives, our attention to detail, and our tireless hard work on their behalf. We understand that buying a business can bring its own pressures and strains; needs can change, plans may need to be adjusted, and opportunities can come and go. But we’re always here, a constant, flexible and reliable force you can count on.
Our opening hours for all offices:
Mon – Fri, 9am – 5.30pm
Your search history
You have no recent searches
Disclaimer - Property reference 1418288-lh. The information displayed about this property comprises a property advertisement. Rightmove.co.uk makes no warranty as to the accuracy or completeness of the advertisement or any linked or associated information, and Rightmove has no control over the content. This property advertisement does not constitute property particulars. The information is provided and maintained by Christie Owen & Davies Ltd, Retail. Please contact the selling agent or developer directly to obtain any information which may be available under the terms of The Energy Performance of Buildings (Certificates and Inspections) (England and Wales) Regulations 2007 or the Home Report if in relation to a residential property in Scotland.




















