One Stop, 6 St. Peters Road, Great Yarmouth, Norfolk, NR30 3AY
Size
Ask agent
Tenure
Freehold
EPC
Parking
Ask agent
- Primary use
- Convenience store
- Frontage
- Ask agent
Key features
- Freehold Lock-up unit for sale
- Situated in the heart of local community
- Advised core weekly sales c. £12,000 per week
- Potential to increase existing trade
- High quality fixtures and fittings
- Finance available, subject to status, via Christie Finance. Energy Rating B.
- Christie & Co Ref: 1418290
Description
A rare opportunity to acquire this well-established store which is ideally positioned within the heart of a residential housing estate and benefits from high levels of passing foot traffic.
The premises which will be included within the lease agreement occupies this commercial unit only, and is considered a “lock-up” opportunity, with NO residential dwelling included.
The business has become very popular and is heavily relied upon by nearby residents and those using the nearby amenities.
The One Stop store enjoys a prime trading position in the heart of a residential housing area in Great Yarmouth, Norfolk.
Situated on St. Peters Road itself, the store fronts a well-frequented main road and serves the surrounding community with ease.
This purpose-built retail unit sits within a local shopping parade, ensuring strong accessibility for both local residents and passing trade. The store is primarily accessed via the A12, which connects Great Yarmouth to Lowestoft in the south and Norwich to the northwest.
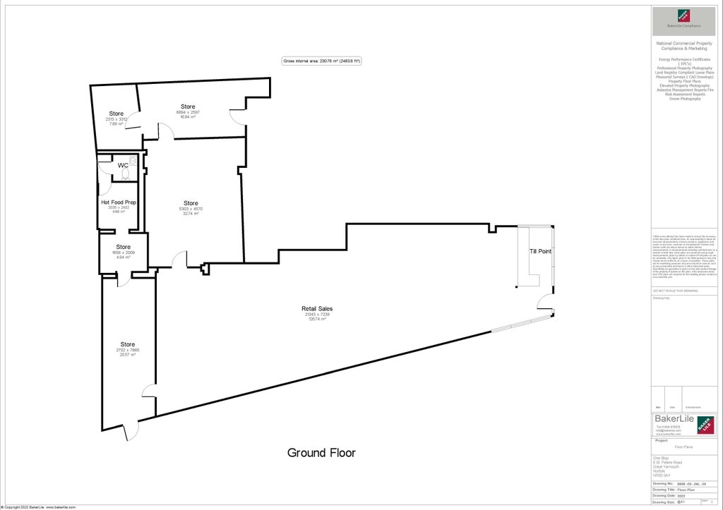
The convenience store has a mainly open plan sales area of approximately 1,593 sq./ft (148 sq/m) with chiller aisles lining the perimeter of the store.
The shop is fitted and equipped for the sale of convenience goods, chilled and frozen products, a full off licence, confectionary, cigarettes, newspapers, magazines, stationary, local products and pharmacy and medical products.
Additional services include Payzone and Evri parcel delivery services.
The main sales till is located at the front of the store with additional storage space to the rear. There is also a communal staff area, office space and W/C occupying the ancillary areas.
We are advised by our clients that the fixtures and fittings are wholly owned and will be included within the sale.
External DetailsThis double fronted, well-lit shop front offers disabled access and on street parking.
The OpportunityThis profitable store which was previously a McColl’s shop, has recently been re-fitted and branded with the symbol group, One Stop.
We are advised there is 4-years remaining of a 5-year supply agreement.
In addition, sales are mainly derived from traditional convenience sales including tobacco, alcohol, news and magazines, fresh, chilled and frozen foods, grocery products, bread and bakery, confectionary, snacks and soft drinks. Additional services include Payzone and Evri parcel deliveries.
The business is run with the assistance of part time and full-time members of staff.
The Transfer of Undertakings Protection of Employment (TUPE) regulations shall apply to all employees, requiring purchasers to offer continuity of employment to all staff.
Trading information available upon request for seriously interested parties.
Trading HoursStore opening hours:
Monday- Sunday – 06:00am – 1:00am
The freehold unit for the shop only is for sale at a figure of £275,000 on an asset sale basis.
Otherwise, if you are interested in purchasing the leasehold interest only, this sale is an assignment of lease.
The current lease expires 26/07/2039 with an original term length of 15-years. The annual passing rent is £12,000.
The VOA web portal states that the Rateable Value (1st April 2017- 2021) is £17,000.
- Service charge
- Ask agent
- Business rates
- Ask agent
- Use class
- Ask agent
- Listed building
- Ask agent
- Business for sale
- Yes
An Energy Performance certificate helps you understand the current energy efficiency of a property.
Read more about EPC requirementsAsk agent
- BREEAM rating
- Ask agent
- Environmental description
- Ask agent
Brochure
One Stop, 6 St. Peters Road, Great Yarmouth, Norfolk, NR30 3AY
We’re the leading specialist advisor for buying and selling businesses in our sectors - hotels, pubs, restaurants, childcare, healthcare, convenience retail, leisure and medical.
If you’re looking to buy or sell a business in our specialist sectors – from a pharmacy in Sussex to a hotel in Austria – our expert advice and collaborative support will help you achieve your goals. You may be an independent first-time buyer or a multinational adding to your portfolio; either way, you’ll discover that our personalised service is focused on helping you achieve your ambitions.
Clients have access to our carefully managed network of potential buyers. This unique database of contacts has been continually developed by our advanced IT capabilities and benefits from both our years of experience developing our network and our wide geographical coverage.
Where we work
We employ the largest team of sector specialists in the UK and the largest group of hotel specialists in Europe, providing professional brokerage and advisory services from offices in major cities across Britain and Europe. And because we’ve been doing this for over 80 years, we know our sectors and local markets inside out. We work closely with our clients to guide and conclude transactions of any size, covering hotels, restaurants and pubs, leisure, forecourts and convenience retail businesses, social care and elderly care, childcare & education facilities, dental practices and pharmacies.
Our professional services
We offer unrivalled insight, experience and expertise across your choice of services, including brokerage, consultancy, finance, development, investment, surveying, rent reviews, dispute resolution, corporate valuation, and turnaround & recovery. These services are all underpinned by our in-depth market intelligence and leading-edge technology. And we’re accredited by the Royal Institution of Chartered Surveyors (RICS), so you can trust in our professionalism.
What makes us tick
Businesses are about people, so relationships matter to us. We bring an integrity and transparency to business which can be all too rare – and that’s why people trust us. Our clients will attest to our genuine desire to help achieve their objectives, our attention to detail, and our tireless hard work on their behalf. We understand that buying a business can bring its own pressures and strains; needs can change, plans may need to be adjusted, and opportunities can come and go. But we’re always here, a constant, flexible and reliable force you can count on.
Our opening hours for all offices:
Mon – Fri, 9am – 5.30pm
Your search history
You have no recent searches
Disclaimer - Property reference 1418290-fh. The information displayed about this property comprises a property advertisement. Rightmove.co.uk makes no warranty as to the accuracy or completeness of the advertisement or any linked or associated information, and Rightmove has no control over the content. This property advertisement does not constitute property particulars. The information is provided and maintained by Christie Owen & Davies Ltd, Retail. Please contact the selling agent or developer directly to obtain any information which may be available under the terms of The Energy Performance of Buildings (Certificates and Inspections) (England and Wales) Regulations 2007 or the Home Report if in relation to a residential property in Scotland.






















