The Major Yorke Studios, 5-11 Langton Road, Tunbridge Wells, TN4 8XA
Size
Ask agent
Tenure
Freehold
EPC
Parking
Ask agent
- Primary use
- Hotel
Key features
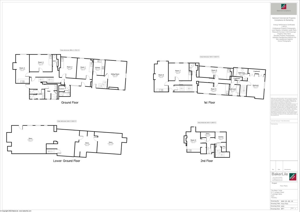
- 8 bed-sits, 1 studio & 1 self-contained flat
- Short walk into Tunbridge Wells town centre
- Set over 4 floors, circa 4900 sq ft
- Large bar area & store room currently unused
- Grade II listed building
- Scope to convert. Energy Rating TBC
- Christie & Co Ref: 8846283
Description
A charming and historic property located in the picturesque town of Royal Tunbridge Wells. The Major Yorke offers unique, but flexible, accommodation on a medium to long term basis.
The property has had a new electric boiler installed and has CCTV fitted throughout.
The property sits to the west of the town centre opposite the Spa Hotel and next to Tunbridge Wells Common.
The town itself is an affluent Spa town, situated in North West Kent, only 35 miles south east of central London, 25 miles east of Gatwick and 16 miles west of Maidstone. There is a fast and frequent train service to London terminals, with Charing Cross a 50 minute journey.
Previously a public house, the property has been converted to provide 8 bed sits with own cooking facilities (shared bath and shower room and WC's), 1 self contained studio and one self contained flat.
There is a large basement currently used for storage.
There is also a self-contained one bedroom flat laid out over two floors.
All accommodation is currently let on AST’s.
Previously a public house, the property has been converted to provide 8 bed sits with own cooking facilities (shared bath and shower room and WC's), 1 self contained studio and one self contained flat..
The OpportunityThe current owner is selling to concentrate on other investments.
The property has previously had planning consent granted for three separate dwellings as follows:-
Unit 1 – 4/5 bed 212 sq m / 2181 sq ft
Unit 2 – 2 bed 110 sq m / 1184 sq ft
Unit 3 – 2 bed 109 sq m / 1173 sq ft
With a large basement currently unused, the Vendor considers there is scope for refurbishment offering a large open plan space available to rent for short term local groups, subject to local planning regulations. It could also be rented out for storage, previously received planning permission by Tunbridge Wells Borough Council.
The property is currently fully let and generates an annual income £78,300.
There is also a laundry room with coin operated machines which generate further ancillary income.
- Service charge
- Ask agent
- Business rates
- Ask agent
- Use class
- Ask agent
- Listed building
- No
- Business for sale
- Yes
An Energy Performance certificate helps you understand the current energy efficiency of a property.
Read more about EPC requirementsAsk agent
- BREEAM rating
- Ask agent
- Environmental description
- Ask agent
The Major Yorke Studios, 5-11 Langton Road, Tunbridge Wells, TN4 8XA
We’re the leading specialist advisor for buying and selling businesses in our sectors - hotels, pubs, restaurants, childcare, healthcare, convenience retail, leisure and medical.
If you’re looking to buy or sell a business in our specialist sectors – from a pharmacy in Sussex to a hotel in Austria – our expert advice and collaborative support will help you achieve your goals. You may be an independent first-time buyer or a multinational adding to your portfolio; either way, you’ll discover that our personalised service is focused on helping you achieve your ambitions.
Clients have access to our carefully managed network of potential buyers. This unique database of contacts has been continually developed by our advanced IT capabilities and benefits from both our years of experience developing our network and our wide geographical coverage.
Where we work
We employ the largest team of sector specialists in the UK and the largest group of hotel specialists in Europe, providing professional brokerage and advisory services from offices in major cities across Britain and Europe. And because we’ve been doing this for over 80 years, we know our sectors and local markets inside out. We work closely with our clients to guide and conclude transactions of any size, covering hotels, restaurants and pubs, leisure, forecourts and convenience retail businesses, social care and elderly care, childcare & education facilities, dental practices and pharmacies.
Our professional services
We offer unrivalled insight, experience and expertise across your choice of services, including brokerage, consultancy, finance, development, investment, surveying, rent reviews, dispute resolution, corporate valuation, and turnaround & recovery. These services are all underpinned by our in-depth market intelligence and leading-edge technology. And we’re accredited by the Royal Institution of Chartered Surveyors (RICS), so you can trust in our professionalism.
What makes us tick
Businesses are about people, so relationships matter to us. We bring an integrity and transparency to business which can be all too rare – and that’s why people trust us. Our clients will attest to our genuine desire to help achieve their objectives, our attention to detail, and our tireless hard work on their behalf. We understand that buying a business can bring its own pressures and strains; needs can change, plans may need to be adjusted, and opportunities can come and go. But we’re always here, a constant, flexible and reliable force you can count on.
Our opening hours for all offices:
Mon – Fri, 9am – 5.30pm
Your search history
You have no recent searches
Disclaimer - Property reference 8846283-fh. The information displayed about this property comprises a property advertisement. Rightmove.co.uk makes no warranty as to the accuracy or completeness of the advertisement or any linked or associated information, and Rightmove has no control over the content. This property advertisement does not constitute property particulars. The information is provided and maintained by Christie & Co, Hotels. Please contact the selling agent or developer directly to obtain any information which may be available under the terms of The Energy Performance of Buildings (Certificates and Inspections) (England and Wales) Regulations 2007 or the Home Report if in relation to a residential property in Scotland.

























