Her Majesty Hotel, 49 Shepherds Bush Green, London, W12 8PS
Size
Ask agent
Tenure
Freehold
EPC
Parking
Ask agent
- Primary use
- Hotel
Key features
- Substantial period building
- 14 ensuite bedrooms
- Busy & vibrant location
- Located opposite Shepherds Bush Green
- Two car parking spaces
- Energy Rating: B
- Christie & Co Ref: 4241304
Description
A well presented 14 ensuite bedroom period property with excellent potential to expand the business. The current owner has owned and operated the hotel for approximately thirty years until 2021 when he closed the hotel. Since then he has not re-opened due to ill health and he will now retire from the business.
LocationThe accommodation is situated in Hammersmith, which is an artsy riverside area, home to eclectic productions at the Lyric theatre and rock shows at the Apollo concert hall, only a short drive from Shepherd's Bush Market underground station. Shepherds Bush underground Station is a short walk from the hotel, while London Heathrow airport is 25 km from it. There is Royal Albert Hall about 3 km away, and Hammersmith Lower bus station relatively close to this property. Her Majesty Hotel provides access to London Shepherd's Bush train station, which is approximately 10 minutes' walk away.
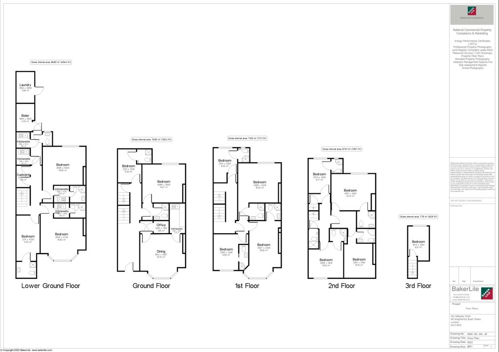
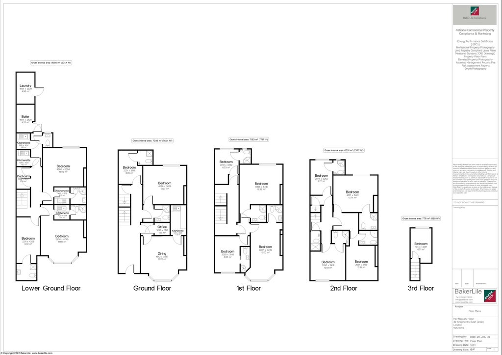
Internal DetailsThe hotels letting rooms are configured as follows:
Lower Ground:
• 1 Single ensuite
• 2 Triple/ensuite
Ground floor:
• 1 Triple ensuite room
• 1 Single ensuite room
1st floor mezzanine:
• 1 single ensuite
1st floor:
• 2 triple ensuite
• 1 double ensuite
2nd floor mezzanine:
• 1 single ensuite
2nd floor:
• 2 double ensuite
• 1 triple ensuite
3rd floor
• 1 double ensuite
There is a c.18 cover breakfast room with a kitchen and reception.
On the lower ground floor there is a small staff kitchen and a communal WC. Two under stair storage cupboards.
There is access to an outbuilding that houses an external boiler room and a laundry room.
To the rear of property there is an out building that houses the boilers and also the hotels washing machines/ laundry room.
- Service charge
- Ask agent
- Business rates
- Ask agent
- Use class
- Ask agent
- Listed building
- No
- Business for sale
- Yes
An Energy Performance certificate helps you understand the current energy efficiency of a property.
Read more about EPC requirementsAsk agent
- BREEAM rating
- Ask agent
- Environmental description
- Ask agent
Brochure
Her Majesty Hotel, 49 Shepherds Bush Green, London, W12 8PS
We’re the leading specialist advisor for buying and selling businesses in our sectors - hotels, pubs, restaurants, childcare, healthcare, convenience retail, leisure and medical.
If you’re looking to buy or sell a business in our specialist sectors – from a pharmacy in Sussex to a hotel in Austria – our expert advice and collaborative support will help you achieve your goals. You may be an independent first-time buyer or a multinational adding to your portfolio; either way, you’ll discover that our personalised service is focused on helping you achieve your ambitions.
Clients have access to our carefully managed network of potential buyers. This unique database of contacts has been continually developed by our advanced IT capabilities and benefits from both our years of experience developing our network and our wide geographical coverage.
Where we work
We employ the largest team of sector specialists in the UK and the largest group of hotel specialists in Europe, providing professional brokerage and advisory services from offices in major cities across Britain and Europe. And because we’ve been doing this for over 80 years, we know our sectors and local markets inside out. We work closely with our clients to guide and conclude transactions of any size, covering hotels, restaurants and pubs, leisure, forecourts and convenience retail businesses, social care and elderly care, childcare & education facilities, dental practices and pharmacies.
Our professional services
We offer unrivalled insight, experience and expertise across your choice of services, including brokerage, consultancy, finance, development, investment, surveying, rent reviews, dispute resolution, corporate valuation, and turnaround & recovery. These services are all underpinned by our in-depth market intelligence and leading-edge technology. And we’re accredited by the Royal Institution of Chartered Surveyors (RICS), so you can trust in our professionalism.
What makes us tick
Businesses are about people, so relationships matter to us. We bring an integrity and transparency to business which can be all too rare – and that’s why people trust us. Our clients will attest to our genuine desire to help achieve their objectives, our attention to detail, and our tireless hard work on their behalf. We understand that buying a business can bring its own pressures and strains; needs can change, plans may need to be adjusted, and opportunities can come and go. But we’re always here, a constant, flexible and reliable force you can count on.
Our opening hours for all offices:
Mon – Fri, 9am – 5.30pm
Your search history
You have no recent searches
Disclaimer - Property reference 4241304-fh. The information displayed about this property comprises a property advertisement. Rightmove.co.uk makes no warranty as to the accuracy or completeness of the advertisement or any linked or associated information, and Rightmove has no control over the content. This property advertisement does not constitute property particulars. The information is provided and maintained by Christie Owen & Davies Ltd, Hotels. Please contact the selling agent or developer directly to obtain any information which may be available under the terms of The Energy Performance of Buildings (Certificates and Inspections) (England and Wales) Regulations 2007 or the Home Report if in relation to a residential property in Scotland.










