Central Hotel, Portland Street, Cheltenham, GL52 2NZ
Size
Ask agent
Tenure
Freehold
EPC
Parking
Ask agent
- Primary use
- Hotel
Key features
- Investment opportunity
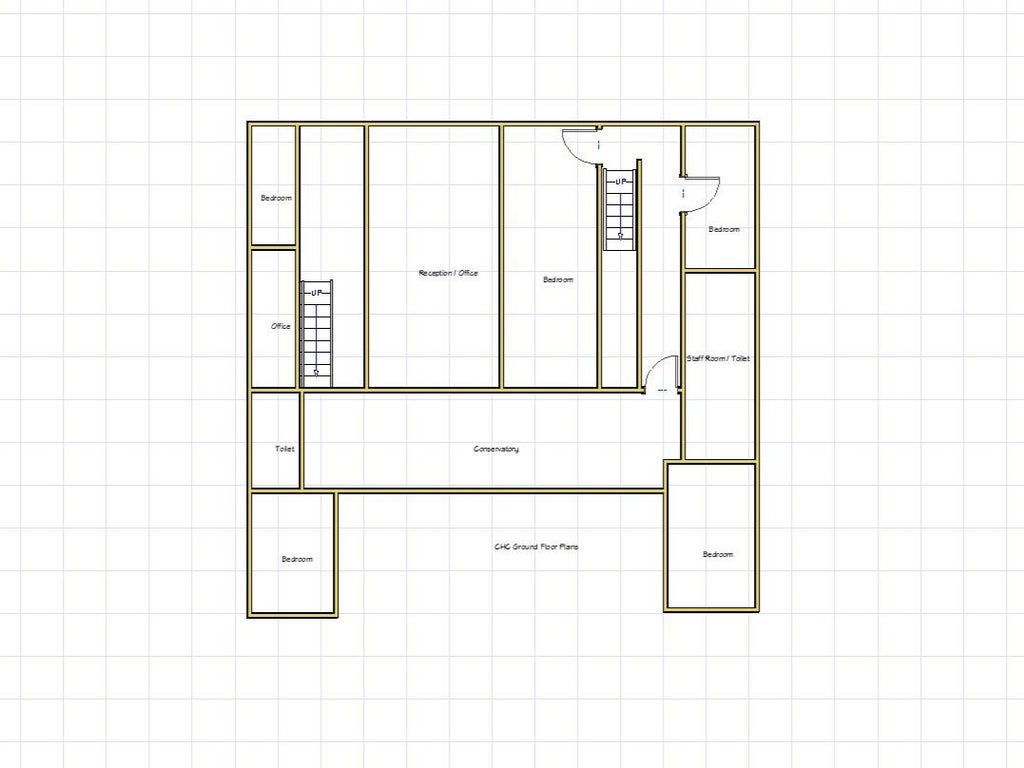
- 22 ensuite letting rooms
- Town centre location
- Off road parking
- Profitable business
- Adj profit of circa £173K
- Christie & Co Ref: 3440652
Description
Situated within a fantastic town centre location, this 22 ensuite bedroomed hotel is a fabulous investment. Already generating good income to profit margins, this low input and low maintenance operation comes with a solid client base and repeat business year on year. Offering room only and Grade II Listed, this sizeable Georgian property is well-located to access many of the town's famous attractions, from the racecourse to high street shopping, the Jazz Festival and renowned restaurants. Spread across four floors, it benefits from regency charm with high ceilings, sash windows, and Juliet balconies amongst others.
Externally and to the rear is a an off-road parking area, ample space for a number of vehicles, there is opportunity here for further development subject to the relevant consents.
what3words: ///cage.sound.closed
Located within easy reach of major communication links like the M5 which gives access to Bristol and the South West along with Birmingham to the North. Just over a mile away is Gloucestershire Airport, and further afield are the airports of Bristol and Birmingham International. Situated in the heart of Cheltenham, it provides easy access into the city centre for culture, shopping, restaurants, bars, the Jazz Festival, and also Cheltenham Racecourse.
Internally the property currently offers a room only service, providing 22 clean, tidy and modern bedrooms. All rooms come with LCD TVs, a mixture of singles, twin rooms/doubles, family rooms and suites. Each room has a full-size fridge & microwave along with tea, coffee, kettle, crockery and a hairdryer. Wi-Fi is available throughout the entire property. All bedrooms offer modern and stylish ensuite facilities including white sanitary ware and showers.
Fixtures & FittingsTrade fixtures & fittings are included within the freehold sale, those items personal to the owner may be excluded, contact the selling agent for clarity.
External DetailsExternally, there is parking for a number of vehicles to the rear. The property sits within a large plot and certainly has scope for extension and/or redevelopment subject to the relevant consents.
The OpportunityThis is a fantastic opportunity to acquire a low-maintenance accommodation business within the heart of this Cotswolds town. Turning a good profit and with repeat business along with the development potential it offers, it's a worthwhile buy. The business has been in the hands of the current owner for the past 20 years and due to wanting to retire, this lucrative business is now hitting the market.
Trading InformationTrading information can be obtained via the selling agent.
TenureFreehold
- Service charge
- Ask agent
- Business rates
- Ask agent
- Use class
- Ask agent
- Listed building
- No
- Business for sale
- Yes
An Energy Performance certificate helps you understand the current energy efficiency of a property.
Read more about EPC requirementsAsk agent
- BREEAM rating
- Ask agent
- Environmental description
- Ask agent
Brochure
Central Hotel, Portland Street, Cheltenham, GL52 2NZ
We’re the leading specialist advisor for buying and selling businesses in our sectors - hotels, pubs, restaurants, childcare, healthcare, convenience retail, leisure and medical.
If you’re looking to buy or sell a business in our specialist sectors – from a pharmacy in Sussex to a hotel in Austria – our expert advice and collaborative support will help you achieve your goals. You may be an independent first-time buyer or a multinational adding to your portfolio; either way, you’ll discover that our personalised service is focused on helping you achieve your ambitions.
Clients have access to our carefully managed network of potential buyers. This unique database of contacts has been continually developed by our advanced IT capabilities and benefits from both our years of experience developing our network and our wide geographical coverage.
Where we work
We employ the largest team of sector specialists in the UK and the largest group of hotel specialists in Europe, providing professional brokerage and advisory services from offices in major cities across Britain and Europe. And because we’ve been doing this for over 80 years, we know our sectors and local markets inside out. We work closely with our clients to guide and conclude transactions of any size, covering hotels, restaurants and pubs, leisure, forecourts and convenience retail businesses, social care and elderly care, childcare & education facilities, dental practices and pharmacies.
Our professional services
We offer unrivalled insight, experience and expertise across your choice of services, including brokerage, consultancy, finance, development, investment, surveying, rent reviews, dispute resolution, corporate valuation, and turnaround & recovery. These services are all underpinned by our in-depth market intelligence and leading-edge technology. And we’re accredited by the Royal Institution of Chartered Surveyors (RICS), so you can trust in our professionalism.
What makes us tick
Businesses are about people, so relationships matter to us. We bring an integrity and transparency to business which can be all too rare – and that’s why people trust us. Our clients will attest to our genuine desire to help achieve their objectives, our attention to detail, and our tireless hard work on their behalf. We understand that buying a business can bring its own pressures and strains; needs can change, plans may need to be adjusted, and opportunities can come and go. But we’re always here, a constant, flexible and reliable force you can count on.
Our opening hours for all offices:
Mon – Fri, 9am – 5.30pm
Your search history
You have no recent searches
Disclaimer - Property reference 3440652-fh. The information displayed about this property comprises a property advertisement. Rightmove.co.uk makes no warranty as to the accuracy or completeness of the advertisement or any linked or associated information, and Rightmove has no control over the content. This property advertisement does not constitute property particulars. The information is provided and maintained by Christie Owen & Davies Ltd, Hotels. Please contact the selling agent or developer directly to obtain any information which may be available under the terms of The Energy Performance of Buildings (Certificates and Inspections) (England and Wales) Regulations 2007 or the Home Report if in relation to a residential property in Scotland.










