Brantwood Country Hotel, Stainton, Penrith, CA11 0EP
Size
Ask agent
Tenure
Freehold
EPC
Parking
Ask agent
- Primary use
- Hotel
Key features
- Popular hotel with bar & restaurant
- Close to Ullswater, Lake District & M6
- 7 en suite guest rooms
- 2 bedroom self catering owner's cottage
- T/O 31.3.25 £594,438, good profits
- Site of c. 0.58 acres. Energy Rating D
- Christie & Co Ref: 6445205
Description
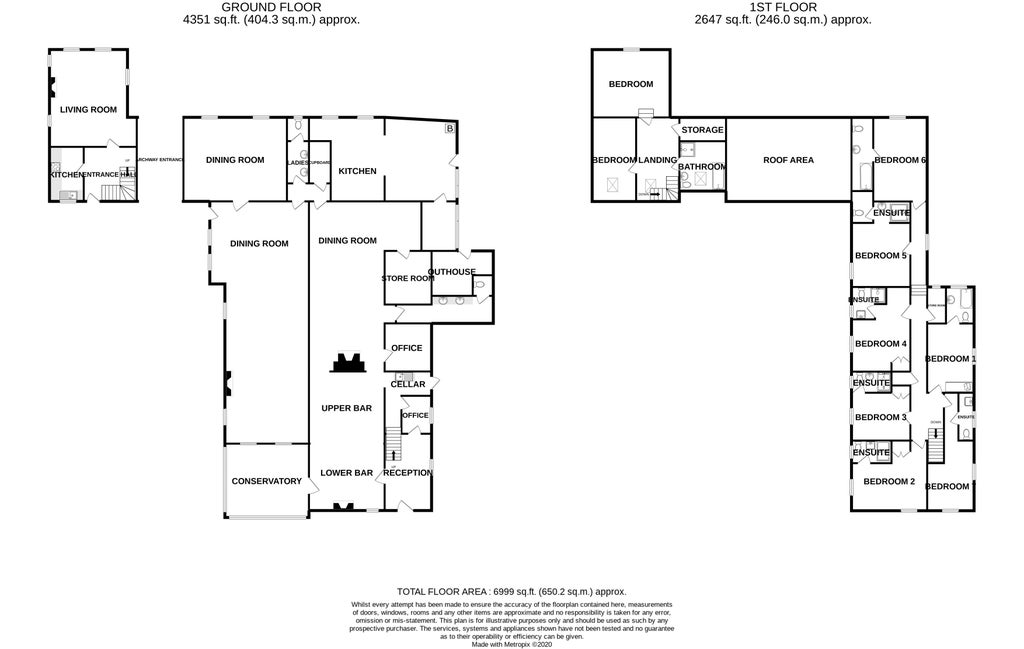
The origins of the Brantwood Hotel date back to the 18th Century. The main building comprises of the guest rooms, bar, restaurant and kitchen. The second building, connected by an attractive archway over the entrance to the car park, is the well-presented owner’s/manager’s cottage. In addition, there are landscaped grounds and car parking, making this a very desirable and easily managed business opportunity.
The business has been well run and well maintained and is presented to a very high standard making this a turnkey opportunity for new owners.
Brantwood Country House Hotel is located in the pretty village of Stainton in the north west of the Lake District National Park and just a few minutes’ drive from Ullswater, the second largest of the Lake District’s lakes and one of the most popular destinations for the many millions of visitors who visit the area each year, drawn to the beautiful scenery, outdoor activities on land and water and the rich cultural heritage.
Located just a couple of miles from the major gateway into the Lake District at junction 40 on the M6 and the A66 trans-Pennine trunk road, the area is also served by the neighbouring mainline railway station at Penrith with direct trains to London, Edinburgh, Manchester and Glasgow.
The village of Stainton is very desirable, residential village with a strong local community and good mix of working families and retirees, in addition to a number of popular holiday lets. The village is also popular as a convenient base from which to explore the Lake District.
• Welcoming bar with 45 covers
• Restaurant with 70 covers
• Private dining room / meeting room with 20 covers
• Conservatory with 12 covers
• Reception area
• Ladies and Gents WCs
• Well equipped commercial kitchen
• Dry store and beer cellar
• Office
There are seven well-presented en suite bedrooms comprising of five double rooms and two family rooms.
External DetailsThe property is set in prominent roadside position with the site extending to circa 0.58 acres of landscaped gardens. There is external seating for 50 customers in the beer garden and a large car park for approximately 30 vehicles.
Owner's AccommodationThe owner’s accommodation is currently utilised as a high quality, self contained, self catering, holiday let which generates additional income to the business.
• Spacious and well presented accommodation
• Two double bedrooms
• Spacious lounge/dining room
• Kitchen
• Family bathroom
Having owned the business since 2007 our clients are selling so they can enjoy a well earned retirement. The hotel and it’s thriving bar and restaurant trade is extremely well established with a good level of repeat bookings, excellent reviews and well supported by the local community. This is an excellent opportunity for a new owner to acquire a successful business and there is also scope to increase business levels further.
The demand for businesses in the north east of the Lake District, with easy access to the central Lake District, close to Ullswater and with good transport links across the country, has grown significantly in recent years and the hotel represents a great opportunity for either a commercial or lifestyle purchaser.
Turnover for the year ending 31st March 2025 was £594,438 with an adjusted net profit of £116,714.
- Service charge
- Ask agent
- Business rates
- Ask agent
- Use class
- Ask agent
- Listed building
- No
- Business for sale
- Yes
An Energy Performance certificate helps you understand the current energy efficiency of a property.
Read more about EPC requirementsAsk agent
- BREEAM rating
- Ask agent
- Environmental description
- Ask agent
Brochure
We’re the leading specialist advisor for buying and selling businesses in our sectors - hotels, pubs, restaurants, childcare, healthcare, convenience retail, leisure and medical.
If you’re looking to buy or sell a business in our specialist sectors – from a pharmacy in Sussex to a hotel in Austria – our expert advice and collaborative support will help you achieve your goals. You may be an independent first-time buyer or a multinational adding to your portfolio; either way, you’ll discover that our personalised service is focused on helping you achieve your ambitions.
Clients have access to our carefully managed network of potential buyers. This unique database of contacts has been continually developed by our advanced IT capabilities and benefits from both our years of experience developing our network and our wide geographical coverage.
Where we work
We employ the largest team of sector specialists in the UK and the largest group of hotel specialists in Europe, providing professional brokerage and advisory services from offices in major cities across Britain and Europe. And because we’ve been doing this for over 80 years, we know our sectors and local markets inside out. We work closely with our clients to guide and conclude transactions of any size, covering hotels, restaurants and pubs, leisure, forecourts and convenience retail businesses, social care and elderly care, childcare & education facilities, dental practices and pharmacies.
Our professional services
We offer unrivalled insight, experience and expertise across your choice of services, including brokerage, consultancy, finance, development, investment, surveying, rent reviews, dispute resolution, corporate valuation, and turnaround & recovery. These services are all underpinned by our in-depth market intelligence and leading-edge technology. And we’re accredited by the Royal Institution of Chartered Surveyors (RICS), so you can trust in our professionalism.
What makes us tick
Businesses are about people, so relationships matter to us. We bring an integrity and transparency to business which can be all too rare – and that’s why people trust us. Our clients will attest to our genuine desire to help achieve their objectives, our attention to detail, and our tireless hard work on their behalf. We understand that buying a business can bring its own pressures and strains; needs can change, plans may need to be adjusted, and opportunities can come and go. But we’re always here, a constant, flexible and reliable force you can count on.
Our opening hours for all offices:
Mon – Fri, 9am – 5.30pm
Your search history
You have no recent searches
Disclaimer - Property reference 6445205-fh. The information displayed about this property comprises a property advertisement. Rightmove.co.uk makes no warranty as to the accuracy or completeness of the advertisement or any linked or associated information, and Rightmove has no control over the content. This property advertisement does not constitute property particulars. The information is provided and maintained by Christie Owen & Davies Ltd, Hotels. Please contact the selling agent or developer directly to obtain any information which may be available under the terms of The Energy Performance of Buildings (Certificates and Inspections) (England and Wales) Regulations 2007 or the Home Report if in relation to a residential property in Scotland.
























