Rossetti Lodge, 3 Sea View Road, Birchington, Kent, CT7 9LB
Size
Ask agent
Tenure
Freehold
EPC
Parking
Ask agent
- Primary use
- Guest house
Key features
- Approx. 7300 sq ft of accommodation
- 18 bedrooms and multiple reception areas
- Short walk from the sea front
- Development potential (subject to planning)
- Ample free on street parking available
- No forward chain
- Christie & Co Ref: 3848030
Description
Rossetti Lodge is a substantial detached property, offering over 7000 sq. ft. of accommodation. The guest house and wellness retreat boasts 18 bedrooms, tea & coffee making facilities, free Wi-Fi, a jacuzzi room and sauna, a fitness studio, several bath/shower rooms for guests, a spacious dining room and large communal kitchen which guests are able to utilise.
The property is also an excellent retreat for wellness, benefitting from coastal walks, green flag beaches, fresh sea air and a friendly historic village.
Rossetti Lodge, Birchington-on-Sea, is nestled only a short walk from The Bay Church and at a distance of 4.4 km from The Sunken Gardens. The centre of Birchington-on-Sea can be reached in 15 minutes' walk of the hotel, and such cultural venues as Margate Tudor House are about 7 km away. Patterson Heritage is only a short drive from the property, and London Southend airport is 135 km away.
Explore the historical sights of Birchington-on-Sea, starting with the nearby Margate Museum. Gallwey Avenue bus stop is located merely 5 minutes' walk from this Birchington-on-Sea hotel.
A versatile offering of nearly 7500 sq. ft. of accommodation, offering an abundance of opportunity for any new owner or operator.
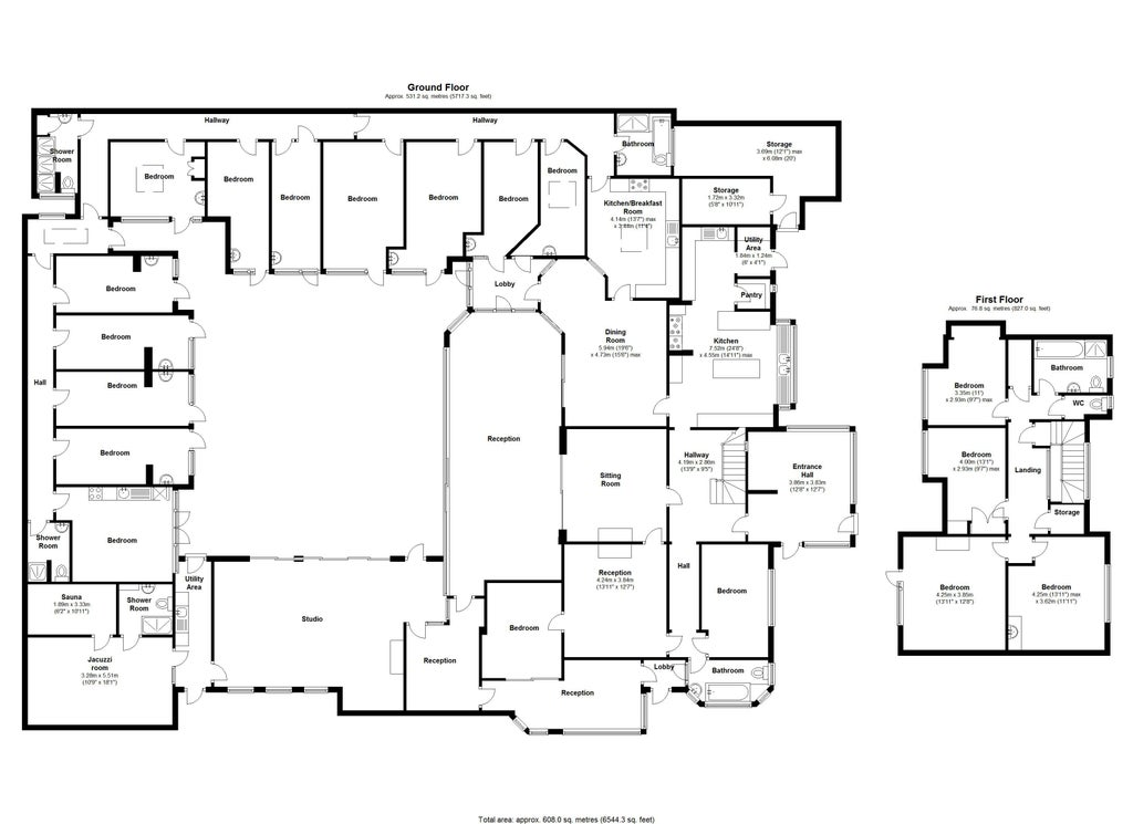
Ground FloorThe ground floor accommodation comprises of an assortment of bedrooms, bath/shower rooms, receptions areas, dining areas, a large communal kitchen and a jacuzzi room.
Other FloorsThe first floor accommodation comprises of four double bedrooms, a bath/shower room and separate WC.
Fixtures & FittingsAll trade fixtures and fittings will be included in the sale and our clients will provide a trade inventory.
Letting AccommodationThe hotel has 18 guest bedrooms with a selection vanity suites. There is fast virgin fibre cable broadband Wi-Fi for all guests.
External DetailsA sunny courtyard garden is found within the centre of the property, accessed from multiple parts of the accommodation, including from nearly half a dozen bedrooms.
Owner's AccommodationThere is sufficient space and opportunity on offer to incorporate owners accommodation within the Lodge.
The OpportunityThis is an excellent opportunity for an assortment of buyers, operators and investors; there is significant scope for residential development (subject to planning) due to the size and space on offer; a hotel or guest house operator could yield good potential earnings with high room occupancy, as well as having owners accommodation on site; wellness retreats are viable to run from Rossetti Lodge, with the current owner having previously run retreats for 30-35 persons. Our client comments there is excellent potential for weekend wellness retreats, having run successful three-day retreats historically.
TenureFreehold
- Service charge
- Ask agent
- Business rates
- Ask agent
- Use class
- Ask agent
- Listed building
- Ask agent
- Business for sale
- Yes
An Energy Performance certificate helps you understand the current energy efficiency of a property.
Read more about EPC requirementsAsk agent
- BREEAM rating
- Ask agent
- Environmental description
- Ask agent
Brochure
Rossetti Lodge, 3 Sea View Road, Birchington, Kent, CT7 9LB
We’re the leading specialist advisor for buying and selling businesses in our sectors - hotels, pubs, restaurants, childcare, healthcare, convenience retail, leisure and medical.
If you’re looking to buy or sell a business in our specialist sectors – from a pharmacy in Sussex to a hotel in Austria – our expert advice and collaborative support will help you achieve your goals. You may be an independent first-time buyer or a multinational adding to your portfolio; either way, you’ll discover that our personalised service is focused on helping you achieve your ambitions.
Clients have access to our carefully managed network of potential buyers. This unique database of contacts has been continually developed by our advanced IT capabilities and benefits from both our years of experience developing our network and our wide geographical coverage.
Where we work
We employ the largest team of sector specialists in the UK and the largest group of hotel specialists in Europe, providing professional brokerage and advisory services from offices in major cities across Britain and Europe. And because we’ve been doing this for over 80 years, we know our sectors and local markets inside out. We work closely with our clients to guide and conclude transactions of any size, covering hotels, restaurants and pubs, leisure, forecourts and convenience retail businesses, social care and elderly care, childcare & education facilities, dental practices and pharmacies.
Our professional services
We offer unrivalled insight, experience and expertise across your choice of services, including brokerage, consultancy, finance, development, investment, surveying, rent reviews, dispute resolution, corporate valuation, and turnaround & recovery. These services are all underpinned by our in-depth market intelligence and leading-edge technology. And we’re accredited by the Royal Institution of Chartered Surveyors (RICS), so you can trust in our professionalism.
What makes us tick
Businesses are about people, so relationships matter to us. We bring an integrity and transparency to business which can be all too rare – and that’s why people trust us. Our clients will attest to our genuine desire to help achieve their objectives, our attention to detail, and our tireless hard work on their behalf. We understand that buying a business can bring its own pressures and strains; needs can change, plans may need to be adjusted, and opportunities can come and go. But we’re always here, a constant, flexible and reliable force you can count on.
Our opening hours for all offices:
Mon – Fri, 9am – 5.30pm
Your search history
You have no recent searches
Disclaimer - Property reference 3848030-fh. The information displayed about this property comprises a property advertisement. Rightmove.co.uk makes no warranty as to the accuracy or completeness of the advertisement or any linked or associated information, and Rightmove has no control over the content. This property advertisement does not constitute property particulars. The information is provided and maintained by Christie Owen & Davies Ltd, Hotels. Please contact the selling agent or developer directly to obtain any information which may be available under the terms of The Energy Performance of Buildings (Certificates and Inspections) (England and Wales) Regulations 2007 or the Home Report if in relation to a residential property in Scotland.























