The Horn of Plenty, Gulworthy, Tavistock, Devon, PL19 8JD
Size
Ask agent
Tenure
Freehold
EPC
Parking
Ask agent
- Primary use
- Hotel
Key features
- 16 individually designed ensuite bedrooms
- 4* Hotel & Three AA Rosette restaurant
- Management staff in place
- Four acres of gardens & grounds
- Stunning views of the Tamar Valley AONB
- Beautifully presented interior. EPC Rating C
- Christie & Co Ref: 3440673
Description
The Horn of Plenty is an independently owned 4-star country house hotel in Devon with a well-renowned three AA Rosette restaurant. Set within a stunning manor house, the hotel exudes charm and character and has been renovated to a high standard with luxurious fittings throughout.
The hotel has a superb reputation which has been developed over many years for its exceptional fine dining, high quality accommodation, superb levels of service and picturesque location. In addition, the hotel also hosts country house weddings for parties of up to 90 day guests and 120 evening guests.
The business is well established, however, it has the scope for a new owner to build upon the current levels of trade enjoyed by the present owners. On the first floor is 'The Library', a secondary lounge which is generally underutilised thanks to the plentiful public areas on the ground floor. It is thought that with some minor building work and the installation of an ensuite, this room could be more profitably utilised as an additional letting bedroom. The four acres of grounds are plentiful, but also underutilised so could (subject to obtaining any necessary planning consents) play host to further hotel accommodation in the form of glamping pods, luxury lodges, or possibly through converting the stone-built garden sheds that sit within the lower garden. There are also opportunities for the new owner to increase the levels of room occupancy and number of weddings hosted each year.
Set close to the edge of Dartmoor National Park in an Area of Outstanding Natural Beauty near Tavistock, Devon, The Horn of Plenty is a 4-star country house hotel that offers a serene getaway in the South West. Overlooking the Tamar Valley, the property is surrounded by four acres of gardens and rolling countryside providing a picturesque backdrop for visitors seeking peace, romance, or a gourmet escape. The location is ideal for exploring both Devon and Cornwall with nearby attractions such as Cotehele House, Dartmoor National Park, and the historic Tavistock town centre.
Britain's Ocean City of Plymouth and the Cathedral City of Exeter are 30 and 60 minutes drive by car respectively.
Easily accessible by car, the hotel sits just off the B3362 and is about a 60-minute drive from Exeter Airport. The closest train station is a five-minute drive away in Gunnislake.
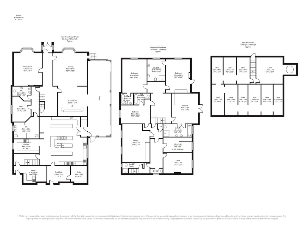
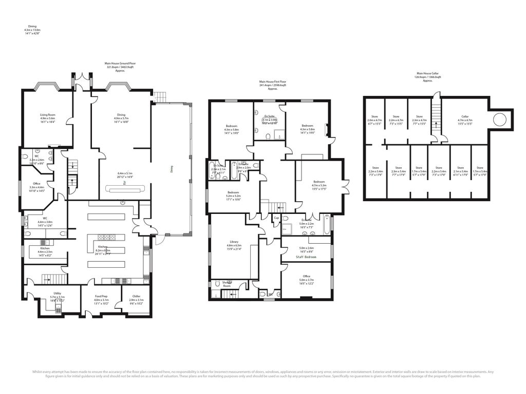
The hotel comprises two main buildings, the main manor house and the detached stone-built coach house that was constructed in 2014.
The main entrance opens to an elegant hallway and hotel reception. The guest lounge with bay window and open fire is found to the right of the main hall. The open-plan restaurant and bar with sliding floor to ceiling windows offers stunning views across the Tamar Valley and can seat up to 90 guests in wedding format, or 50 in restaurant. The sliding doors lead onto a modern decked balcony which provides further alfresco seating for up to 24 guests.
The main stairs lead to the library which offers a more intimate, comfortable lounge for guests which can also be utilised as a private dining facility.
In addition to the well-presented internal public areas, the property benefits from ample ancillary areas including a fully equipped commercial catering kitchen, laundry room, administrative offices, extensive beer and wine cellar, well with spring water bottling facility, guest WCs and staff WCs.
Trade fixtures and fittings are included in the sale.
Please note there are a small number of items that are not included in the sale, mainly artworks.
There are 16 beautifully appointed ensuite guest bedrooms that offer relaxed luxury; most have balconies with stunning views that overlook the Tamar Valley or the surrounding Devon countryside.
10 of the bedrooms can be found in the main house with a further six located in the coach house.
Four acres of well-maintained, southwest facing, gardens with stunning views over the Tamar Valley to 40 miles beyond.
Comprising entrance drive with turning circle and feature fountain, patio area for afternoon teas and pre-dinner drinks, spacious lawn and large walled garden, kitchen garden, garage and numerous storage sheds. To the west of the site can be found a small woodland area.
Additionally, there is parking for up to 40 vehicles.
The present owners choose to live off-site, however, on the first floor is the old staff accommodation area which is presently partially used as an office and staff changing room. With some light refurbishment, this area could make a wonderful owner's apartment comprising a double bedroom, lounge and bathroom.
StaffThe business is run with a full team of staff in place including a general manager. The owners are not based at the hotel nor involved in the day-to-day operations.
Trading InformationAccounts for the financial year ending May 2025 show a net turnover of £1.116m.
The budget for the present year shows an uplift in sales with a forecast turnover of £1.397m.
The property is freehold.
Business RatesRateable value with effect from 1 April 2026 £106,500
Please note this is the rateable value for the property. It is not what you pay in business rates. The local council uses the rateable value to calculate the business rates bill.
Premises licence.
Civil weddings licence.
- Service charge
- Ask agent
- Business rates
- Ask agent
- Use class
- Ask agent
- Listed building
- Ask agent
- Business for sale
- Yes
An Energy Performance certificate helps you understand the current energy efficiency of a property.
Read more about EPC requirementsAsk agent
- BREEAM rating
- Ask agent
- Environmental description
- Ask agent
Brochure
The Horn of Plenty, Gulworthy, Tavistock, Devon, PL19 8JD
We’re the leading specialist advisor for buying and selling businesses in our sectors - hotels, pubs, restaurants, childcare, healthcare, convenience retail, leisure and medical.
If you’re looking to buy or sell a business in our specialist sectors – from a pharmacy in Sussex to a hotel in Austria – our expert advice and collaborative support will help you achieve your goals. You may be an independent first-time buyer or a multinational adding to your portfolio; either way, you’ll discover that our personalised service is focused on helping you achieve your ambitions.
Clients have access to our carefully managed network of potential buyers. This unique database of contacts has been continually developed by our advanced IT capabilities and benefits from both our years of experience developing our network and our wide geographical coverage.
Where we work
We employ the largest team of sector specialists in the UK and the largest group of hotel specialists in Europe, providing professional brokerage and advisory services from offices in major cities across Britain and Europe. And because we’ve been doing this for over 80 years, we know our sectors and local markets inside out. We work closely with our clients to guide and conclude transactions of any size, covering hotels, restaurants and pubs, leisure, forecourts and convenience retail businesses, social care and elderly care, childcare & education facilities, dental practices and pharmacies.
Our professional services
We offer unrivalled insight, experience and expertise across your choice of services, including brokerage, consultancy, finance, development, investment, surveying, rent reviews, dispute resolution, corporate valuation, and turnaround & recovery. These services are all underpinned by our in-depth market intelligence and leading-edge technology. And we’re accredited by the Royal Institution of Chartered Surveyors (RICS), so you can trust in our professionalism.
What makes us tick
Businesses are about people, so relationships matter to us. We bring an integrity and transparency to business which can be all too rare – and that’s why people trust us. Our clients will attest to our genuine desire to help achieve their objectives, our attention to detail, and our tireless hard work on their behalf. We understand that buying a business can bring its own pressures and strains; needs can change, plans may need to be adjusted, and opportunities can come and go. But we’re always here, a constant, flexible and reliable force you can count on.
Our opening hours for all offices:
Mon – Fri, 9am – 5.30pm
Your search history
You have no recent searches
Disclaimer - Property reference 3440673-fh. The information displayed about this property comprises a property advertisement. Rightmove.co.uk makes no warranty as to the accuracy or completeness of the advertisement or any linked or associated information, and Rightmove has no control over the content. This property advertisement does not constitute property particulars. The information is provided and maintained by Christie Owen & Davies Ltd, Hotels. Please contact the selling agent or developer directly to obtain any information which may be available under the terms of The Energy Performance of Buildings (Certificates and Inspections) (England and Wales) Regulations 2007 or the Home Report if in relation to a residential property in Scotland.


























