Holway House, 9 Holway Road, Sheringham, NR26 8HN
Size
Ask agent
Tenure
Freehold
EPC
Parking
Ask agent
- Primary use
- Guest house
Key features
- Exceptional 10-bedroom bed & breakfast
- Situated in this popular Norfolk coastal town
- Long established B&B close to town centre
- Fully refurbished & modernised throughout
- Exceptional private owner's accommodation
- Close to all major attractions. Private car park. EPC: B (47)
- Christie & Co Ref: 1446735
Description
Holway House is a substantial corner property that has been operating as a bed & breakfast in the town since the 1930s. This elegant three-storey Edwardian end of terrace property is of traditional brick construction with pebble rendering to the first floor and dormer windows to the third floor with dual bay windows to the front ground floor. The business has been under the current owners for the last nine years who have fully refurbished the property during their tenure and have created 10 ensuite guest bedrooms along with a breakfast room and private owner's accommodation which has a private garden.
The business also has a car park located to the rear of the property which is accessed from Alexandra Road.
Holway House is conveniently located to explore this popular Norfolk coastal town. Sheringham is a thriving seaside resort with a vibrant array of shops, restaurants and pubs. The town has a long history of attracting holiday makers, day trippers, and those seeking solace on the coast with many repeating their visits through generations of families.
Located on a main road, Holway House is close to the junction of Cromer and Station Road with the town's main railway station within walking distance as well as the town centre and beach. Holway Road is directly accessed off the A148 that connects Cromer (4.6 miles) and Holt (7.5 miles).
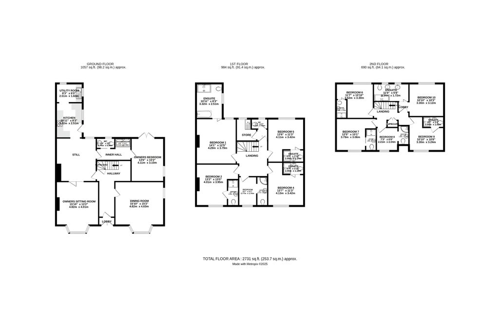
An attractive tiled pathway leads via a front door to a spacious reception hall. Store cupboard and stairs off to first floor.
Ground FloorBreakfast Room: seating for 14 guests. Wood flooring and bay window to front.
Fixtures & FittingsAll rooms benefit from the following facilities: free Wi-Fi, TVs, USB power sockets, hairdryers, towels, coffee & tea making facilities and filtered glass water bottles. All F&F are owned outright.
Letting AccommodationThe 10 bedrooms are arranged over the first and second floors as follows:
First Floor
Room 1: Twin room, jacuzzi bath, shower, twin washbasins, WC.
Room 2: Double room with ensuite shower/WC.
Room 3: Single room with ensuite shower/WC.
Room 4: Double room with ensuite shower/WC.
Room 5: Double room with ensuite shower/WC.
Second Floor
Lower landing : WC. Laundry room.
Room 6: Double room with ensuite shower/WC.
Room 7: Double room with ensuite shower/WC.
Room 8: Single room with ensuite shower/WC.
Room 9: Single room with ensuite shower/WC.
Room 10: Double room with large ensuite shower/WC and twin wash basins.
Small enclosed garden to the front. The enclosed rear garden is for the sole use of the owners with paving, borders and a south-facing aspect.
At the rear of the property, with access off Alexandra Road, is access to Holway House’s private guest car park with four allocated and marked spaces.
Located over the ground floor and fully self-sufficient.
Living room with bay window to front.
Dining room: large storage cupboard.
Kitchen: fully equipped and functional kitchen.
Bedroom: large double room.
Bathroom: shower/WC.
Holway House is an exceptional adult-only and pet-free bed & breakfast opportunity located in an exceptional location providing vibrant holiday trade. The business was first established in the 1930s and since the current owners acquired the business in 2016 they have significantly improved the property with a new roof, double glazing throughout, and significant internal infrastructure improvements.
They have also improved the guest accommodation by fully refurbishing the rooms with modern bathrooms, decor, and have also created ensuites for all rooms.
They provide the option of a cooked or cold breakfast using quality locally sourced products. Cooked breakfasts are pre-ordered using an order form.
Traditionally, they operate the business from March to October and through December taking bookings for the Thursford Christmas Spectacular show. Because of the long history, there are a number of regular repeat customers with bookings taken through the owners' own website: and Bookings.com.
The owners do not currently hold a mailing list, and this is an area new owners could explore for direct mailings to customers promoting events and offers etc. We also believe, given the nature of the town, various tourist attractions such as the North Norfolk Poppy Line (a beautifully restored heritage railway), Muckleburgh Military collection (one of Norfolk’s largest working museums), and the beautiful country houses Felbrigg Hall and Blickling Hall, there is scope to open the business beyond its current trading period.
The business has a high commitment to the environment using eco-friendly cleaning materials and toiletries. It holds a 5-star food and hygiene rating and a TripAdvisor score of 4.5/5.0 and 9.6/10 with Bookings.com.
The business is principally operated by the owners with part-time housekeeping.
Trading InformationTrading accounts provided by the owners indicate that sales income for the 12-month trading period to 05 April 2024 was £122,059 excl VAT compared to £125,826 for the previous year.
We understand the business was closed for periods during the last 12 months owing to personal family circumstances resulting in fewer trading days. The business is able to demonstrate excellent profitability, and accounts can be provided to interested parties following a formal viewing.
Freehold.
Business RatesCurrent Rateable Value (01.04.2026) £14,500. The property is entitled to 100% small business rates relief.
- Service charge
- Ask agent
- Business rates
- Ask agent
- Use class
- Ask agent
- Listed building
- Ask agent
- Business for sale
- Yes
An Energy Performance certificate helps you understand the current energy efficiency of a property.
Read more about EPC requirementsAsk agent
- BREEAM rating
- Ask agent
- Environmental description
- Ask agent
Brochure
Holway House, 9 Holway Road, Sheringham, NR26 8HN
We’re the leading specialist advisor for buying and selling businesses in our sectors - hotels, pubs, restaurants, childcare, healthcare, convenience retail, leisure and medical.
If you’re looking to buy or sell a business in our specialist sectors – from a pharmacy in Sussex to a hotel in Austria – our expert advice and collaborative support will help you achieve your goals. You may be an independent first-time buyer or a multinational adding to your portfolio; either way, you’ll discover that our personalised service is focused on helping you achieve your ambitions.
Clients have access to our carefully managed network of potential buyers. This unique database of contacts has been continually developed by our advanced IT capabilities and benefits from both our years of experience developing our network and our wide geographical coverage.
Where we work
We employ the largest team of sector specialists in the UK and the largest group of hotel specialists in Europe, providing professional brokerage and advisory services from offices in major cities across Britain and Europe. And because we’ve been doing this for over 80 years, we know our sectors and local markets inside out. We work closely with our clients to guide and conclude transactions of any size, covering hotels, restaurants and pubs, leisure, forecourts and convenience retail businesses, social care and elderly care, childcare & education facilities, dental practices and pharmacies.
Our professional services
We offer unrivalled insight, experience and expertise across your choice of services, including brokerage, consultancy, finance, development, investment, surveying, rent reviews, dispute resolution, corporate valuation, and turnaround & recovery. These services are all underpinned by our in-depth market intelligence and leading-edge technology. And we’re accredited by the Royal Institution of Chartered Surveyors (RICS), so you can trust in our professionalism.
What makes us tick
Businesses are about people, so relationships matter to us. We bring an integrity and transparency to business which can be all too rare – and that’s why people trust us. Our clients will attest to our genuine desire to help achieve their objectives, our attention to detail, and our tireless hard work on their behalf. We understand that buying a business can bring its own pressures and strains; needs can change, plans may need to be adjusted, and opportunities can come and go. But we’re always here, a constant, flexible and reliable force you can count on.
Our opening hours for all offices:
Mon – Fri, 9am – 5.30pm
Your search history
You have no recent searches
Disclaimer - Property reference 1446735-fh. The information displayed about this property comprises a property advertisement. Rightmove.co.uk makes no warranty as to the accuracy or completeness of the advertisement or any linked or associated information, and Rightmove has no control over the content. This property advertisement does not constitute property particulars. The information is provided and maintained by Christie Owen & Davies Ltd, Hotels. Please contact the selling agent or developer directly to obtain any information which may be available under the terms of The Energy Performance of Buildings (Certificates and Inspections) (England and Wales) Regulations 2007 or the Home Report if in relation to a residential property in Scotland.





















