Dunselma, 25 Marina, Bexhill-on-Sea, TN40 1BP
Size
Ask agent
Tenure
Freehold
EPC
Parking
Ask agent
- Primary use
- Guest house
Key features
- Seven beautifully appointed ensuite bedrooms
- Opposite world famous De La Warr Pavillion
- Guest lounge and dining room
- Owner's accommodation (one-bedroom apartment)
- Close proximity to parking and train station
- EPC: C - 61
- Christie & Co Ref: 3848046
Description
Once a fashionable Edwardian townhouse on the seafront, Dunselma now offers quality guest accommodation with all the comforts of modern living, while retaining the elegance and charm of a bygone era. Ideally located opposite the world famous De La Warr Pavilion in Bexhill-on-Sea, Dunselma is a short stroll from the beach, shops, bars, restaurants, and railway station. The property features seven ensuite bedrooms, with many boasting spectacular sea views.
LocationResting on the picturesque south coast of England, Bexhill-on-Sea is a charming seaside town in East Sussex, renowned for its relaxed atmosphere, elegant architecture, and rich cultural heritage. With its sweeping promenade, golden beaches, and iconic landmarks, Bexhill offers a perfect blend of traditional British seaside charm and modern-day appeal.
Bexhill is famously known as the birthplace of British motor racing, with its first race held in 1902. The town’s heritage is beautifully preserved in its architecture, from grand Victorian villas to the striking De La Warr Pavilion - a Grade I listed modernist building that serves as a hub for contemporary art, music, and events.
The town boasts a stunning two-mile seafront that is ideal for leisurely walks, cycling, or soaking up the sea air. The gently sloping beaches attract families, swimmers, and sunseekers alike. The surrounding countryside offers scenic trails, nature reserves, and easy access to the South Downs National Park.
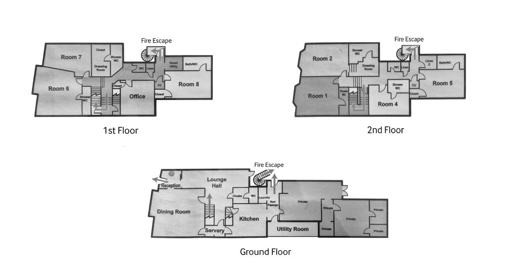
The ground floor welcomes guests with a warm and inviting reception area, leading into a comfortable lounge hall which is perfect for relaxing or socialising. A spacious dining room provides an ideal setting for breakfast service or group meals, while the well-equipped kitchen and adjoining servery ensure smooth and efficient hospitality operations. Additional features include a utility room and multiple private rooms, offering ample storage or potential for further guest use.
Upstairs, the first floor hosts three ensuite guest rooms, each with its own unique layout and charm. An office space provides a quiet area for administration or personal use, but could equally be utilised as an additional lettings room.
The second floor comprises five further ensuite bedrooms, with multiple bathrooms and shower rooms thoughtfully positioned throughout, with a fire escape for safety.
All fixtures, fittings and furnishings are to be included within the sale, save for any personal effects of the owner. Please request confirmation of this prior to offer.
ReputationDunselma Guest House in Bexhill-on-Sea holds an excellent review rating of 4.9 out of 5 on TripAdvisor, based on over 217 guest reviews. It is currently ranked #1 of 3 guest houses in the area and has received the Travellers' Choice award, placing it among the top 10% of properties on the platform.
Letting AccommodationAll seven ensuite bedrooms are comfortably furnished, many boasting spectacular sea views. Each room includes:
Tea and coffee making facilities
Colour TV with digital channels
Complimentary mineral water
Fresh fruit bowls
The property includes private owner’s accommodation with a one-bedroom apartment and courtyard garden.
Owner's AccommodationCompleting the property is a private owners’ apartment, accessed via the kitchen. This self-contained one-bedroom residence includes a courtyard garden which offers a tranquil retreat away from the guest areas.
With seven ensuite letting rooms, generous communal spaces, and private owner accommodation, Dunselma Guest House presents a rare opportunity to acquire a well-established and elegantly appointed coastal guest house in a sought-after location.
The current owner has run the hotel for c. 23 years, making the purchase of Dunselma Guest House a rare chance for lifestyle operators to embrace coastal living while running a well-established hospitality business that has built a superb reputation. With seven ensuite guest rooms, generous communal areas, and private owner’s accommodation, the property offers a seamless blend of work and home life. Dunselma is ideal for those seeking a rewarding venture in a relaxed seaside setting, with the potential to grow a thriving guest house business while enjoying the charm of the south coast.
Trading InformationWe have been provided with year-end March 2025 accounts showing a net turnover of £82,810 and an EBITDA of £46,805. Further trading information is available upon request.
TenureThe property is being sold freehold.
Business RatesCurrent rateable value (1 April 2023 to present): £10,000.
This is the rateable value for the property. It is not what you pay in business rates or rent. Your local council uses the rateable value to calculate the business rates bill.
We understand that the venue benefits from all the necessary licences for the conduct of the business.
- Service charge
- Ask agent
- Business rates
- Ask agent
- Use class
- Ask agent
- Listed building
- Ask agent
- Business for sale
- Yes
An Energy Performance certificate helps you understand the current energy efficiency of a property.
Read more about EPC requirementsAsk agent
- BREEAM rating
- Ask agent
- Environmental description
- Ask agent
Brochure
Dunselma, 25 Marina, Bexhill-on-Sea, TN40 1BP
We’re the leading specialist advisor for buying and selling businesses in our sectors - hotels, pubs, restaurants, childcare, healthcare, convenience retail, leisure and medical.
If you’re looking to buy or sell a business in our specialist sectors – from a pharmacy in Sussex to a hotel in Austria – our expert advice and collaborative support will help you achieve your goals. You may be an independent first-time buyer or a multinational adding to your portfolio; either way, you’ll discover that our personalised service is focused on helping you achieve your ambitions.
Clients have access to our carefully managed network of potential buyers. This unique database of contacts has been continually developed by our advanced IT capabilities and benefits from both our years of experience developing our network and our wide geographical coverage.
Where we work
We employ the largest team of sector specialists in the UK and the largest group of hotel specialists in Europe, providing professional brokerage and advisory services from offices in major cities across Britain and Europe. And because we’ve been doing this for over 80 years, we know our sectors and local markets inside out. We work closely with our clients to guide and conclude transactions of any size, covering hotels, restaurants and pubs, leisure, forecourts and convenience retail businesses, social care and elderly care, childcare & education facilities, dental practices and pharmacies.
Our professional services
We offer unrivalled insight, experience and expertise across your choice of services, including brokerage, consultancy, finance, development, investment, surveying, rent reviews, dispute resolution, corporate valuation, and turnaround & recovery. These services are all underpinned by our in-depth market intelligence and leading-edge technology. And we’re accredited by the Royal Institution of Chartered Surveyors (RICS), so you can trust in our professionalism.
What makes us tick
Businesses are about people, so relationships matter to us. We bring an integrity and transparency to business which can be all too rare – and that’s why people trust us. Our clients will attest to our genuine desire to help achieve their objectives, our attention to detail, and our tireless hard work on their behalf. We understand that buying a business can bring its own pressures and strains; needs can change, plans may need to be adjusted, and opportunities can come and go. But we’re always here, a constant, flexible and reliable force you can count on.
Our opening hours for all offices:
Mon – Fri, 9am – 5.30pm
Your search history
You have no recent searches
Disclaimer - Property reference 3848046-fh. The information displayed about this property comprises a property advertisement. Rightmove.co.uk makes no warranty as to the accuracy or completeness of the advertisement or any linked or associated information, and Rightmove has no control over the content. This property advertisement does not constitute property particulars. The information is provided and maintained by Christie Owen & Davies Ltd, Hotels. Please contact the selling agent or developer directly to obtain any information which may be available under the terms of The Energy Performance of Buildings (Certificates and Inspections) (England and Wales) Regulations 2007 or the Home Report if in relation to a residential property in Scotland.

























