Lower Lode Inn, Bishops Walk Forthampton, Tewkesbury, GL19 4RE
Size
Ask agent
Tenure
Freehold
EPC
Parking
Ask agent
- Primary use
- Pub
Key features
- Characterful trade areas & 5 B&B rooms
- Camping & caravan site set in c.3 acres
- Separate venue & bar with wedding licence
- Net T/O YE 31.05.25 £307,044
- Boat moorings and fishing rights
- Waterfront trade garden. EPC C
- Christie & Co Ref: 3451447
Description
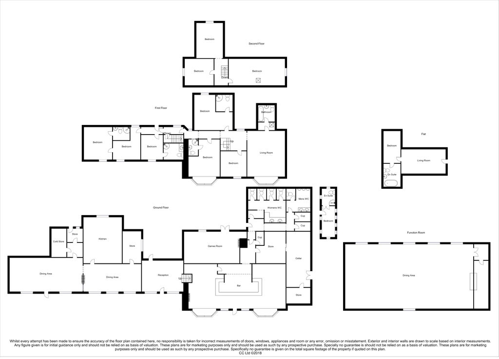
The Lower Lode Inn is a two storey Grade II listed building, dating back to the 15th Century. The main bar has a flagstone floor, large wood burner, bar counter and seating for c. 45 people. The restaurant can sit around 60 people and the third internal trade area, currently used as a pub games room, is situated towards the back of the pub.
There is separate venue space with bar which is licensed for weddings for up to 98 people or can be used for private functions and celebrations for up to 140 people. Guests can make use of the 5 en-suite letting rooms in the main building or the pub's large caravan and camp site.
Externally, there is also a large trade garden overlooking the river, and the pub also has a number of moorings for narrow boats and smaller vessels.
Lower Lode Inn website:
The Lower Lode Inn occupies a picturesque location on the banks of the River Severn in Forthampton.
The village is three miles from the medieval market town of Tewkesbury, on the western borders of the Cotswolds.
what3wrods///beaks.video.scary
Tewkesbury c. 5 miles Gloucester c. 14 miles Cheltenham c. 14 miles
Main Building
•Main bar (40-45)
•Bar counter
•Restaurant/Function room (60)
•Games room
•Customer toilets
•Commercial kitchen
•Storage
Separate function building
•Bar counter
•Function/dining area
All trade fixtures and fittings are included in the sale and we are advised they are free from loan, lease and hire purchase agreements.
Caravan/Camp Site & MooringThe lawned riverside caravan & campsite is set in over three acres, licensed for 10 caravans (there are 10 electric hook-ups) and ample space for camping, with facilities including Elsan disposal (chemical toilet), drinking water, shower and toilets.
Moorings are sited along the pub's river frontage with spaces for narrow boats and smaller boats available for rent from the pub.
5 en-suite letting rooms.
External DetailsThere is a large riverside beer garden with extensive seating.
Customer car parking is available on site.
Situated on the first floor of the main building and comprising:
•3 bedrooms
•Living room
•Bathroom
A separate purpose built function room venue, which is licensed for weddings
Capacity for weddings - 98 people
Capacity for functions - 140 people (maximum)
The Lower Lode Inn offers a rare opportunity to acquire a historic 15th‑century riverside pub set in a picturesque position on the banks of the River Severn, near Tewkesbury. The inn’s setting between the Malvern and Cotswold Hills, combined with its proximity to the town and surrounding countryside, ensures broad appeal across leisure visitors, walkers, boaters and those exploring the wider region.
The property benefits from strong seasonal trade, supported by extensive outdoor space including a large riverside beer garden and a lawned riverfront campsite that operates through the warmer months. These features attract high summer footfall, campers, paddleboarders, wild swimmers and visitors arriving by boat, supported further by mooring along the river frontage.
The inn also provides five en‑suite guest rooms, offering dependable year‑round accommodation income, alongside a purpose‑built function room licensed for weddings and suitable for celebrations and group gatherings. The ability to combine room bookings with campsite use makes the property particularly attractive for organised events, reunions and rallies.
Together, these elements create a well‑rounded operational opportunity. The Lower Lode Inn has strong predictable summer trade and is a versatile hospitality venue with multiple revenue streams which could be expanded. Whilst the current operator does open during the winter season, trade is limited and there and another operator may choose to to close for this period.
A full staff list will be made available in due course
Trading Information•YE 31/03/2025 T/O £307,044 GP £307,044
•YE 31/03/2024 T/O £302,807 GP £171,349
The current trading hours are:
Tues, Wed, Thurs 12:00 - 14:30 & 17:00 - 22:00
Friday 12:00 - 23:00
Saturday 12:00 - 23:00
Sunday 12:00 - 18:00
The property is being sold as a virtual freehold. The lease is 999 years from October 1949, with a rent of c.£1 per calendar year.
Business RatesRateable Value effective from 1st April 2026: Public House £10,000 & Lower Lode Caravan Park £8,100
Interested parties can obtain the latest rating information about this property by visiting or contacting the relevant local authority.
- Service charge
- Ask agent
- Business rates
- Ask agent
- Use class
- Ask agent
- Listed building
- No
- Business for sale
- Yes
An Energy Performance certificate helps you understand the current energy efficiency of a property.
Read more about EPC requirementsAsk agent
- BREEAM rating
- Ask agent
- Environmental description
- Ask agent
Brochure
Lower Lode Inn, Bishops Walk Forthampton, Tewkesbury, GL19 4RE
We’re the leading specialist advisor for buying and selling businesses in our sectors - hotels, pubs, restaurants, childcare, healthcare, convenience retail, leisure and medical.
If you’re looking to buy or sell a business in our specialist sectors – from a pharmacy in Sussex to a hotel in Austria – our expert advice and collaborative support will help you achieve your goals. You may be an independent first-time buyer or a multinational adding to your portfolio; either way, you’ll discover that our personalised service is focused on helping you achieve your ambitions.
Clients have access to our carefully managed network of potential buyers. This unique database of contacts has been continually developed by our advanced IT capabilities and benefits from both our years of experience developing our network and our wide geographical coverage.
Where we work
We employ the largest team of sector specialists in the UK and the largest group of hotel specialists in Europe, providing professional brokerage and advisory services from offices in major cities across Britain and Europe. And because we’ve been doing this for over 80 years, we know our sectors and local markets inside out. We work closely with our clients to guide and conclude transactions of any size, covering hotels, restaurants and pubs, leisure, forecourts and convenience retail businesses, social care and elderly care, childcare & education facilities, dental practices and pharmacies.
Our professional services
We offer unrivalled insight, experience and expertise across your choice of services, including brokerage, consultancy, finance, development, investment, surveying, rent reviews, dispute resolution, corporate valuation, and turnaround & recovery. These services are all underpinned by our in-depth market intelligence and leading-edge technology. And we’re accredited by the Royal Institution of Chartered Surveyors (RICS), so you can trust in our professionalism.
What makes us tick
Businesses are about people, so relationships matter to us. We bring an integrity and transparency to business which can be all too rare – and that’s why people trust us. Our clients will attest to our genuine desire to help achieve their objectives, our attention to detail, and our tireless hard work on their behalf. We understand that buying a business can bring its own pressures and strains; needs can change, plans may need to be adjusted, and opportunities can come and go. But we’re always here, a constant, flexible and reliable force you can count on.
Our opening hours for all offices:
Mon – Fri, 9am – 5.30pm
Your search history
You have no recent searches
Disclaimer - Property reference 3451447-fh. The information displayed about this property comprises a property advertisement. Rightmove.co.uk makes no warranty as to the accuracy or completeness of the advertisement or any linked or associated information, and Rightmove has no control over the content. This property advertisement does not constitute property particulars. The information is provided and maintained by Christie Owen & Davies Ltd, Pubs & Restaurants. Please contact the selling agent or developer directly to obtain any information which may be available under the terms of The Energy Performance of Buildings (Certificates and Inspections) (England and Wales) Regulations 2007 or the Home Report if in relation to a residential property in Scotland.

























