The Tickled Trout, Church Street, Bilton-in-Ainsty, York, YO26 7NN
Size
Ask agent
Tenure
Freehold
EPC
Parking
Ask agent
- Primary use
- Pub
Key features
- Superb, immaculately presented Country Inn
- 90 seated covers across numerous trade areas
- 5 Stunning Ensuite Letting Bedrooms
- T/O year end 31.03.25 £1,102,840 net of VAT
- Adjusted Net Profits c.£150,000
- Outside seating for 80 + car parking for 35. Energy Rating C
- Christie & Co Ref: 5455472
Description
The Tickled Trout offers itself as a beautiful Yorkshire Country Inn with boutique rooms, flagstone floors, open fires, big rugs and oak panelling. A brilliant example of a traditional Yorkshire pub which prides itself on an exceptional food offering, making use of the best local produce.
LocationThe Tickled Trout is situated in the affluent and extremely sought after village of Bilton-in-Ainsty, within North Yorkshire's infinitely desirable Golden Triangle. The market town of Wetherby is circa six miles west and the historic city of York, just 10 miles east. Slightly further afield but still a short drive away, Harrogate is around 15 miles west and Leeds 18 miles south west.
The village is quaint and peaceful, whilst being surrounded by an exceptionally well connected road network with access to the A1(M), A59 and A64 within just a few minutes.
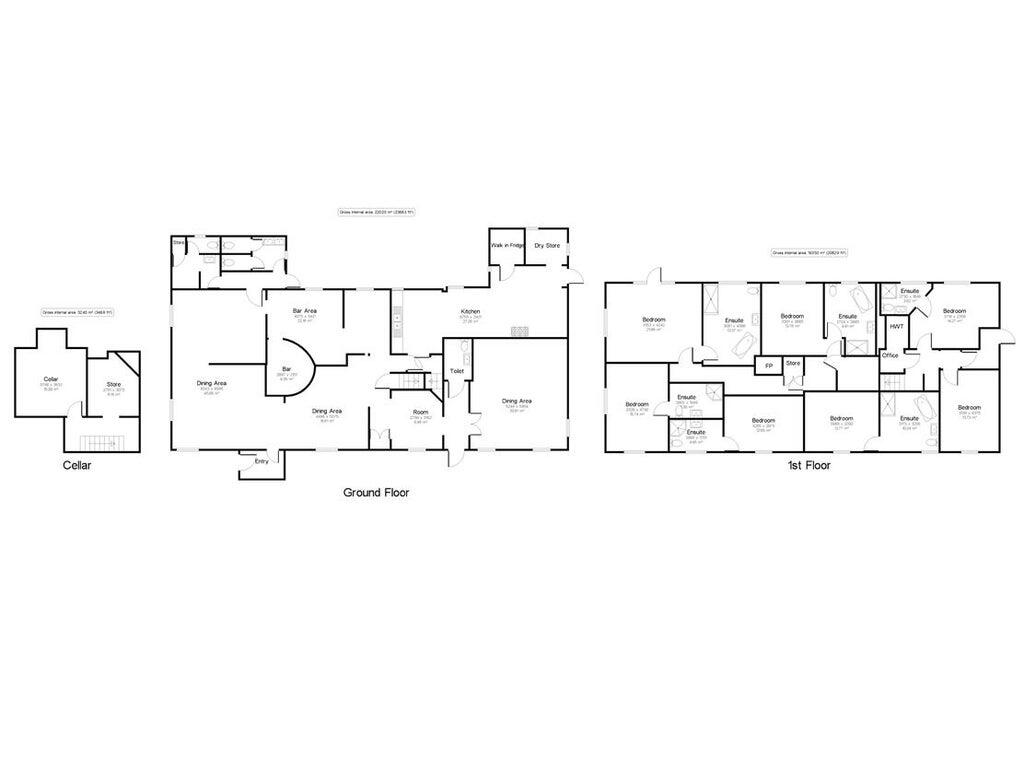
The ground floor is subdivided into numerous trade areas with a mixture of seating styles, all of which blend in to one another, but have the ability to be sectioned off if necessary. This provides an element of flexibility and versatility to the dining areas. There is a small bar area which is frequented by locals, and a small compact coffee bar which also serves as the hotel reception area.
Ancillary areas include a large, fully fitted commercial grade catering kitchen, walk-in fridge, various stores, cellar and customer toilets.
Fixtures and fittings are included with the exception of items that are personal to our client.
Letting AccommodationAt first floor level are five, gorgeous letting bedrooms, all with king sized beds and ensuite bathrooms. They are very tastefully decorated to the highest standard and are in-keeping with the style of the operation.
External DetailsExternally the pub boasts a combined 86 seats across a number of trading areas. There is a covered outdoor dining room with seating for 16 customers.
Additionally, there is a Moroccan Bedouin tent seating 15 people and equipped with log burners which is available for exclusive use.
Furthermore, there are four, four seater table and chairs with large parasols and four, six seater picnic benches on the lawned area to the front edge of the site.
To the rear of the pub is a wood-fired pizza oven which serves customers in the trade garden, as well as local residents on a take-away basis.
There are two bedrooms at the opposite end of the first floor to the letting rooms, currently occupied by staff.
The OpportunityThe Tickled Trout presents a fantastic opportunity to acquire an extremely well performing business which has recovered phenomenally well since reopening in May 2021. The current operators have established an enviable reputation since acquiring the pub back in 2018.
StaffThe business is owner operated by a husband and wife team who are accompanied by a strong team of full and part-time staff.
Trading InformationTurnover year end 31.03.25 £1,102,840 net of VAT
Adjusted Net Profits c.£150,000
Turnover last 6 months until 30.09.25 £508,432.44
Full accounts can be provided to seriously interested and proceedable parties upon request.
The business trades seven days a week:
12.00 noon to 10.00pm
The Rateable Value as at 1 April 2023 is £21,000. Confirmation of the actual rates payable should be sought from the relevant Local Authority.
RegulatoryPremises Licence
- Service charge
- Ask agent
- Business rates
- Ask agent
- Use class
- Ask agent
- Listed building
- Ask agent
- Business for sale
- Yes
An Energy Performance certificate helps you understand the current energy efficiency of a property.
Read more about EPC requirementsAsk agent
- BREEAM rating
- Ask agent
- Environmental description
- Ask agent
Brochure
The Tickled Trout, Church Street, Bilton-in-Ainsty, York, YO26 7NN
We’re the leading specialist advisor for buying and selling businesses in our sectors - hotels, pubs, restaurants, childcare, healthcare, convenience retail, leisure and medical.
If you’re looking to buy or sell a business in our specialist sectors – from a pharmacy in Sussex to a hotel in Austria – our expert advice and collaborative support will help you achieve your goals. You may be an independent first-time buyer or a multinational adding to your portfolio; either way, you’ll discover that our personalised service is focused on helping you achieve your ambitions.
Clients have access to our carefully managed network of potential buyers. This unique database of contacts has been continually developed by our advanced IT capabilities and benefits from both our years of experience developing our network and our wide geographical coverage.
Where we work
We employ the largest team of sector specialists in the UK and the largest group of hotel specialists in Europe, providing professional brokerage and advisory services from offices in major cities across Britain and Europe. And because we’ve been doing this for over 80 years, we know our sectors and local markets inside out. We work closely with our clients to guide and conclude transactions of any size, covering hotels, restaurants and pubs, leisure, forecourts and convenience retail businesses, social care and elderly care, childcare & education facilities, dental practices and pharmacies.
Our professional services
We offer unrivalled insight, experience and expertise across your choice of services, including brokerage, consultancy, finance, development, investment, surveying, rent reviews, dispute resolution, corporate valuation, and turnaround & recovery. These services are all underpinned by our in-depth market intelligence and leading-edge technology. And we’re accredited by the Royal Institution of Chartered Surveyors (RICS), so you can trust in our professionalism.
What makes us tick
Businesses are about people, so relationships matter to us. We bring an integrity and transparency to business which can be all too rare – and that’s why people trust us. Our clients will attest to our genuine desire to help achieve their objectives, our attention to detail, and our tireless hard work on their behalf. We understand that buying a business can bring its own pressures and strains; needs can change, plans may need to be adjusted, and opportunities can come and go. But we’re always here, a constant, flexible and reliable force you can count on.
Our opening hours for all offices:
Mon – Fri, 9am – 5.30pm
Your search history
You have no recent searches
Disclaimer - Property reference 5455472-fh. The information displayed about this property comprises a property advertisement. Rightmove.co.uk makes no warranty as to the accuracy or completeness of the advertisement or any linked or associated information, and Rightmove has no control over the content. This property advertisement does not constitute property particulars. The information is provided and maintained by Christie Owen & Davies Ltd, Pubs & Restaurants. Please contact the selling agent or developer directly to obtain any information which may be available under the terms of The Energy Performance of Buildings (Certificates and Inspections) (England and Wales) Regulations 2007 or the Home Report if in relation to a residential property in Scotland.


























