The Red Lion Inn, Skegness Road, Partney, Spilsby, PE23 4PG
Size
Ask agent
Tenure
Freehold
EPC
Parking
Ask agent
- Primary use
- Restaurant
Key features
- Village location in the Lincolnshire Wolds
- Well maintained substantial sized property
- Approximately 10 miles from the east coast
- Bar, restaurant and 5 en-suite lettings room
- 4 star accommodation, 5 star hygiene rating
- Large external seating area. potential for alternate use (STP). EPC rating D
- Christie & Co Ref: 5752367
Description
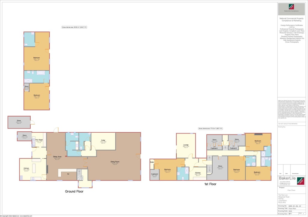
The Red Lion is a generous size. It is well maintained and decorated. The accommodation includes a restaurant which can be used in two parts, a good sized commercial kitchen, three double en-suite rooms in the main building with an additional two superior en-suite lettings rooms - one with a wet room and the second with a bath and walk in shower, in a recently built extended part of the site. In addition, there is owners accommodation to the first floor, plenty of storage, a fabulous sized patio and large car park. With a fantastic level of repeat bookings and bookings in advance the rooms provides a great additional income to the bar and restaurant and vice versa. The business would be ideally suited to someone with experience in hospitality or a client potentially entering into the industry for the first time and that could benefit from the platform the current owner has built.
LocationPositioned in the centre of Partney village, near Spilsby, close to the A16. This versatile business is well located for the East Coast and Skegness and all its attractions, the Lincolnshire aviation centre, the Skegness Railway, Gibraltar Point, numerous wildlife parks, National Trust sites and much more.
Internal Details• Good sized Commercial Kitchen
• Restaurant offering 70 comfortable covers
• Five Generously Sized En-suite Rooms
• One Bed Owners Accommodation
• Potential to extend and further develop the site subject to building and planning regulations
These are to be included within the sale.
External Details• Large Landscaped Patio Area
• Car Parking for circa 50 cars
• Centre of Village location
To the first floor there is a bright and modern one-bedroom owners flat. The accommodation includes, hallway, kitchenette, good sized lounge, double bedroom and en-suite bathroom.
The OpportunityWe are seeking a serious buyer to take advantage of this opportunity for an incredibly well presented and kept business, with a variety of current uses and significant potential into other sectors, such as a wedding venue (STP). The business is in a fantastic position for a new operator to grow and take the site to the next level, for this well connected and located business. Genuine retirement sale.
Trading InformationThis is available on request to registered interested parties.
Business RatesThe current Rateable value from 1st April 2023 is £5,000
RegulatoryThe Premises is fully licenced
- Service charge
- Ask agent
- Business rates
- Ask agent
- Use class
- Ask agent
- Listed building
- No
- Business for sale
- Yes
An Energy Performance certificate helps you understand the current energy efficiency of a property.
Read more about EPC requirementsAsk agent
- BREEAM rating
- Ask agent
- Environmental description
- Ask agent
Brochure
The Red Lion Inn, Skegness Road, Partney, Spilsby, PE23 4PG
We’re the leading specialist advisor for buying and selling businesses in our sectors - hotels, pubs, restaurants, childcare, healthcare, convenience retail, leisure and medical.
If you’re looking to buy or sell a business in our specialist sectors – from a pharmacy in Sussex to a hotel in Austria – our expert advice and collaborative support will help you achieve your goals. You may be an independent first-time buyer or a multinational adding to your portfolio; either way, you’ll discover that our personalised service is focused on helping you achieve your ambitions.
Clients have access to our carefully managed network of potential buyers. This unique database of contacts has been continually developed by our advanced IT capabilities and benefits from both our years of experience developing our network and our wide geographical coverage.
Where we work
We employ the largest team of sector specialists in the UK and the largest group of hotel specialists in Europe, providing professional brokerage and advisory services from offices in major cities across Britain and Europe. And because we’ve been doing this for over 80 years, we know our sectors and local markets inside out. We work closely with our clients to guide and conclude transactions of any size, covering hotels, restaurants and pubs, leisure, forecourts and convenience retail businesses, social care and elderly care, childcare & education facilities, dental practices and pharmacies.
Our professional services
We offer unrivalled insight, experience and expertise across your choice of services, including brokerage, consultancy, finance, development, investment, surveying, rent reviews, dispute resolution, corporate valuation, and turnaround & recovery. These services are all underpinned by our in-depth market intelligence and leading-edge technology. And we’re accredited by the Royal Institution of Chartered Surveyors (RICS), so you can trust in our professionalism.
What makes us tick
Businesses are about people, so relationships matter to us. We bring an integrity and transparency to business which can be all too rare – and that’s why people trust us. Our clients will attest to our genuine desire to help achieve their objectives, our attention to detail, and our tireless hard work on their behalf. We understand that buying a business can bring its own pressures and strains; needs can change, plans may need to be adjusted, and opportunities can come and go. But we’re always here, a constant, flexible and reliable force you can count on.
Our opening hours for all offices:
Mon – Fri, 9am – 5.30pm
Your search history
You have no recent searches
Disclaimer - Property reference 5752367-fh. The information displayed about this property comprises a property advertisement. Rightmove.co.uk makes no warranty as to the accuracy or completeness of the advertisement or any linked or associated information, and Rightmove has no control over the content. This property advertisement does not constitute property particulars. The information is provided and maintained by Christie Owen & Davies Ltd, Pubs & Restaurants. Please contact the selling agent or developer directly to obtain any information which may be available under the terms of The Energy Performance of Buildings (Certificates and Inspections) (England and Wales) Regulations 2007 or the Home Report if in relation to a residential property in Scotland.

















