The Waggon & Horses, Main Road, South Reston, LN11 8JQ
Size
Ask agent
Tenure
Freehold
EPC
Parking
Ask agent
- Primary use
- Pub
Key features
- Traditional pub with 18 pitch campsite
- Also contains a site shop
- Bar & restaurant with 90 covers
- Three bed owner's accommodation
- Energy rating C
- Projected Annual Turnover Y/E April 2026 £392,499
- Christie & Co Ref: 5752388
Description
The Waggon & Horses is a well established a long running pub, restaurant and camp site with an excellent reputation and long standing client base. It has been family run for a number of years and the current owner is looking to sell the site on a freehold basis to facilitate their retirement. The seller has offered to do a handover period with any potential purchaser.
LocationThe Waggon & Horses is the only pub and convenience store in the small village of South Reston, on the edge of the Lincolnshire Wolds
In a prominent position on the A157 approximately seven miles from Louth, eight miles from Mablethorpe and six miles from Alford, it is extremely well placed and attracts regulars and tourists from coastal areas, the Wolds and beyond.
Entering from the front, you are greeted by a welcoming and characterful lounge area with three sections, all feature filled with wood-panelled walls and ceiling beams.
The well-stocked bar has three hand pulls and five taps, along with ample room for bar stool seating.
The village store is located off the lounge section that has the pool table and TV.
The cosy middle lounge section is directly opposite the well-stocked bar and has an open fire.
The third section of the lounge offers a larger seating area adjacent to the restaurant, with access to the toilets and side entrance.
The spacious restaurant area has its own service bar and leads through to the large conservatory dining/function room, which has a disabled toilet off.
Well equipped commercial kitchen on the ground floor to the rear of the property, with several freestanding fridge and freezer units and generous worktop space.
The cellar is equipped with six gantries for ales and is located on the ground floor.
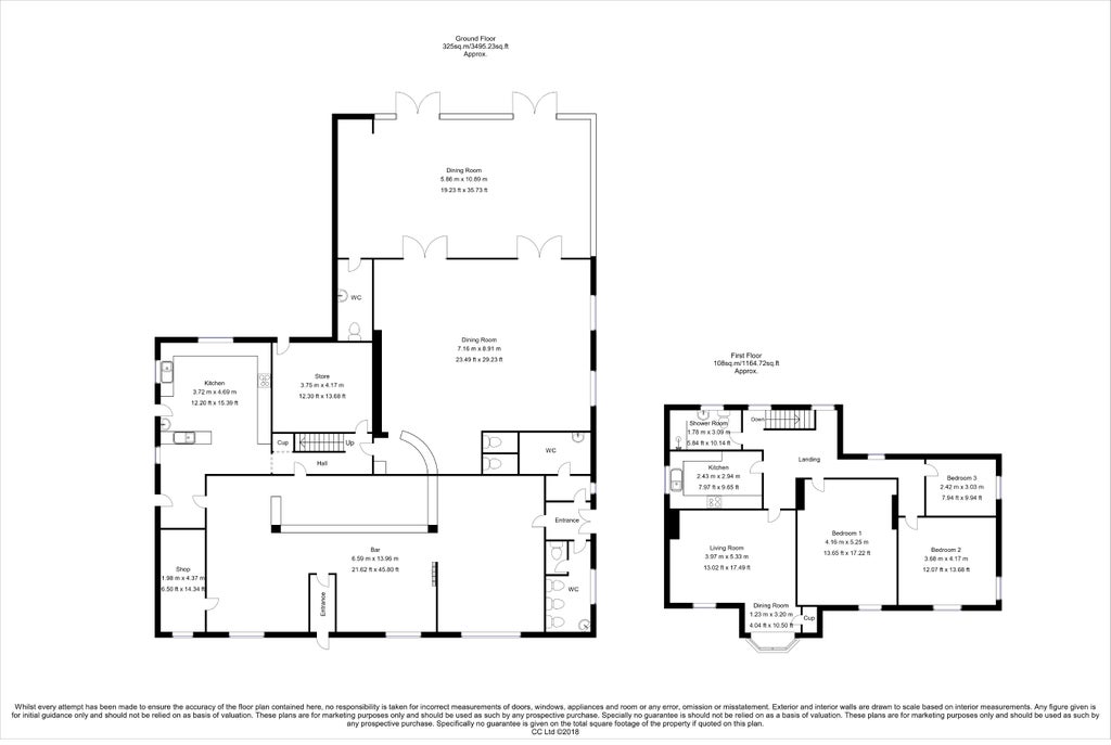
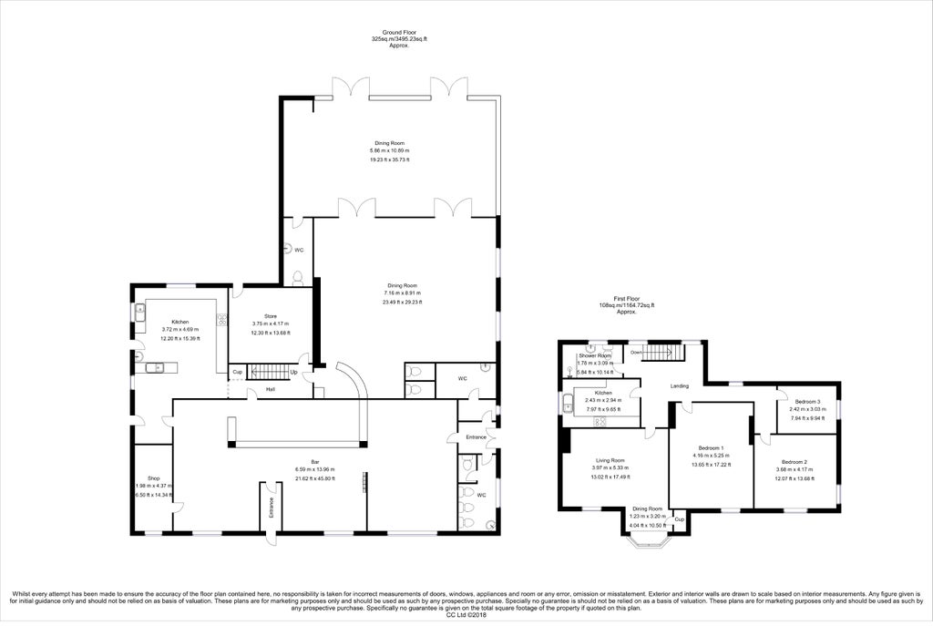
Please see the floorplans for further information.
Fixtures and fittings are included with the exception of items that are personal to our clients.
External DetailsThe front of the property stands in a prominent position, with an appealing mock-Tudor appearance and attractive stained glass windows.
There is a large car park, beer garden and conservatory.
The 0.9 acre caravan and camping site with 18 pitches including eight electric hook-up points is accessed via the car park and has toilet and shower facilities, along with a fresh water tap, washing up facilities and a chemical toilet waste point
The facilities block to the caravan and camping site also has two garages
Additional external storage for goods and equipment to the rear of the pub, along with a laundry room
The well presented three-bedroom owner's accommodation is on the first floor and offers two large bedrooms, a smaller bedroom/study, a modern bathroom with a large walk-in shower, a kitchen and a generous living/dining room.
The OpportunityThe Waggon & Horses is a wonderful opportunity for a couple or family looking for a large successful ‘year-round’ traditional destination pub with dining, that sits at the heart of a village community and has a popular caravan and camping site along with a village store.
Trading InformationEight month turnover ending November 2025 £225,395
Turnover year ending February 2024 £429,531
Turnover year ending February 2023 £424,361
Turnover year ending February 2022 £400,165
Monday 10:00 - 21:00
Tuesday 10:00 - 21:00
Wednesday 10:00 - 22:00
Thursday 10:00 - 22:00
Friday 10:00 - 00:00
Saturday 10:00 - 22:00
Sunday 10:00 - 22:00
Freehold
- Service charge
- Ask agent
- Business rates
- Ask agent
- Use class
- Ask agent
- Listed building
- No
- Business for sale
- Yes
An Energy Performance certificate helps you understand the current energy efficiency of a property.
Read more about EPC requirementsAsk agent
- BREEAM rating
- Ask agent
- Environmental description
- Ask agent
The Waggon & Horses, Main Road, South Reston, LN11 8JQ
We’re the leading specialist advisor for buying and selling businesses in our sectors - hotels, pubs, restaurants, childcare, healthcare, convenience retail, leisure and medical.
If you’re looking to buy or sell a business in our specialist sectors – from a pharmacy in Sussex to a hotel in Austria – our expert advice and collaborative support will help you achieve your goals. You may be an independent first-time buyer or a multinational adding to your portfolio; either way, you’ll discover that our personalised service is focused on helping you achieve your ambitions.
Clients have access to our carefully managed network of potential buyers. This unique database of contacts has been continually developed by our advanced IT capabilities and benefits from both our years of experience developing our network and our wide geographical coverage.
Where we work
We employ the largest team of sector specialists in the UK and the largest group of hotel specialists in Europe, providing professional brokerage and advisory services from offices in major cities across Britain and Europe. And because we’ve been doing this for over 80 years, we know our sectors and local markets inside out. We work closely with our clients to guide and conclude transactions of any size, covering hotels, restaurants and pubs, leisure, forecourts and convenience retail businesses, social care and elderly care, childcare & education facilities, dental practices and pharmacies.
Our professional services
We offer unrivalled insight, experience and expertise across your choice of services, including brokerage, consultancy, finance, development, investment, surveying, rent reviews, dispute resolution, corporate valuation, and turnaround & recovery. These services are all underpinned by our in-depth market intelligence and leading-edge technology. And we’re accredited by the Royal Institution of Chartered Surveyors (RICS), so you can trust in our professionalism.
What makes us tick
Businesses are about people, so relationships matter to us. We bring an integrity and transparency to business which can be all too rare – and that’s why people trust us. Our clients will attest to our genuine desire to help achieve their objectives, our attention to detail, and our tireless hard work on their behalf. We understand that buying a business can bring its own pressures and strains; needs can change, plans may need to be adjusted, and opportunities can come and go. But we’re always here, a constant, flexible and reliable force you can count on.
Our opening hours for all offices:
Mon – Fri, 9am – 5.30pm
Your search history
You have no recent searches
Disclaimer - Property reference 5752388-fh. The information displayed about this property comprises a property advertisement. Rightmove.co.uk makes no warranty as to the accuracy or completeness of the advertisement or any linked or associated information, and Rightmove has no control over the content. This property advertisement does not constitute property particulars. The information is provided and maintained by Christie & Co, Pubs & Restaurants. Please contact the selling agent or developer directly to obtain any information which may be available under the terms of The Energy Performance of Buildings (Certificates and Inspections) (England and Wales) Regulations 2007 or the Home Report if in relation to a residential property in Scotland.

































