The Plough, 2 Broadfield, Oswaldtwistle, Accrington, BB5 3RY
Size
Ask agent
Tenure
Freehold
EPC
Parking
Ask agent
- Primary use
- Pub
Key features
- Freehold pub with food
- Restaurant & bar with a restaurant upstairs
- Won best restaurant in Lancashire
- Live music on some Saturdays during the year
- Turnover YE 2024: £341,000 - Profits: £50,000
- Village location. Energy Rating B
- Christie & Co Ref: 5652082
Description
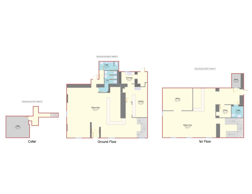
Sitting on a large plot the detached pub has been well maintained and updated by the current owners with a restaurant and bar downstairs, restaurant seating upstairs with private dining area able to seat up to 20 people at a time
LocationSituated just outside the popular village of Oswaldtwistle with easy access to Blackburn (3 miles) and the M65. Approximately 25 miles from Manchester with good motorway links.
The pub has a number of residents nearby providing steady local trade.
Open plan bar area with raised mezzanine used for further seating or live bands, large stair case leading to restaurant area with fitted booths.
Private dining for up to 20 people.
Total covers 86 dining and a further 8 in the bar area.
We have been advised that the majority of the fixtures and fittings are owned outright and will be included in the sale, subject to an inventory.
External DetailsOutdoor seating area (30 covers)
Car Park (20 spaces)
The Plough has a loyal client-base who maintain steady trade along with guests coming as a destination dining area for the restaurant.
Due to family commitments the premises is running on limited opening hours providing a great opportunity to extend these for a new owner.
Turnover for the year ending 2024 - £341,529
Adjusted Net Profit - circa £49,267
Monday - Wednesday - Closed
Thursday & Friday - 5-11pm
Saturday - 12pm-12am
Sunday - 12pm-11pm
The Rateable Value is £20,000 with effect from April 2023. Confirmation of actual business rates payable should be obtained from the local authority.
RegulatoryPremises Licence
- Service charge
- Ask agent
- Business rates
- Ask agent
- Use class
- Ask agent
- Listed building
- No
- Business for sale
- Yes
An Energy Performance certificate helps you understand the current energy efficiency of a property.
Read more about EPC requirementsAsk agent
- BREEAM rating
- Ask agent
- Environmental description
- Ask agent
Brochure
The Plough, 2 Broadfield, Oswaldtwistle, Accrington, BB5 3RY
We’re the leading specialist advisor for buying and selling businesses in our sectors - hotels, pubs, restaurants, childcare, healthcare, convenience retail, leisure and medical.
If you’re looking to buy or sell a business in our specialist sectors – from a pharmacy in Sussex to a hotel in Austria – our expert advice and collaborative support will help you achieve your goals. You may be an independent first-time buyer or a multinational adding to your portfolio; either way, you’ll discover that our personalised service is focused on helping you achieve your ambitions.
Clients have access to our carefully managed network of potential buyers. This unique database of contacts has been continually developed by our advanced IT capabilities and benefits from both our years of experience developing our network and our wide geographical coverage.
Where we work
We employ the largest team of sector specialists in the UK and the largest group of hotel specialists in Europe, providing professional brokerage and advisory services from offices in major cities across Britain and Europe. And because we’ve been doing this for over 80 years, we know our sectors and local markets inside out. We work closely with our clients to guide and conclude transactions of any size, covering hotels, restaurants and pubs, leisure, forecourts and convenience retail businesses, social care and elderly care, childcare & education facilities, dental practices and pharmacies.
Our professional services
We offer unrivalled insight, experience and expertise across your choice of services, including brokerage, consultancy, finance, development, investment, surveying, rent reviews, dispute resolution, corporate valuation, and turnaround & recovery. These services are all underpinned by our in-depth market intelligence and leading-edge technology. And we’re accredited by the Royal Institution of Chartered Surveyors (RICS), so you can trust in our professionalism.
What makes us tick
Businesses are about people, so relationships matter to us. We bring an integrity and transparency to business which can be all too rare – and that’s why people trust us. Our clients will attest to our genuine desire to help achieve their objectives, our attention to detail, and our tireless hard work on their behalf. We understand that buying a business can bring its own pressures and strains; needs can change, plans may need to be adjusted, and opportunities can come and go. But we’re always here, a constant, flexible and reliable force you can count on.
Our opening hours for all offices:
Mon – Fri, 9am – 5.30pm
Your search history
You have no recent searches
Disclaimer - Property reference 5652082-fh. The information displayed about this property comprises a property advertisement. Rightmove.co.uk makes no warranty as to the accuracy or completeness of the advertisement or any linked or associated information, and Rightmove has no control over the content. This property advertisement does not constitute property particulars. The information is provided and maintained by Christie Owen & Davies Ltd, Pubs & Restaurants. Please contact the selling agent or developer directly to obtain any information which may be available under the terms of The Energy Performance of Buildings (Certificates and Inspections) (England and Wales) Regulations 2007 or the Home Report if in relation to a residential property in Scotland.














