Dog & Hedgehog, 2 The Green, Dadlington, Nuneaton, CV13 6BJ
Size
Ask agent
Tenure
Freehold
EPC
Parking
Ask agent
- Primary use
- Pub
Key features
- Substantial freehold pub on c. 1 acre plot
- c.150 internal covers and large car park
- Destination Pub with wide local catchment
- Includes 2 Residential cottages
- Additional planning for Shepherd Huts
- 4 Bed Duplex owners accommodation. Energy rating D
- Christie & Co Ref: 5854412
Description
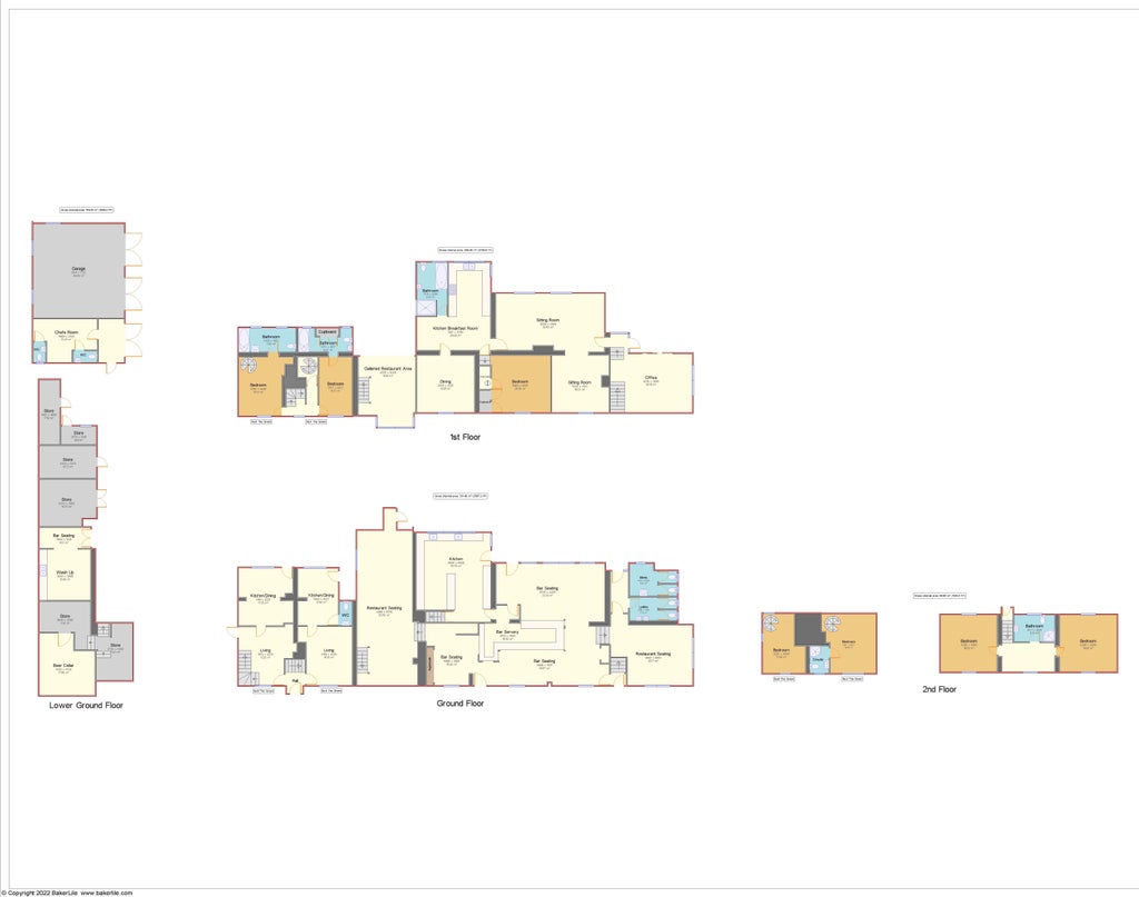
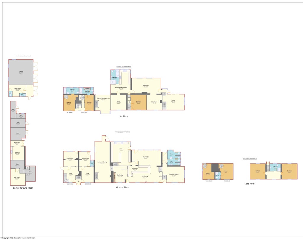
The Dog & Hedgehog is a substantial property, located on the corner of the village green. The 18th century pub sits on a site of approximately one acre, comprising of the large historic public house, two residential cottages, several outbuildings & garages and a four-bedroom duplex apartment above the pub acting as managers accommodation.
The pub is currently closed following the retirement of its long term tenant, where the pub had a long and successful period of trade, renowned for high quality food and excellent hospitality.
The Dog & Hedgehog is location in the village of Dadlington, in the Hinckley & Bosworth District of Leicestershire. The village is situated between Hinckley (6 minutes) , Market Bosworth (11 minutes) and Nuneaton (15 minutes) and within a short drive from the M69 and A5.
The village has historic links to the Battle of Bosworth and is stones throw from the Battle of Bosworth Heritage centre. Additional local attractions include Twycross Zoo.
The village itself is a charming rural village with plenty of local character. The pub is directly opposite the 13th century church.
The main pub is accessed through one of two entrances, with a street entrance and rear entrance form the car park. The pub boasts plenty of features throughout. The heartbeat of the pub is the large central bar servery with seated bar areas (50 covers) and a snug, with a log fire place. The main restaurant area contains around 70 covers across the ground floor and mezzanine areas. An additional restaurant area contains a further 30 covers.
Customer Toilets and a large commercial kitchen complete the ground floor. The lower ground floor is accessible from the kitchen providing access to the cellar and wash up room. The cellar has street level access from the rear of the pub to aid deliveries.
The upper floors consists of a significant 4-bedroom managers flat.
Fixtures and fittings are included in the sale. A detailed inventory will be provided to interested parties and their solicitors.
External DetailsThe pub has a large car park for up to 50 vehicles and two beer gardens, which benefits planning permission for the development of shepherd huts. The beer gardens have fantastic countryside views with a south facing aspect over-looking the Ashby Canal.
There are several outbuildings with a further garden area and 2 residential cottages
The owner’s accommodation consists of a spacious four-bedroom duplex apartment located above the pub. It offers direct access to the business and is supported by a staff changing block and garage storage, providing operational flexibility.
Other PropertyThere are several additional buildings to the rear of the property, with a large garage, staff changing room & various storerooms.
There are 2 residential cottages attached to the side of the pub. Each cottage is a two bedroom property, with ground floor living, kitchen and dining room and a bathroom on the 1st floor. These would act as excellent short stay letting units. Both cottages have enclosed gardens to the rear.
The Dog & Hedgehog is a fantastic opportunity to revive a previously thriving pub & restaurant, to maximise the potential of the building. The pub is set on a large site of nearly 1 acre, and offers enough covers internally (c150 covers), to thrive as a destination venue with a significant local catchment area.
With the planning permission for shepherd huts, two cottages, large managers accommodation and several disused outbuildings, there is significant potential to create a diverse business combining food, drink and accommodation.
Closed Pub
TenureFreehold
Business RatesRateable Value: £67,000.
- Service charge
- Ask agent
- Business rates
- Ask agent
- Use class
- Ask agent
- Listed building
- No
- Business for sale
- Yes
An Energy Performance certificate helps you understand the current energy efficiency of a property.
Read more about EPC requirementsAsk agent
- BREEAM rating
- Ask agent
- Environmental description
- Ask agent
Brochure
Dog & Hedgehog, 2 The Green, Dadlington, Nuneaton, CV13 6BJ
We’re the leading specialist advisor for buying and selling businesses in our sectors - hotels, pubs, restaurants, childcare, healthcare, convenience retail, leisure and medical.
If you’re looking to buy or sell a business in our specialist sectors – from a pharmacy in Sussex to a hotel in Austria – our expert advice and collaborative support will help you achieve your goals. You may be an independent first-time buyer or a multinational adding to your portfolio; either way, you’ll discover that our personalised service is focused on helping you achieve your ambitions.
Clients have access to our carefully managed network of potential buyers. This unique database of contacts has been continually developed by our advanced IT capabilities and benefits from both our years of experience developing our network and our wide geographical coverage.
Where we work
We employ the largest team of sector specialists in the UK and the largest group of hotel specialists in Europe, providing professional brokerage and advisory services from offices in major cities across Britain and Europe. And because we’ve been doing this for over 80 years, we know our sectors and local markets inside out. We work closely with our clients to guide and conclude transactions of any size, covering hotels, restaurants and pubs, leisure, forecourts and convenience retail businesses, social care and elderly care, childcare & education facilities, dental practices and pharmacies.
Our professional services
We offer unrivalled insight, experience and expertise across your choice of services, including brokerage, consultancy, finance, development, investment, surveying, rent reviews, dispute resolution, corporate valuation, and turnaround & recovery. These services are all underpinned by our in-depth market intelligence and leading-edge technology. And we’re accredited by the Royal Institution of Chartered Surveyors (RICS), so you can trust in our professionalism.
What makes us tick
Businesses are about people, so relationships matter to us. We bring an integrity and transparency to business which can be all too rare – and that’s why people trust us. Our clients will attest to our genuine desire to help achieve their objectives, our attention to detail, and our tireless hard work on their behalf. We understand that buying a business can bring its own pressures and strains; needs can change, plans may need to be adjusted, and opportunities can come and go. But we’re always here, a constant, flexible and reliable force you can count on.
Our opening hours for all offices:
Mon – Fri, 9am – 5.30pm
Your search history
You have no recent searches
Disclaimer - Property reference 5854412-fh. The information displayed about this property comprises a property advertisement. Rightmove.co.uk makes no warranty as to the accuracy or completeness of the advertisement or any linked or associated information, and Rightmove has no control over the content. This property advertisement does not constitute property particulars. The information is provided and maintained by Christie Owen & Davies Ltd, Pubs & Restaurants. Please contact the selling agent or developer directly to obtain any information which may be available under the terms of The Energy Performance of Buildings (Certificates and Inspections) (England and Wales) Regulations 2007 or the Home Report if in relation to a residential property in Scotland.




























