Sweeney & Todd, 10 Castle Street, Reading, Berkshire, RG1 7RD
Size
Ask agent
Tenure
Freehold
EPC
Parking
Ask agent
- Primary use
- Restaurant
Key features
- Excellent trading location and business
- Planning permission granted for four flats
- Established business - net turnover of £700k
- Empty upper three floors ready for conversion
- Strong brand with 40 years of goodwill
- Excellent investment opportunity
- Christie & Co Ref: 3867967
Description
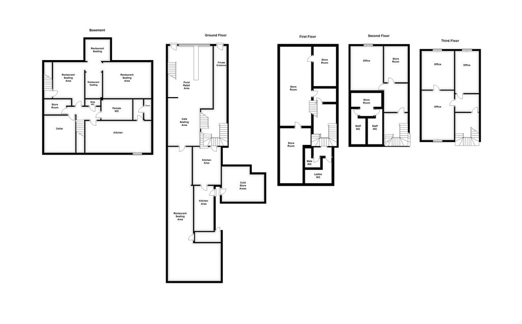
The property comprises a Grade II listed building arranged over basement, ground, and three upper floors.
The ground floor houses a well known pie shop and restaurant, with a separate entrance providing access to the upper floors. Planning permission has been granted for the conversion of the upper parts into four residential flats, offering a valuable development angle.
The building retains many original features and offers a unique blend of character and commercial potential.
Sweeney & Todd occupies a prominent position on Castle Street in the heart of Reading town centre, just a short walk from The Oracle shopping centre, Reading Station, and key cultural landmarks such as The Hexagon and Minster Church.
This central location benefits from high footfall, excellent transport links, and proximity to a thriving mix of retail, leisure, and residential uses. Reading itself is a major commercial hub in the Thames Valley, with strong demographics and ongoing investment in town centre regeneration.
Internally, the restaurant provides seating for up to 100 covers across a mix of open plan dining space and intimate alcoves, creating a warm and inviting atmosphere.
The basement level includes a dining area, the beer cellar, the bake house and ancillary storage. Approximately half of the basement area is owned by the neighbouring church and is rented to the business with an annual rent of £6,000 per annum on a rolling agreement.
The ground floor shop front serves as a deli and takeaway counter, offering a wide range of pies, pasties, sausage rolls, and cold meats.
The upper floors, currently used for office and storage, are approved for conversion into residential accommodation.
The property benefits from a traditional shop frontage onto Castle Street, with a separate access to the upper floors via a side entrance.
There is no external seating or garden area, but the central location ensures strong visibility and accessibility.
Nearby public car parking and pedestrian routes support both daytime and evening trade.
There is no dedicated owners’ accommodation currently in use, but the approved planning scheme includes a self-contained apartment at the rear of the ground floor, which could be adapted for owner-occupier use or let independently.
The OpportunityThis is a rare opportunity to acquire one of Reading’s most iconic food businesses, established in 1978 and still trading strongly with a loyal customer base and excellent reputation.
The business generates a net turnover of approximately £700,000 with profits in the region of £140,000. A new operator could build on this success, expand the brand, or reposition the offer to suit modern dining trends. Alternatively, the property lends itself to redevelopment, with planning permission in place for four flats and scope to enhance the ground floor commercial use.
The site would suit developers, restaurateurs, or pub operators seeking a town centre presence with heritage appeal and income potential.
The business is run by five full-time and three part-time staff, alongside two owner-operators who are actively involved.
This lean and experienced team ensures smooth day-to-day operations and strong customer service. TUPE would apply for members of staff who wish to stay.
For the year ending April 2025, the business generated £700,000 in net turnover and a net profit of £140,000. This reflects consistent trade and efficient cost control, with further upside potential.
Development PotentialThe site benefits from planning permission for residential flats, presenting a clear opportunity for redevelopment or mixed-use conversion. Alternatively, there is scope to expand the trading footprint or diversify income streams, subject to planning.
Business RatesRates payable for 2025-26 were just over £9.6k.
RegulatoryPremises licence
- Service charge
- Ask agent
- Business rates
- Ask agent
- Use class
- Ask agent
- Listed building
- Ask agent
- Business for sale
- Yes
An Energy Performance certificate helps you understand the current energy efficiency of a property.
Read more about EPC requirementsAsk agent
- BREEAM rating
- Ask agent
- Environmental description
- Ask agent
Brochure
Sweeney & Todd, 10 Castle Street, Reading, Berkshire, RG1 7RD
We’re the leading specialist advisor for buying and selling businesses in our sectors - hotels, pubs, restaurants, childcare, healthcare, convenience retail, leisure and medical.
If you’re looking to buy or sell a business in our specialist sectors – from a pharmacy in Sussex to a hotel in Austria – our expert advice and collaborative support will help you achieve your goals. You may be an independent first-time buyer or a multinational adding to your portfolio; either way, you’ll discover that our personalised service is focused on helping you achieve your ambitions.
Clients have access to our carefully managed network of potential buyers. This unique database of contacts has been continually developed by our advanced IT capabilities and benefits from both our years of experience developing our network and our wide geographical coverage.
Where we work
We employ the largest team of sector specialists in the UK and the largest group of hotel specialists in Europe, providing professional brokerage and advisory services from offices in major cities across Britain and Europe. And because we’ve been doing this for over 80 years, we know our sectors and local markets inside out. We work closely with our clients to guide and conclude transactions of any size, covering hotels, restaurants and pubs, leisure, forecourts and convenience retail businesses, social care and elderly care, childcare & education facilities, dental practices and pharmacies.
Our professional services
We offer unrivalled insight, experience and expertise across your choice of services, including brokerage, consultancy, finance, development, investment, surveying, rent reviews, dispute resolution, corporate valuation, and turnaround & recovery. These services are all underpinned by our in-depth market intelligence and leading-edge technology. And we’re accredited by the Royal Institution of Chartered Surveyors (RICS), so you can trust in our professionalism.
What makes us tick
Businesses are about people, so relationships matter to us. We bring an integrity and transparency to business which can be all too rare – and that’s why people trust us. Our clients will attest to our genuine desire to help achieve their objectives, our attention to detail, and our tireless hard work on their behalf. We understand that buying a business can bring its own pressures and strains; needs can change, plans may need to be adjusted, and opportunities can come and go. But we’re always here, a constant, flexible and reliable force you can count on.
Our opening hours for all offices:
Mon – Fri, 9am – 5.30pm
Your search history
You have no recent searches
Disclaimer - Property reference 3867967-fh. The information displayed about this property comprises a property advertisement. Rightmove.co.uk makes no warranty as to the accuracy or completeness of the advertisement or any linked or associated information, and Rightmove has no control over the content. This property advertisement does not constitute property particulars. The information is provided and maintained by Christie Owen & Davies Ltd, Pubs & Restaurants. Please contact the selling agent or developer directly to obtain any information which may be available under the terms of The Energy Performance of Buildings (Certificates and Inspections) (England and Wales) Regulations 2007 or the Home Report if in relation to a residential property in Scotland.









