Hoyas Cantonese, 1 Rochdale Road East, Heywood, Manchester, OL10 4DX
Size
Ask agent
Tenure
Freehold
EPC
Parking
Ask agent
- Primary use
- Restaurant
Key features
- Established chinese restaurant
- Open plan with 60 covers
- Commercial Kitchen
- Four bedroom owner accommodation
- EBITDA '24 - £72'663
- EPC Rating C
- Christie & Co Ref: 5665022
Description
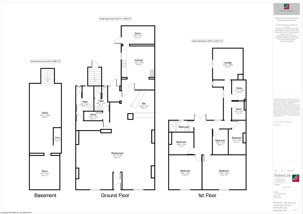
This is a 60-cover Cantonese restaurant with a welcoming bar area, offering a comfortable and stylish setting for diners. The business has built up an excellent reputation and enjoys a loyal local trade. The premises are fully equipped and ready for continued operation.
LocationHoyas Cantonese is situated in the heart of Heywood, benefiting from a prominent position that attracts both local residents and visitors. The area enjoys strong footfall and easy access, making it an ideal spot for a well-established dining venue.
Internal DetailsThe restaurant features a fully fitted commercial kitchen designed for efficiency and high-volume service. The dining area is well-presented, with ample seating for up to 60 guests. To the rear, there is private parking for six vehicles, providing convenience for staff and customers alike.
Fixtures & FittingsWe have been advised that the majority of the fixtures and fittings are owned outright and will be included in the sale, subject to an inventory.
Owner's AccommodationAbove the restaurant is a large, versatile space currently arranged as five bedrooms. This can easily be reconfigured into a three- or four-bedroom owner’s or manager’s flat, offering comfortable living quarters or potential for letting accommodation.
The OpportunityHoyas Cantonese represents a rare chance to acquire a thriving, well-established restaurant with strong local trade and excellent facilities. With its spacious owner’s accommodation and adaptable layout, the property offers flexibility for both business and residential use. This is an ideal opportunity for an experienced operator or investor looking to step into a successful hospitality venture.
Trading InformationTurnover '24 - 238,828
GP - 164475
Adjusted Nett - 72663
Tuesday to Saturday
5.00pm - 10.00pm
Sunday
3.00pm - 10.00pm
Monday
Closed
The Rateable Value is £9,700 with effect from April 2023. Confirmation of actual business rates payable should be obtained from the local authority.
RegulatoryPremises Licence
- Service charge
- Ask agent
- Business rates
- Ask agent
- Use class
- Ask agent
- Listed building
- Ask agent
- Business for sale
- Yes
An Energy Performance certificate helps you understand the current energy efficiency of a property.
Read more about EPC requirementsAsk agent
- BREEAM rating
- Ask agent
- Environmental description
- Ask agent
Brochure
Hoyas Cantonese, 1 Rochdale Road East, Heywood, Manchester, OL10 4DX
We’re the leading specialist advisor for buying and selling businesses in our sectors - hotels, pubs, restaurants, childcare, healthcare, convenience retail, leisure and medical.
If you’re looking to buy or sell a business in our specialist sectors – from a pharmacy in Sussex to a hotel in Austria – our expert advice and collaborative support will help you achieve your goals. You may be an independent first-time buyer or a multinational adding to your portfolio; either way, you’ll discover that our personalised service is focused on helping you achieve your ambitions.
Clients have access to our carefully managed network of potential buyers. This unique database of contacts has been continually developed by our advanced IT capabilities and benefits from both our years of experience developing our network and our wide geographical coverage.
Where we work
We employ the largest team of sector specialists in the UK and the largest group of hotel specialists in Europe, providing professional brokerage and advisory services from offices in major cities across Britain and Europe. And because we’ve been doing this for over 80 years, we know our sectors and local markets inside out. We work closely with our clients to guide and conclude transactions of any size, covering hotels, restaurants and pubs, leisure, forecourts and convenience retail businesses, social care and elderly care, childcare & education facilities, dental practices and pharmacies.
Our professional services
We offer unrivalled insight, experience and expertise across your choice of services, including brokerage, consultancy, finance, development, investment, surveying, rent reviews, dispute resolution, corporate valuation, and turnaround & recovery. These services are all underpinned by our in-depth market intelligence and leading-edge technology. And we’re accredited by the Royal Institution of Chartered Surveyors (RICS), so you can trust in our professionalism.
What makes us tick
Businesses are about people, so relationships matter to us. We bring an integrity and transparency to business which can be all too rare – and that’s why people trust us. Our clients will attest to our genuine desire to help achieve their objectives, our attention to detail, and our tireless hard work on their behalf. We understand that buying a business can bring its own pressures and strains; needs can change, plans may need to be adjusted, and opportunities can come and go. But we’re always here, a constant, flexible and reliable force you can count on.
Our opening hours for all offices:
Mon – Fri, 9am – 5.30pm
Your search history
You have no recent searches
Disclaimer - Property reference 5665022-fh. The information displayed about this property comprises a property advertisement. Rightmove.co.uk makes no warranty as to the accuracy or completeness of the advertisement or any linked or associated information, and Rightmove has no control over the content. This property advertisement does not constitute property particulars. The information is provided and maintained by Christie Owen & Davies Ltd, Pubs & Restaurants. Please contact the selling agent or developer directly to obtain any information which may be available under the terms of The Energy Performance of Buildings (Certificates and Inspections) (England and Wales) Regulations 2007 or the Home Report if in relation to a residential property in Scotland.














