The Queens Head, 15 Front Street, Glanton, Alnwick, NE66 4AP
Size
Ask agent
Tenure
Freehold
EPC
Parking
Ask agent
- Primary use
- Pub
Key features
- Country pub in pretty Northumberland village
- Four double en suite letting bedrooms
- Large two bed owner's/manager's apartment
- Bar, restaurant, pool room, catering kitchen
- Parking, beer garden, superb views
- Located between Alnwick & National Park | Energy Rating C
- Christie & Co Ref: 6450580
Description
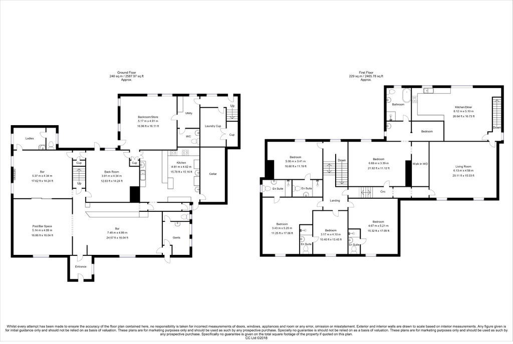
The Queens Head is a traditional, two-storey detached public house built in stone, featuring four double en-suite letting bedrooms. The property combines period charm with trading areas finished to a high standard and well-appointed living accommodation above.
LocationThe village of Glanton is located just off the A697 and just a few miles east of the edge of the Northumberland National Park, home to the Cheviot Hills and some stunning scenery including one of the world’s largest dark sky parks.
Located in close proximity to the highly desirable market town of Alnwick, renowned for its iconic Castle and Gardens. Alnwick lies approximately 10 miles (16 minutes) to the east, while the Northumberland Coast Area of Outstanding Natural Beauty is just a short drive beyond, offering some of the UK’s most spectacular coastal scenery.
The coastline, the castles, wonderful scenery, quaint villages and proximity to The Scottish Borders and road access to both Edinburgh and Newcastle upon Tyne, make the Queens Head ideally situated to capitalise on the huge volume of tourism and leisure business in the region.
The pub comprises a bar with servery, tables and chairs and a feature stove, and this room gives open plan access to two further rooms, both currently set up as pool rooms however these could be converted to additional dining/restaurant areas if required, which would enable in excess of 60 covers comfortably across the ground floor. At the rear is a dining room providing access to the rear beer garden.
At the rear of the pub is a further utility room, which is currently used for laundry, and the commercial kitchen which is of a very good size with a good selection of cooking, washing and refrigeration appliances, as well as ample prep areas, sinks and storage.
We have been advised that the fixtures and fittings are owned outright and will be included in the sale, subject to an inventory. Items personal to the sellers are excluded.
Letting AccommodationThe four double letting rooms are on the first floor and are all very spacious and well presented in a contemporary style with modern, fully tiled en suite bathrooms which are finished to a high standard.
External DetailsThere is car parking to the front and a southerly facing lawned beer garden to the rear.
Owner's AccommodationOn the first floor is a very good sized and well appointed apartment which comprises a big lounge-sitting room, a kitchen/breakfast room with fitted units and integrated appliances, a double bedroom with a further single bedroom, walk in wardrobe and a large family bathroom. It also has the added benefit of some lovely rural views across the rolling hills of Northumberland.
The OpportunityThe Queens Head presents a fantastic opportunity for an operator to take on a well-established public house in the village of Glanton near Alnwick. With an impressive 4.6-star Google rating, a feature on the the ITV series VERA and a prime location close to major attractions this pub is ideally positioned to capture strong tourist trade.
There is excellent scope to grow the food and accommodation offering, supported by a spacious catering kitchen and four generously sized letting bedrooms all of which are fitted to a high standard. This creates a solid platform for expansion and increased revenue, making it an attractive proposition for an ambitious operator.
The pub has had been occupied by the same operator for 12 years for only 5 days a week.
Trading HoursMonday: 5:00 pm – 11:00 pm
Tuesday: Closed
Wednesday: Closed
Thursday: 5:00 pm – 11:00 pm
Friday: 5:00 pm – 11:00 pm
Saturday: 12:00 pm – 11:00 pm
Sunday: 12:00 pm – 10:00 pm
The Rateable Value is £3,500 with effect from 1 April 2023. Confirmation of actual business rates payable should be obtained from the Local Authority.
RegulatoryPremises License
- Service charge
- Ask agent
- Business rates
- Ask agent
- Use class
- Ask agent
- Listed building
- Ask agent
- Business for sale
- Yes
An Energy Performance certificate helps you understand the current energy efficiency of a property.
Read more about EPC requirementsAsk agent
- BREEAM rating
- Ask agent
- Environmental description
- Ask agent
Brochure
The Queens Head, 15 Front Street, Glanton, Alnwick, NE66 4AP
We’re the leading specialist advisor for buying and selling businesses in our sectors - hotels, pubs, restaurants, childcare, healthcare, convenience retail, leisure and medical.
If you’re looking to buy or sell a business in our specialist sectors – from a pharmacy in Sussex to a hotel in Austria – our expert advice and collaborative support will help you achieve your goals. You may be an independent first-time buyer or a multinational adding to your portfolio; either way, you’ll discover that our personalised service is focused on helping you achieve your ambitions.
Clients have access to our carefully managed network of potential buyers. This unique database of contacts has been continually developed by our advanced IT capabilities and benefits from both our years of experience developing our network and our wide geographical coverage.
Where we work
We employ the largest team of sector specialists in the UK and the largest group of hotel specialists in Europe, providing professional brokerage and advisory services from offices in major cities across Britain and Europe. And because we’ve been doing this for over 80 years, we know our sectors and local markets inside out. We work closely with our clients to guide and conclude transactions of any size, covering hotels, restaurants and pubs, leisure, forecourts and convenience retail businesses, social care and elderly care, childcare & education facilities, dental practices and pharmacies.
Our professional services
We offer unrivalled insight, experience and expertise across your choice of services, including brokerage, consultancy, finance, development, investment, surveying, rent reviews, dispute resolution, corporate valuation, and turnaround & recovery. These services are all underpinned by our in-depth market intelligence and leading-edge technology. And we’re accredited by the Royal Institution of Chartered Surveyors (RICS), so you can trust in our professionalism.
What makes us tick
Businesses are about people, so relationships matter to us. We bring an integrity and transparency to business which can be all too rare – and that’s why people trust us. Our clients will attest to our genuine desire to help achieve their objectives, our attention to detail, and our tireless hard work on their behalf. We understand that buying a business can bring its own pressures and strains; needs can change, plans may need to be adjusted, and opportunities can come and go. But we’re always here, a constant, flexible and reliable force you can count on.
Our opening hours for all offices:
Mon – Fri, 9am – 5.30pm
Your search history
You have no recent searches
Disclaimer - Property reference 6450580-fh. The information displayed about this property comprises a property advertisement. Rightmove.co.uk makes no warranty as to the accuracy or completeness of the advertisement or any linked or associated information, and Rightmove has no control over the content. This property advertisement does not constitute property particulars. The information is provided and maintained by Christie Owen & Davies Ltd, Pubs & Restaurants. Please contact the selling agent or developer directly to obtain any information which may be available under the terms of The Energy Performance of Buildings (Certificates and Inspections) (England and Wales) Regulations 2007 or the Home Report if in relation to a residential property in Scotland.


















