Whitfield Court, Honeywood Close, White Cliffs Business Park, Whitfield, Kent
Size
3,196.88
Lease length
Ask agent
EPC
Parking
8
- Price per
- Primary use
- Light industrial
Building amenities
Additional costs may apply for some services – please check the full property description for more details.
- Parking
Key features
- Light Industrial Unit
- Part Mezzanine Floor
- 297 sq m approx
- Prominent Business Estate
- Good transport links
- Onsite Parking
- Electricity, Water, Drainage, Broadband connectivity
Description
• Prominent Business Estate: Adjacent to Dover District Council Offices and close to Tesco’s superstore, the unit benefits from easy access to the A2/M2 and their links to London and Europe.
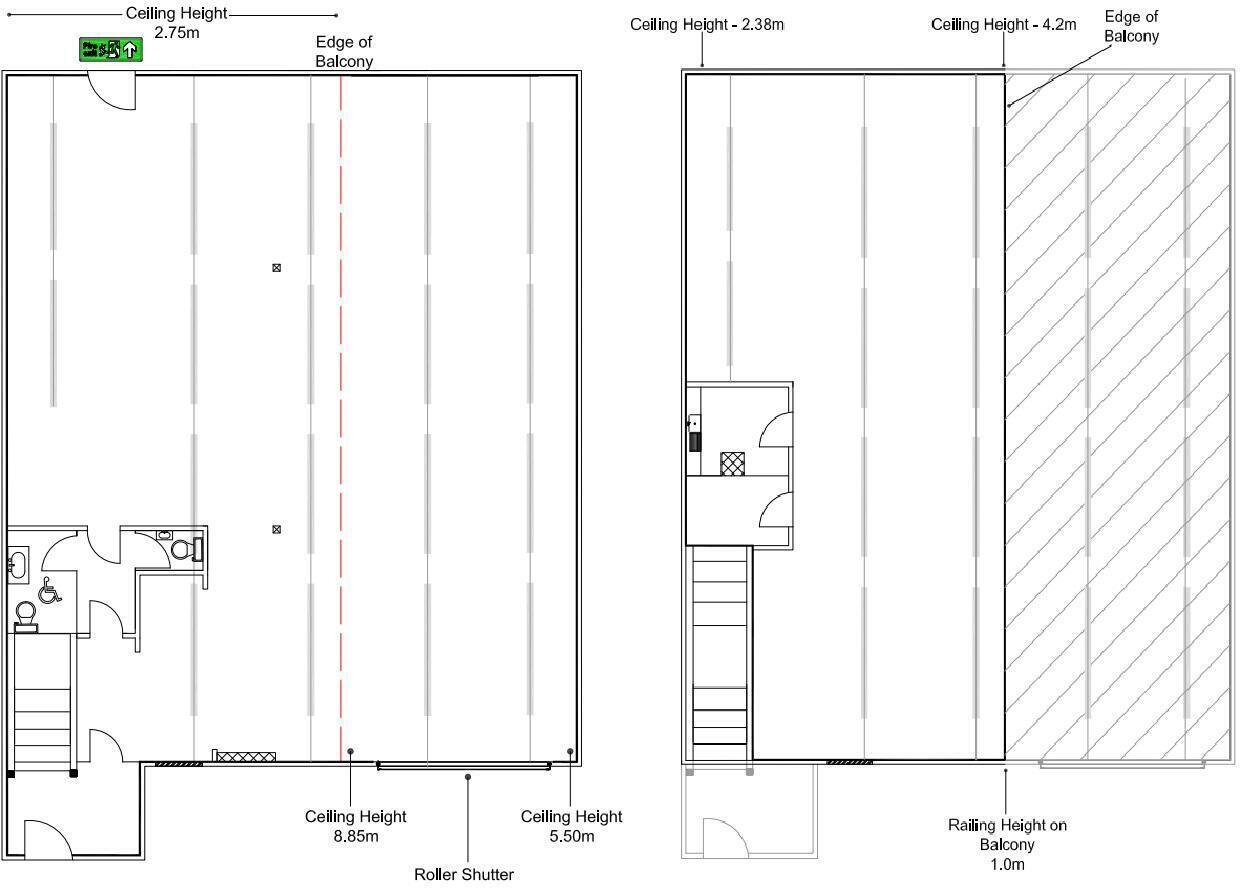
• Part Mezzanine Floor: Part mezzanine has a kitchen area with cupboards, base units, sink and hot water cylinder. Approx 15m x 7.4m, with ceiling height between 2.75m and 4.2m.
• Onsite Parking: This unit comes with 8 identified, allocated parking spaces.
• Utilities: Electric, water, drainage, phone lines and broadband connectivity (incoming tenant would be required to source their own service providers)
- Clear height
- Ask agent
- Yard depth
- Ask agent
- Let type
- Ask agent
- Let contract length
- Ask agent
- Rent obligation
- Fully repairing and insuring
- Status
- Available
- Service charge
- Ask agent
- Business rates
- £22,250
- Use class
- E
- Floors in building
- 2
An Energy Performance certificate helps you understand the current energy efficiency of a property.
Read more about EPC requirements- BREEAM rating
- Ask agent
- Environmental description
- Ask agent
Brochure
Whitfield Court, Honeywood Close, White Cliffs Business Park, Whitfield, Kent
Your search history
You have no recent searches
Disclaimer - Property reference Unit11. The information displayed about this property comprises a property advertisement. Rightmove.co.uk makes no warranty as to the accuracy or completeness of the advertisement or any linked or associated information, and Rightmove has no control over the content. This property advertisement does not constitute property particulars. The information is provided and maintained by Dover District Council, Dover. Please contact the selling agent or developer directly to obtain any information which may be available under the terms of The Energy Performance of Buildings (Certificates and Inspections) (England and Wales) Regulations 2007 or the Home Report if in relation to a residential property in Scotland.


