Lauder Lane, Roundswell, Devon
Size
5,191
Lease length
Ask agent
EPC
Ask agent
Parking
Ask agent
- Price per
- Primary use
- Warehouse
- Other use(s)
- Light industrial
Key features
- 3 Phase Electricity
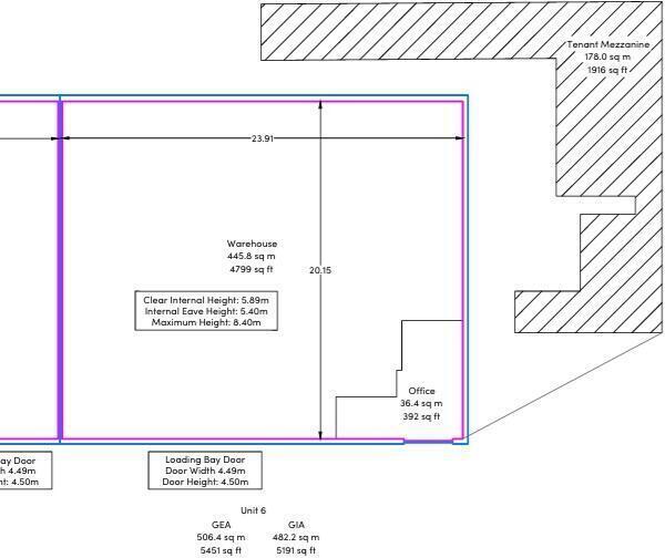
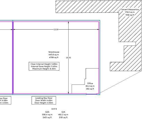
- 5.40m eaves rising to 8.40m at the apex
- Loading door of width (4.49m) and height (4.50m)
- Office accommodation
Description
With over 40,000 inhabitants including nearby villages, Barnstaple is a thriving town near to beautiful beaches and countryside, and the centre of North Devon in commerce, culture, education and service provision. It has a wide variety of businesses attracting tourists and permanent residents year-round, including a vibrant and diverse collection of bars and restaurants for evening footfall. Barnstaple is easily reached via the A361 which leads to the M5 at Junction 27, has a station with hourly trains to Exeter at peak times, and Exeter airport is an hour away. The town is rapidly expanding with several new housing and commercial developments currently underway, and more than 5,000 new houses and further economic development planned for the near future. The notable towns of Bideford (9 miles), Woolacombe (14 miles), Ilfracombe (12 miles), South Molton (12 miles) and Torrington (14 miles) are also nearby.
THE SITUATION
The property is situated within Lauder Lane, just off the A39 / A361 Link Road, on Roundswell Business Park. Nearby occupiers include Pochin, Euro Car Parts, Roundswell Toyota, McDonalds and Sainsburys.
DESCRIPTION
Unit 6 is an end-terrace unit of steel portal frame construction with profile clad / brick elevations beneath a single pitched roof arranged over ground and first floors. The unit is arranged as open plan warehouse with office accommodation and generous forecourt parking to the front of the building. The property benefits from 5.40m eaves rising to 8.40m at the apex and a loading door of width (4.49m) and height (4.50m).
THE ACCOMMODATION (comprises)
GROUND FLOOR
Compromising the following Gross Internal (GIA) Floor Areas:
Sq m Sq ft
Warehouse 445.8 4,799
Office 36.4 392
GIA 482.2 5,191
TERMS
The property is available by way of new commercial lease to be held on a full repairing and insuring basis.
EPC
The Energy Performance Certificate for the property is rated D with a score of 89.
BUSINESS RATES
We are verbally advised by the Local Rating Authority that the premises are currently assessed as follows:- Rateable Value (2026 Listing): £25,750 Rates Payable: £12,927 based on uniformed business rate of 50.2p in the pound. . Interested parties may qualify for reliefs and are advised to make their own enquiries of North Devon District Council.
LEGAL COSTS
Each party is to be responsible for their own legal costs incurred in the transaction.
VAT
VAT is applicable, at the prevailing rate.
VIEWING
Joint Sale Agents:-
JD Commercial, / , James Doble
Hector Pearce, , Katie Purrington
IMPORTANT NOTICE
JD Commercial for themselves, and for the Vendors of this property whose Agents they are, give notice that:
1. The Particulars are set out in general outline only for the guidance of intending purchasers and do not constitute part of an offer or contract. Prospective purchasers should seek their own professional advice.
2. All descriptions, dimensions and areas, references to condition and necessary permissions for use and occupation and other details are given in good faith and are believed to be correct, but any intending purchaser should not rely on them as statements or representations of fact and must satisfy themselves by inspection or otherwise as to the correctness of each of them.
3. No person in the employment of JD Commercial has any authority to make or give any representation or warranty whatever in relation to this property or these particulars nor to enter into any contract relating to the property on behalf of JD Commercial, nor into any contract on behalf of the Vendors.
4. No responsibility can be accepted for any expenses incurred by any intending purchaser in inspecting properties which have been sold, let or withdrawn.
PROPERTY MISDESCRIPTIONS ACT 1993
1. All measurements are approximate.
2. While we endeavour to make our sales particulars accurate and reliable, if there is any point which is of particular importance to you, please contact JD Commercial and we will be pleased to check the information for you, particularly if contemplating travelling some distance to view the property.
3. We do our utmost to comply with this Act in full. However we are also trying to represent our clients’ properties in their high possible light, as such we may use summer photographs to promote some properties.
VIEWING
By strict appointment through the selling Agents, JD Commercial, 42 Ridgeway Drive, Bideford, North Devon. EX39 1TW
- Clear height
- Ask agent
- Yard depth
- Ask agent
- Let type
- Ask agent
- Let contract length
- Ask agent
- Rent obligation
- Fully repairing and insuring
- Status
- Available
- Service charge
- Ask agent
- Business rates
- Ask agent
- Use class
- E
An Energy Performance certificate helps you understand the current energy efficiency of a property.
Read more about EPC requirementsAsk agent
- BREEAM rating
- Ask agent
- Environmental description
- Ask agent
Brochure
Lauder Lane, Roundswell, Devon
Having experience in Commercial Estate Agency since 1996, the company JD Commercial is headed up by James Doble who during his time in the Commercial market has established the importance of service in achieving successful results.
Whether it is the sale of a Leisure Property such as a Hotel or Tea Room to a private buyer, or the letting of a High Street Retail Unit to a plc, the importance of communication between all parties involved in the transaction is key. This is all brought together through JD Commercial. After all, once a purchaser is found this is often where the hard work begins.
Having the understanding that not only a purchaser's solicitor will be instructed at the point of sale, but often a Surveyor / Valuer, Bank Manager and Accountant means that we have the understanding of what is required from each party. Knowing exactly at what stage a transaction is means unnecessary costs and time delays can be avoided, as well as both vendor and purchaser experiencing a smooth transaction.
Being 100% dedicated to the Commercial Property market we do not split our time between Commercial and Residential property and as such all of our time and marketing is aimed at the Commercial sector. With our wealth of experience we have certainly noticed a change, over the years, of the ways and formats of achieving interest in property and can offer traditional or more contemporary solutions on how to market a property.
We deal with all types of Business Premises and Commercial Property throughout Devon, Cornwall and Somerset, of which they can generally be split into two sectors:- Hospitality Trade / Business Transfer and Commercial Business Property.
Hospitality Trade and Business Transfer:
Hotels / Guest Houses / Guest Accommodation and Bed & Breakfast
Public Houses / Inns, free of tie and tied
Self Catering Complexes / Camping and Caravan Sites
Catering Trade from Tea Rooms to Sandwich Bars
Business Transfer, lock up or with accommodation, such as Post Offices and Convenience Stores
Commercial Business Premises:
Retail Units
Industrial Premises
Office Accommodation
Investment Property
Development Land
Your search history
You have no recent searches
Disclaimer - Property reference 1361. The information displayed about this property comprises a property advertisement. Rightmove.co.uk makes no warranty as to the accuracy or completeness of the advertisement or any linked or associated information, and Rightmove has no control over the content. This property advertisement does not constitute property particulars. The information is provided and maintained by JD Commercial, Devon. Please contact the selling agent or developer directly to obtain any information which may be available under the terms of The Energy Performance of Buildings (Certificates and Inspections) (England and Wales) Regulations 2007 or the Home Report if in relation to a residential property in Scotland.



