The Wensleydale Spirit Co, Harmby Road Leyburn, North Yorkshire, DL8 5ET
Size
Ask agent
Tenure
Leasehold
EPC
Parking
Ask agent
- Primary use
- Pub
Key features
- Award-Winning Artisan Spirit Distillery
- Located in the Heart of the Yorkshire Dales
- Strong Brand Recognition & Online Sales
- Visitor Experience & Tasting Room
- Scope to Expand Distribution & Events
- Leasehold opportunity. Energy Rating C
- Annual rent: £12,000
- Christie & Co Ref: 5417058
Description
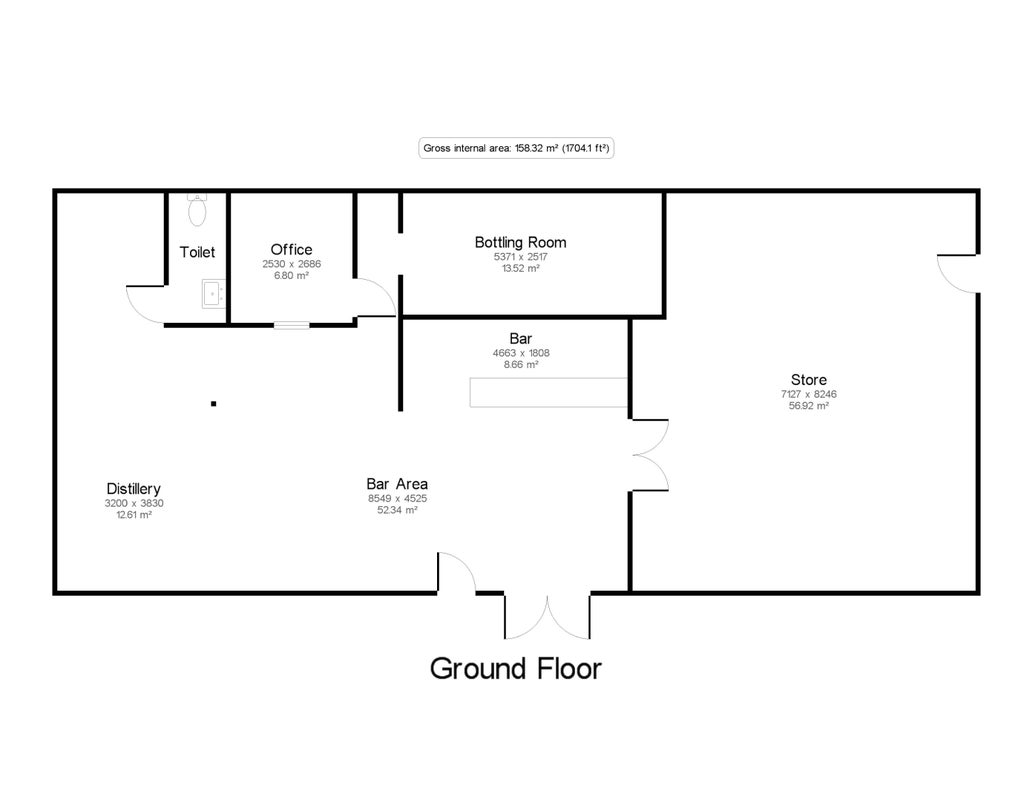
This is a fantastic opportunity to acquire a well-established distillery in the heart of the Yorkshire Dales. The Wensleydale Spirit Company operates from a well-presented premises, comprising a production area, retail space, and a fully licensed bar with tasting area.
The site is well-equipped for small-batch distillation and offers a welcoming environment for visitors.
The bar/ tasting room hosts regular events and private bookings, while the retail area showcases the full range of Wensleydale gins, rums, vodka and branded merchandise. The bar area enhances the customer experience, offering on-site sampling and social engagement.
The premises benefit from onsite customer parking, making it easily accessible for both locals and tourists. There is also scope to create additional outdoor seating space, which would further enhance the venue’s appeal during warmer months, and support expanded event offerings.
The business is well-positioned to benefit from the region’s strong tourism trade and has potential to expand into wider distribution, collaborations, and seasonal experiences.
The Wensleydale Spirit Company is located in the charming market town of Leyburn, on the edge of Yorkshire Dales National Park.
This picturesque region is renowned for its rolling hills, historic villages, and strong tourist footfall year-round. Leyburn is easily accessible via the A684 and is a popular base for visitors exploring nearby attractions such as Bolton Castle, Aysgarth Falls, and the Wensleydale Railway.
The town itself offers a vibrant mix of independent shops, cafés, and local events, making it an ideal setting for a destination-led business like a distillery.
The premises feature a fully equipped distillation area, complete with traditional copper stills and a dedicated bottling and labelling room, supporting the production of small-batch gin, rum and vodka. Visitors enter through glazed double doors into a stylish and welcoming bar area with seating for up to 40 guests ideal for hosted events, sampling experiences, and private bookings.
A fully licensed bar area enhances the customer experience, offering on-site sales and a relaxed environment for guests. The retail space is well laid out with display shelving and a point-of-sale system, allowing for seamless customer interaction and showcasing the full product range.
Additional areas include an office and storage space to support day-to-day operations. The interior is finished to a high standard, offering a clean and professional environment that supports efficient workflow and a positive visitor experience.
Fixtures and fittings, including distillation equipment, tasting room furniture, and retail displays, are not included in the sale. A full inventory can be made available for separate negotiation if required.
External DetailsThe property is a characterful stone-built unit with signage and customer access from the main street. There is also scope to create additional outdoor seating space, which would further enhance the venue’s appeal during warmer months, and support expanded event offerings. Parking is available nearby for visitors.
The OpportunityThis is a rare opportunity to acquire a thriving artisan gin distillery with a strong brand presence and loyal customer base. The Wensleydale Spirit Company has built a reputation for quality and innovation, producing small-batch gins, rums and vodka using premium botanicals and traditional copper stills.
The business benefits from multiple revenue streams including on-site retail, online sales, trade distribution, hosted tasting events, and a fully licensed bar area that enhances the visitor experience. A key feature of the business is its partnership with the Wensleydale Railway, hosting monthly train-themed tasting events that attract both locals and tourists, further boosting footfall and brand engagement.
With growing interest in craft spirits and experiential tourism, there is significant scope to expand both production and visitor engagement. Ideal for an entrepreneur or investor seeking a lifestyle business with growth potential in one of Yorkshire’s most scenic and well-visited regions.
The business is operated by the owners with support from part-time staff for events and retail. Staff structure can be discussed further upon enquiry.
Trading InformationTurnover and financial performance available upon request. The business has shown consistent growth, with strong margins and increasing online sales.
Trading HoursCurrently operating:
Tuesday to Saturday: 11.00am – 5.00pm
Friday: Occasionally open later for event nights featuring live music
Sunday & Monday: Closed (open for private bookings/events)
Offered on a leasehold basis. Full lease terms available on request. Stock at valuation at date of entry.
Business RatesRateable Value: TBC.
May qualify for Small Business Rate Relief subject to status. Interested parties should verify with the Local Authority.
The business holds all necessary licenses for alcohol production and retail. Further details available upon request.
- Service charge
- Ask agent
- Business rates
- Ask agent
- Use class
- Ask agent
- Listed building
- Ask agent
- Business for sale
- Yes
- Tenure
- Leasehold
- Length of lease
- Ask agent
An Energy Performance certificate helps you understand the current energy efficiency of a property.
Read more about EPC requirementsAsk agent
- BREEAM rating
- Ask agent
- Environmental description
- Ask agent
Brochure
The Wensleydale Spirit Co, Harmby Road Leyburn, North Yorkshire, DL8 5ET
We’re the leading specialist advisor for buying and selling businesses in our sectors - hotels, pubs, restaurants, childcare, healthcare, convenience retail, leisure and medical.
If you’re looking to buy or sell a business in our specialist sectors – from a pharmacy in Sussex to a hotel in Austria – our expert advice and collaborative support will help you achieve your goals. You may be an independent first-time buyer or a multinational adding to your portfolio; either way, you’ll discover that our personalised service is focused on helping you achieve your ambitions.
Clients have access to our carefully managed network of potential buyers. This unique database of contacts has been continually developed by our advanced IT capabilities and benefits from both our years of experience developing our network and our wide geographical coverage.
Where we work
We employ the largest team of sector specialists in the UK and the largest group of hotel specialists in Europe, providing professional brokerage and advisory services from offices in major cities across Britain and Europe. And because we’ve been doing this for over 80 years, we know our sectors and local markets inside out. We work closely with our clients to guide and conclude transactions of any size, covering hotels, restaurants and pubs, leisure, forecourts and convenience retail businesses, social care and elderly care, childcare & education facilities, dental practices and pharmacies.
Our professional services
We offer unrivalled insight, experience and expertise across your choice of services, including brokerage, consultancy, finance, development, investment, surveying, rent reviews, dispute resolution, corporate valuation, and turnaround & recovery. These services are all underpinned by our in-depth market intelligence and leading-edge technology. And we’re accredited by the Royal Institution of Chartered Surveyors (RICS), so you can trust in our professionalism.
What makes us tick
Businesses are about people, so relationships matter to us. We bring an integrity and transparency to business which can be all too rare – and that’s why people trust us. Our clients will attest to our genuine desire to help achieve their objectives, our attention to detail, and our tireless hard work on their behalf. We understand that buying a business can bring its own pressures and strains; needs can change, plans may need to be adjusted, and opportunities can come and go. But we’re always here, a constant, flexible and reliable force you can count on.
Our opening hours for all offices:
Mon – Fri, 9am – 5.30pm
Your search history
You have no recent searches
Disclaimer - Property reference 5417058-lh. The information displayed about this property comprises a property advertisement. Rightmove.co.uk makes no warranty as to the accuracy or completeness of the advertisement or any linked or associated information, and Rightmove has no control over the content. This property advertisement does not constitute property particulars. The information is provided and maintained by Christie Owen & Davies Ltd, Retail. Please contact the selling agent or developer directly to obtain any information which may be available under the terms of The Energy Performance of Buildings (Certificates and Inspections) (England and Wales) Regulations 2007 or the Home Report if in relation to a residential property in Scotland.














