Queens Road, Southend-on-sea
Size
Ask agent
Tenure
Freehold
EPC
Ask agent
Parking
Ask agent
- Primary use
- Bar or nightclub
Key features
- Excellent leisure space in a popular coastal city centre location with a population of approximately 187,000
- Situated within Southend’s main leisure circuit, surrounded by numerous national restaurant and bar operators
- Formerly late-night bar with valuable 2am late licence - partially fitted, benefiting from 22m frontage
- Offers potential for a variety of uses within a broad planning spectrum
- Includes upper floor, may be suitable for residential conversion (subject to obtaining the necessary consents)
Description
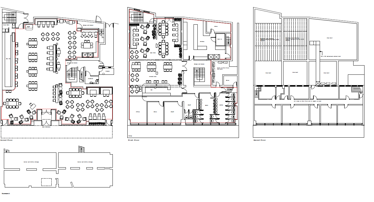
A large, mid-terraced, three-storey building above basement, dating from the mid-20th century, with an additional two-storey extension to the rear. There is a small, secure yard at the rear. The property benefits from an impressive frontage of approximately 22 metres.
Internally, the venue is partially fitted and styled as a contemporary bar with ancillary storage. Customer trading areas occupy the ground floor, featuring fitted seating throughout and a side bar servery. The first floor includes an additional bar and customer trading space, alongside a commercial kitchen, customer toilets, bottle store, and staff area. The basement is used for storage, while the second floor provides office space.
- Service charge
- Ask agent
- Business rates
- Ask agent
- Use class
- Sui Generis
- Listed building
- No
- Business for sale
- No
An Energy Performance certificate helps you understand the current energy efficiency of a property.
Read more about EPC requirementsAsk agent
- BREEAM rating
- Ask agent
- Environmental description
- Ask agent
Brochure
Queens Road, Southend-on-sea
AG&G operates at every level of the British licensed leisure industry, offering specialist expertise in both agency and professional work, involving pubs, bars, clubs, restaurants, hotels and any other type of licensed leisure outlet.
Your search history
You have no recent searches
Disclaimer - Property reference COUNF329. The information displayed about this property comprises a property advertisement. Rightmove.co.uk makes no warranty as to the accuracy or completeness of the advertisement or any linked or associated information, and Rightmove has no control over the content. This property advertisement does not constitute property particulars. The information is provided and maintained by A G & G LIMITED, London. Please contact the selling agent or developer directly to obtain any information which may be available under the terms of The Energy Performance of Buildings (Certificates and Inspections) (England and Wales) Regulations 2007 or the Home Report if in relation to a residential property in Scotland.


