The Conifers, Seal Square, Selsey, PO20 0HP
Size
Ask agent
Tenure
Freehold
EPC
Parking
Ask agent
- Primary use
- Healthcare
Key features
- Separate Staff Accommodation for 6
- Formerly Registered For 20
- Significant Development Potential (STPP)
- Coastal Location
- Near Local Amenities
- EPC C.
- Christie & Co Ref: 3878385
Description
The Conifers is a detached, former residential care home positioned within Seal Square in central Selsey, West Sussex. Formerly registered for 20 residents, the home ceased trading in March 2023. It is located within a residential area, close to the town’s amenities and the coast.
Accommodation within The Conifers is arranged to provide resident bedrooms with associated shared facilities and communal living/dining areas typical of a medium-sized care setting. The layout historically supported older adults, including those living with dementia or mental health conditions, within a domestic-style environment prior to closure.
Gull Rock, the adjoining six bedroom residential building, was used as staff accommodation. Together, the two buildings present an opportunity for complementary use or asset management strategies, subject to the necessary consents.
Externally, the property sits within a predominantly residential suburb in central Selsey, benefitting from proximity to local services, shops, healthcare, and community facilities, with the coastline and open spaces nearby.
Located in central Selsey, The Conifers sits within the quiet residential area of Seal Square, just moments from local shops and amenities. The town’s coastal setting provides easy access to beaches, coastal walks and open green spaces.
Selsey offers a good range of everyday facilities including supermarkets, cafés, restaurants and medical services, with further extensive amenities available in Chichester, around eight miles north. Chichester also provides major retail options, cultural attractions and direct rail links to London, Brighton and Portsmouth.
Road access is via the B2145, connecting Selsey to Chichester and the A27 for routes across the South Coast. Nearby coastal towns such as Pagham and Bognor Regis offer additional leisure opportunities.
This central Selsey position, combined with strong transport links and access to local and regional services, makes The Conifers a well located opportunity within this sought after area of West Sussex.
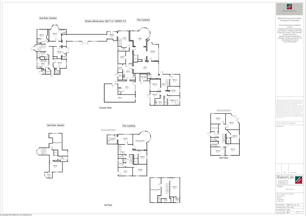
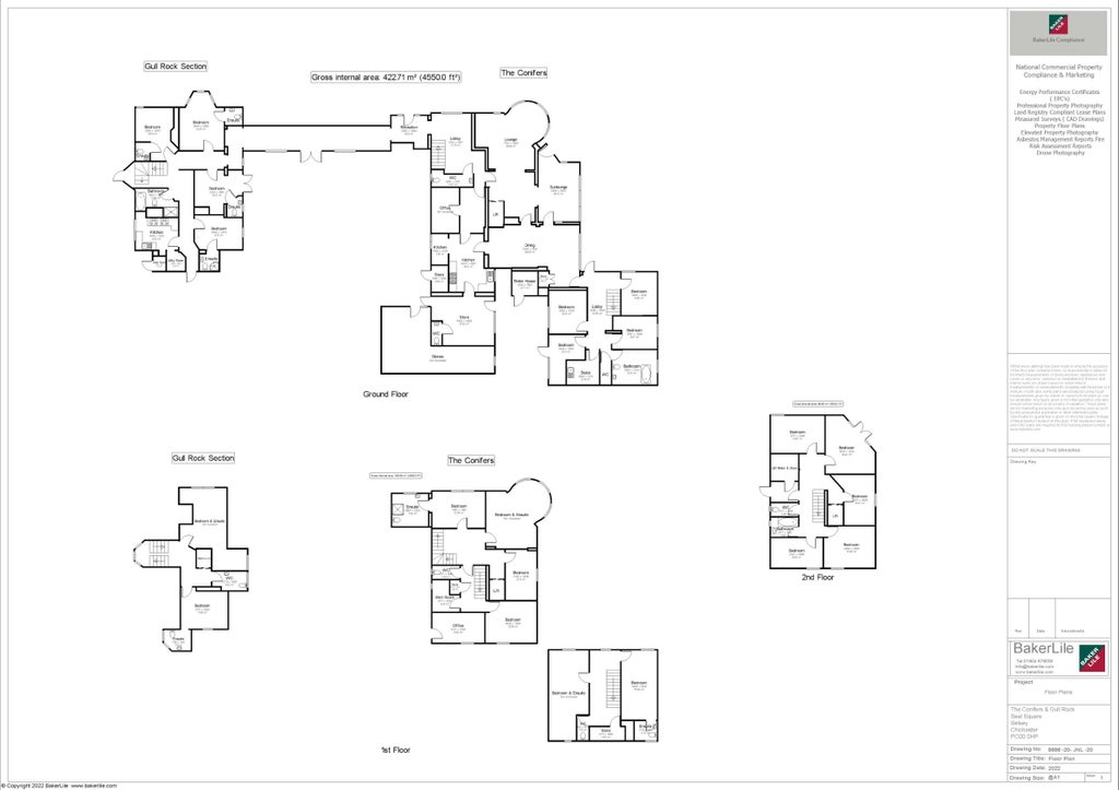
Ground Floor:
Entrance area, two lounges, dining room, kitchen, four bedrooms and supporting service areas.
Upper Floors:
A further 11 bedrooms, together with shared bathroom facilities and a staff office. A passenger lift serves the main floors of the building.
Gull Rock (Adjoining Building):
A separate six‑bedroom residential property, historically used as staff accommodation, providing additional ancillary space with potential for a range of future uses (subject to the necessary consents).
The Conifers benefits from a small car park to the front of the property, providing convenient access for visitors and staff. To the rear, the property features a substantial garden, offering outdoor space that was previously used by residents and has the potential to be enhanced for future use. The outdoor areas provide a mix of practical access and amenity space suitable for a range of operational or redevelopment purposes.
The OpportunityThe Conifers presents an opportunity for an elderly care or specialist care operator to acquire a closed 20 bed facility with the potential for refurbishment or re opening. The internal configuration, including multiple communal spaces and lift access, may support a range of residential or specialist care services following modernisation and regulatory approvals.
In addition, the adjoining six bed property, Gull Rock, provides further flexibility. Historically used as staff accommodation, it offers potential for reinstated staffing use, integration into a wider operational model, or alternative ancillary functions, subject to the necessary consents.
Alternatively, the combined site may lend itself to conversion for alternative care use, supported living, or residential redevelopment, subject to planning permission. The two linked buildings and generous external space provides scope for a variety of future uses depending on purchaser requirements.
- Service charge
- Ask agent
- Business rates
- Ask agent
- Use class
- Ask agent
- Listed building
- No
- Business for sale
- Yes
An Energy Performance certificate helps you understand the current energy efficiency of a property.
Read more about EPC requirementsAsk agent
- BREEAM rating
- Ask agent
- Environmental description
- Ask agent
Brochure
We’re the leading specialist advisor for buying and selling businesses in our sectors - hotels, pubs, restaurants, childcare, healthcare, convenience retail, leisure and medical.
If you’re looking to buy or sell a business in our specialist sectors – from a pharmacy in Sussex to a hotel in Austria – our expert advice and collaborative support will help you achieve your goals. You may be an independent first-time buyer or a multinational adding to your portfolio; either way, you’ll discover that our personalised service is focused on helping you achieve your ambitions.
Clients have access to our carefully managed network of potential buyers. This unique database of contacts has been continually developed by our advanced IT capabilities and benefits from both our years of experience developing our network and our wide geographical coverage.
Where we work
We employ the largest team of sector specialists in the UK and the largest group of hotel specialists in Europe, providing professional brokerage and advisory services from offices in major cities across Britain and Europe. And because we’ve been doing this for over 80 years, we know our sectors and local markets inside out. We work closely with our clients to guide and conclude transactions of any size, covering hotels, restaurants and pubs, leisure, forecourts and convenience retail businesses, social care and elderly care, childcare & education facilities, dental practices and pharmacies.
Our professional services
We offer unrivalled insight, experience and expertise across your choice of services, including brokerage, consultancy, finance, development, investment, surveying, rent reviews, dispute resolution, corporate valuation, and turnaround & recovery. These services are all underpinned by our in-depth market intelligence and leading-edge technology. And we’re accredited by the Royal Institution of Chartered Surveyors (RICS), so you can trust in our professionalism.
What makes us tick
Businesses are about people, so relationships matter to us. We bring an integrity and transparency to business which can be all too rare – and that’s why people trust us. Our clients will attest to our genuine desire to help achieve their objectives, our attention to detail, and our tireless hard work on their behalf. We understand that buying a business can bring its own pressures and strains; needs can change, plans may need to be adjusted, and opportunities can come and go. But we’re always here, a constant, flexible and reliable force you can count on.
Our opening hours for all offices:
Mon – Fri, 9am – 5.30pm
Your search history
You have no recent searches
Disclaimer - Property reference 3878385-fh. The information displayed about this property comprises a property advertisement. Rightmove.co.uk makes no warranty as to the accuracy or completeness of the advertisement or any linked or associated information, and Rightmove has no control over the content. This property advertisement does not constitute property particulars. The information is provided and maintained by Christie Owen & Davies Ltd, Care. Please contact the selling agent or developer directly to obtain any information which may be available under the terms of The Energy Performance of Buildings (Certificates and Inspections) (England and Wales) Regulations 2007 or the Home Report if in relation to a residential property in Scotland.
























