Caravan Tech Services, London Road Hurst Green, Etchingham, East Sussex, TN19 7PN
Size
Ask agent
Tenure
Freehold
EPC
Parking
Ask agent
- Primary use
- Out of town retail
- Frontage
- Ask agent
Key features
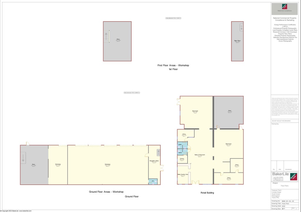
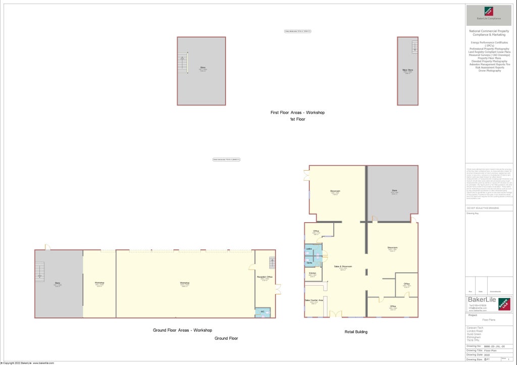
- Generous 1.25 acre site
- Gross internal area 846.72 m2
- Prominent roadside location
- Potential development opportunity (STPP)
- Available with full vacant possession
- Village location with good transport links
- Christie & Co Ref: 3890013
Description
Christie & Co are pleased to bring to market Caravan Tech Services, an industrial site with retail and workshop space located along London Road, Etchingham, East Sussex.
The site is currently used for the purpose of selling new and used caravans, motorhomes and campervans, and consists of a ground and first floor workshop, large retail building and generous hardstanding external space.
This 1.25 acre site offers ample opportunity to be reconfigured for a number of alternative uses and is available with full vacant possession.
Caravan Tech Services is located on the A229 which is just off the main A21 London Road which links the East Sussex coast to London.
It is located around 14 miles South East of Royal Tunbridge Wells close to the East Sussex / Kent border on the outskirts of the village of Hurst Green and Hawkhurst within the High Weald Area of Outstanding Natural Beauty.
According to the latest census data over 492,000 people live within a 25 km radius of the site. Etchingham is part of Rother District, which has been formally identified as having significant need of affordable housing. Further information can be found in the Rother Local Plan (2020–2040)
The property is being sold with vacant possession.
Business RatesAccording to the valuation office the rateable value is £92,000 for the year effective 1st April 2026.
- Service charge
- Ask agent
- Business rates
- Ask agent
- Use class
- Ask agent
- Listed building
- Ask agent
- Business for sale
- Yes
An Energy Performance certificate helps you understand the current energy efficiency of a property.
Read more about EPC requirementsAsk agent
- BREEAM rating
- Ask agent
- Environmental description
- Ask agent
Brochure
Caravan Tech Services, London Road Hurst Green, Etchingham, East Sussex, TN19 7PN
We’re the leading specialist advisor for buying and selling businesses in our sectors - hotels, pubs, restaurants, childcare, healthcare, convenience retail, leisure and medical.
If you’re looking to buy or sell a business in our specialist sectors – from a pharmacy in Sussex to a hotel in Austria – our expert advice and collaborative support will help you achieve your goals. You may be an independent first-time buyer or a multinational adding to your portfolio; either way, you’ll discover that our personalised service is focused on helping you achieve your ambitions.
Clients have access to our carefully managed network of potential buyers. This unique database of contacts has been continually developed by our advanced IT capabilities and benefits from both our years of experience developing our network and our wide geographical coverage.
Where we work
We employ the largest team of sector specialists in the UK and the largest group of hotel specialists in Europe, providing professional brokerage and advisory services from offices in major cities across Britain and Europe. And because we’ve been doing this for over 80 years, we know our sectors and local markets inside out. We work closely with our clients to guide and conclude transactions of any size, covering hotels, restaurants and pubs, leisure, forecourts and convenience retail businesses, social care and elderly care, childcare & education facilities, dental practices and pharmacies.
Our professional services
We offer unrivalled insight, experience and expertise across your choice of services, including brokerage, consultancy, finance, development, investment, surveying, rent reviews, dispute resolution, corporate valuation, and turnaround & recovery. These services are all underpinned by our in-depth market intelligence and leading-edge technology. And we’re accredited by the Royal Institution of Chartered Surveyors (RICS), so you can trust in our professionalism.
What makes us tick
Businesses are about people, so relationships matter to us. We bring an integrity and transparency to business which can be all too rare – and that’s why people trust us. Our clients will attest to our genuine desire to help achieve their objectives, our attention to detail, and our tireless hard work on their behalf. We understand that buying a business can bring its own pressures and strains; needs can change, plans may need to be adjusted, and opportunities can come and go. But we’re always here, a constant, flexible and reliable force you can count on.
Our opening hours for all offices:
Mon – Fri, 9am – 5.30pm
Your search history
You have no recent searches
Disclaimer - Property reference 3890013-fh. The information displayed about this property comprises a property advertisement. Rightmove.co.uk makes no warranty as to the accuracy or completeness of the advertisement or any linked or associated information, and Rightmove has no control over the content. This property advertisement does not constitute property particulars. The information is provided and maintained by Christie Owen & Davies Ltd, Retail. Please contact the selling agent or developer directly to obtain any information which may be available under the terms of The Energy Performance of Buildings (Certificates and Inspections) (England and Wales) Regulations 2007 or the Home Report if in relation to a residential property in Scotland.















