Unit 8D Newby Road Industrial Estate, Newby Road, Hazel Grove, Stockport SK7 5DA
Size
9,597
Lease length
Ask agent
EPC
Ask agent
Parking
Ask agent
- Price per
- Primary use
- Light industrial
- Other use(s)
- Trade counter
Building amenities
Additional costs may apply for some services – please check the full property description for more details.
- Parking
Key features
- Industrial Unit/Trade Counter with offices
- Located on a well established Business Park
- Yard to the front providing car parking and loading/unloading facility
- Open plan unit with roller shutter access
- Three phase electricity, LED lighting, alarm and security roller shutters
Description
From the centre of Stockport, travel towards Hazel Grove along the main A6 Wellington Road South later becoming Buxton Road. After approx 2 miles, passing through the traffic light junction at Stepping Hill, turn right at the next set of traffic lights onto Moor Lane and continue turning left at the roundabout onto Newby Road Industrial Estate. After a short distance, Delta Power Services is located on the right.
Description
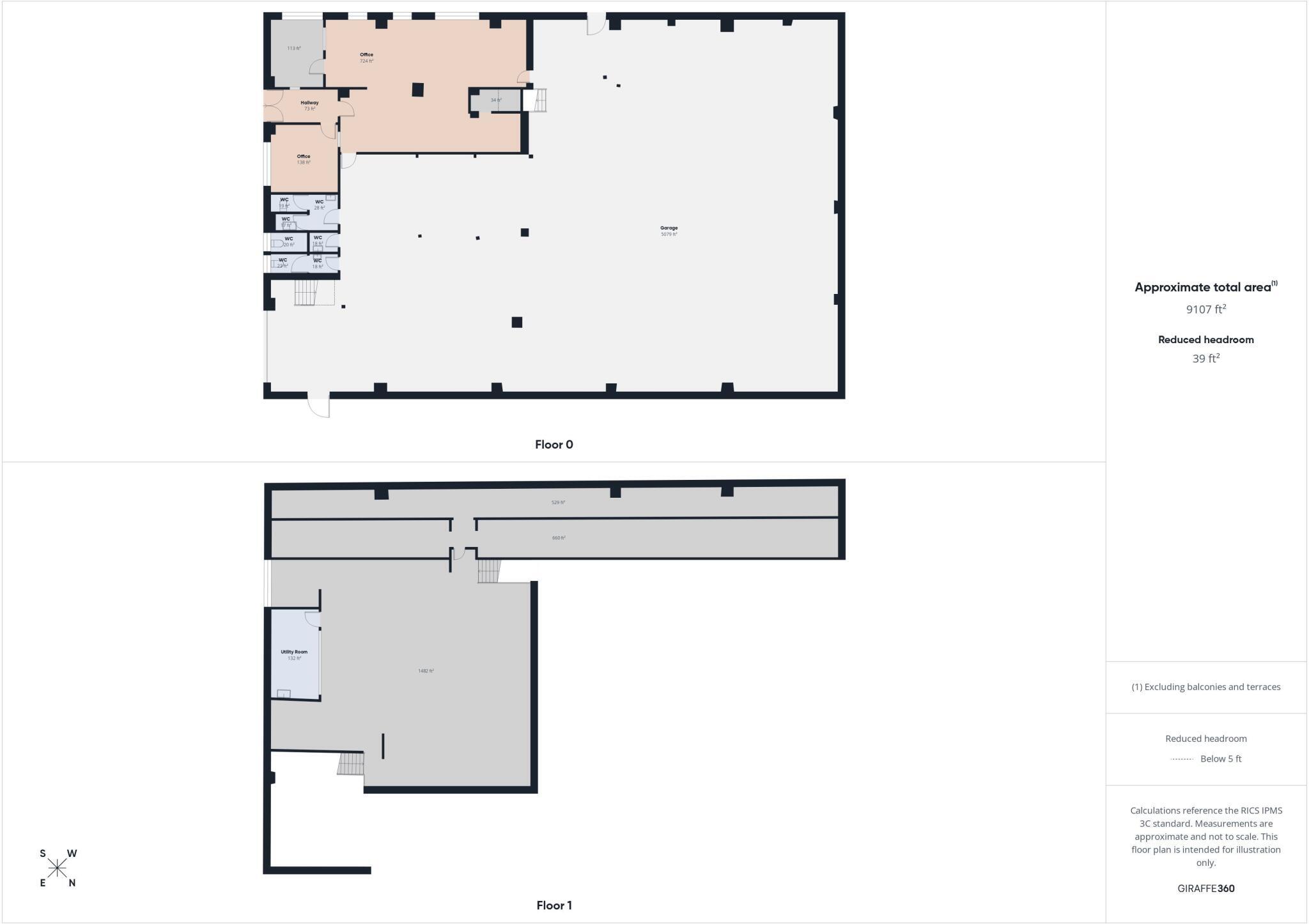
The property comprises of an open plan industrial unit with roller shutter access (3.6m x 3.8m) and mezzanine including a ground floor open plan office with a single MD office. The ground floor warehouse is mostly open plan with good headroom with an eaves height of 4.7m and apex of 7.3m. There are two WC’s and kitchen facilities. In addition, there are stairs leading to the mezzanine floor providing further storage space. The property has three phase electric and includes LED lighting, an alarm and security roller shutters. There is a yard at the front of the property for loading and unloading and car parking.
Property Details
Accommodation
Ground Floor
Warehouse 5,819 sq ft
First Floor Mezzanine 2,716 sq ft
Ground floor Office 1,062 sq ft
Total 9,597 sq ft
Rent
£60,000 per annum exclusive
Rateable Value
We believe the property has a rateable value of £40,000. Business rates will be approx £20,000 per annum.
Services
Electric, gas, water and waste.
EPC Rating B
- Clear height
- Ask agent
- Yard depth
- Ask agent
- Let type
- Ask agent
- Let contract length
- Ask agent
- Status
- Available
- Service charge
- Ask agent
- Business rates
- Ask agent
- Use class
- Ask agent
An Energy Performance certificate helps you understand the current energy efficiency of a property.
Read more about EPC requirementsAsk agent
- BREEAM rating
- Ask agent
- Environmental description
- Ask agent
Brochure
Unit 8D Newby Road Industrial Estate, Newby Road, Hazel Grove, Stockport SK7 5DA
Your search history
You have no recent searches
Disclaimer - Property reference Newby8D. The information displayed about this property comprises a property advertisement. Rightmove.co.uk makes no warranty as to the accuracy or completeness of the advertisement or any linked or associated information, and Rightmove has no control over the content. This property advertisement does not constitute property particulars. The information is provided and maintained by Impey & Company Limited, Stockport. Please contact the selling agent or developer directly to obtain any information which may be available under the terms of The Energy Performance of Buildings (Certificates and Inspections) (England and Wales) Regulations 2007 or the Home Report if in relation to a residential property in Scotland.






