Bickerton House, Bickerton Road, Islington, London
Size
100 - 25,000
Lease length
1year
EPC
Ask agent
Parking
Ask agent
Spaces
3

- Size
- Price
- Price per
- Primary use
- Mixed use
Key features
- 12 month licence agreement inclusive of service charge
- On street car-parking directly outside
- Suitable for Office for up to 10 desks
- Visitor Reception
- Roof Terrace with stunning views across London
- Excellent natural light & high ceilings
- Suitable for group therapy including Pilates/Yoga
- Showers and changing facilities
- Incoming mail and packages sorted and delivered daily
- Secure Cycle Bay
Description
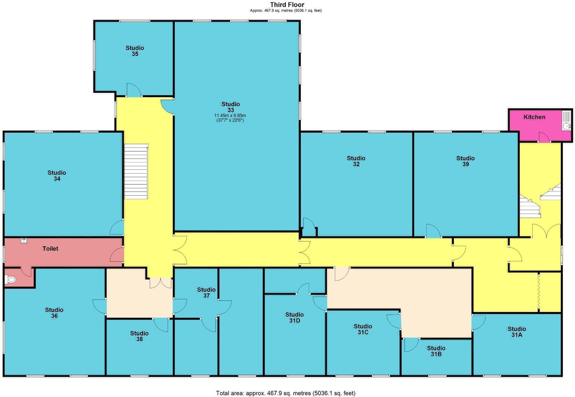
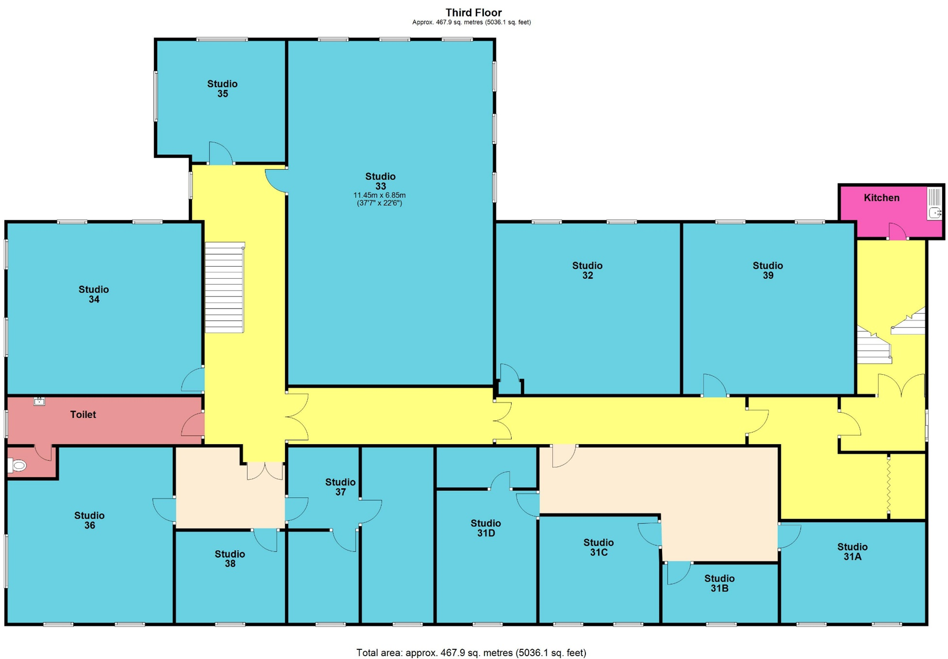
Studio 33
This spacious studio on the third floor offers approximately 900 sq ft (83.6 sq m) of beautifully lit space with high ceilings and abundant natural daylight - perfect for creatives, wellness practitioners or any small business looking for an inspiring workplace.
As part of a vibrant community, occupiers enjoy access to standout amenities: a rooftop garden with panoramic views, cosy tea rooms, communal lounges, and showers-perfect for balancing productivity with relaxation. The building itself is steeped in Victorian character and sits within the tranquil St John's Conservation Area.
The location is equally appealing: just a short stroll from Swain's Lane's indie cafés and bakeries, and close to Highgate Village, Hampstead Heath, and Camden Town. Archway Underground Station (Northern Line, Zone 2) is under 10 minutes away, with frequent buses to the West End and City. Plus, pay-by-phone parking bays are right outside.
Whether you're a photographer, designer, therapist, or entrepreneur, Bickerton House offers a flexible, character-rich space to thrive.
Additional information
- Let type
- Flexible
- Let contract length
- 12 months
- Status
- Available
- Date available
- 25 February 2026
- Service charge
- Ask agent
- Business rates
- Ask agent

- Size
- Price
- Price per
- Primary use
- Mixed use
Key features
- Dedicated waiting area
- Storage space
- High ceilings
- Third Floor Views
- Natural Light
- Visitors reception
- Showers and changing facilities
- Incoming mail and packages sorted and delivered daily
- Secure Cycle Bay
- Roof Terrace with stunning views across London
Description
At 200 sq ft (18.5 sq m), Studio 31D provides a calm and professional setting ideal for writers, therapists or small teams.
With natural lighting, a storage cupboard and a dedicated client waiting area, this space offers a tranquil environment suitable for a variety of professional and creative uses. Beautiful views surround this third floor studio, and ample natural light floods in through the large window.
Join the growing community of big-thinkers at Archway Studios and enjoy access to shared break rooms and a peaceful rooftop garden with panoramic views of the city. Located only a few minutes walk from the station, Archway Studios is convenient and connected.
Additional information
- Let type
- Flexible
- Let contract length
- 12 months
- Status
- Available
- Date available
- 25 February 2026
- Service charge
- Ask agent
- Business rates
- Ask agent

- Size
- Price
- Price per
- Primary use
- Mixed use
Key features
- Large Windows
- High Ceilings
- Third Floor Views
- Spacious Layout
- Natural Light
- Visitors Reception
- Shared Break Room
- Panoramic Roof Terrace
- Good Transport Links
- Cycle Bay and Showers
Description
Studio 32
A well-proportioned and light-filled creative studio set within an attractive victorian building, offering an ideal workspace for artists, designers, makers or small creative businesses.
The studio benefits from two large windows that flood the space with natural light while providing pleasant open views. Practical elements such as multiple power points and overhead strip lighting make the space functional for day-to-day studio work.
The layout is open-plan and flexible, allowing for easy configuration of workstations, office space or storage. The property would suit a range of creative or professional uses.
A bright, characterful and adaptable studio space in a well-maintained building — ideal for those seeking an inspiring and practical working environment.
Additional information
- Let type
- Flexible
- Let contract length
- 12 months
- Status
- Available
- Date available
- 04 March 2026
- Service charge
- Ask agent
- Business rates
- Ask agent
Building amenities
Additional costs may apply for some services – please check the full property description for more details.
- Parking
- Transport links
- Well connected
- Central heating
- Natural light
- Communal areas
- Flexible tenancies
- Professional management
- Services included
- Common parts wc facilities
- Storage space
- Kitchen
- Bike storage
- Outdoor seating
- Roof terrace
- Shower facilities
- Controlled access
- Property manager on site
- Reception
Key features
- Victorian Building
- Creative Studios, Offices and Workspaces
- CCTV surveillance and robust security
- Rooftop terrace with sweeping views of Central London
- Fully equipped meeting and conference rooms
- Gas central heating throughout
- Showers and changing facilities
- Secure bicycle bay
- Mail and package handling with daily deliveries
- Goods lift and loading bay access
Description
We are dedicated to crafting premium; thoughtfully designed workspaces paired with a level of service that goes beyond expectation. With a wealth of experience behind us, our passionate team delivers an exceptional, inspiring environment tailored to support creativity, productivity and long-term partnerships.
As part of a vibrant community, occupiers enjoy access to standout amenities: a rooftop garden with panoramic views, cosy tea rooms, communal lounges, and showers-perfect for balancing productivity with relaxation. The building itself is steeped in Victorian character and sits within the tranquil St John's Conservation Area.
The location is equally appealing: just a short stroll from Swain's Lane's indie cafés and bakeries, and close to Highgate Village, Hampstead Heath, and Camden Town. Archway Underground Station (Northern Line, Zone 2) is under 10 minutes away, with frequent buses to the West End and City. Plus, pay-by-phone parking bays are right outside.
Whether you're a photographer, designer, therapist, or entrepreneur, Bickerton House offers a flexible, character-rich space to thrive.
- Let type
- Flexible
- Let contract length
- 12 months
- Status
- Available
- Date available
- 11 February 2026
- Service charge
- Ask agent
- Business rates
- Ask agent
- Use class
- Ask agent
- Year built
- 1889
- Floors in building
- 4
An Energy Performance certificate helps you understand the current energy efficiency of a property.
Read more about EPC requirementsAsk agent
- BREEAM rating
- Ask agent
- Environmental description
- Ask agent
Brochure
Bickerton House, Bickerton Road, Islington, London
Archway Studios is a local firm based in Dartmouth Park and has been managing flexible workspace in the area for over 30 years. A family-run, independent company which prides itself on providing clean, simple and great value offices and workshops to local people and businesses. Our traditional family values underpin everything we do.
www.archwaystudios.co.uk
Your search history
You have no recent searches
Disclaimer - Property reference Bickerton. The information displayed about this property comprises a property advertisement. Rightmove.co.uk makes no warranty as to the accuracy or completeness of the advertisement or any linked or associated information, and Rightmove has no control over the content. This property advertisement does not constitute property particulars. The information is provided and maintained by Archway Studios, London. Please contact the selling agent or developer directly to obtain any information which may be available under the terms of The Energy Performance of Buildings (Certificates and Inspections) (England and Wales) Regulations 2007 or the Home Report if in relation to a residential property in Scotland.




























