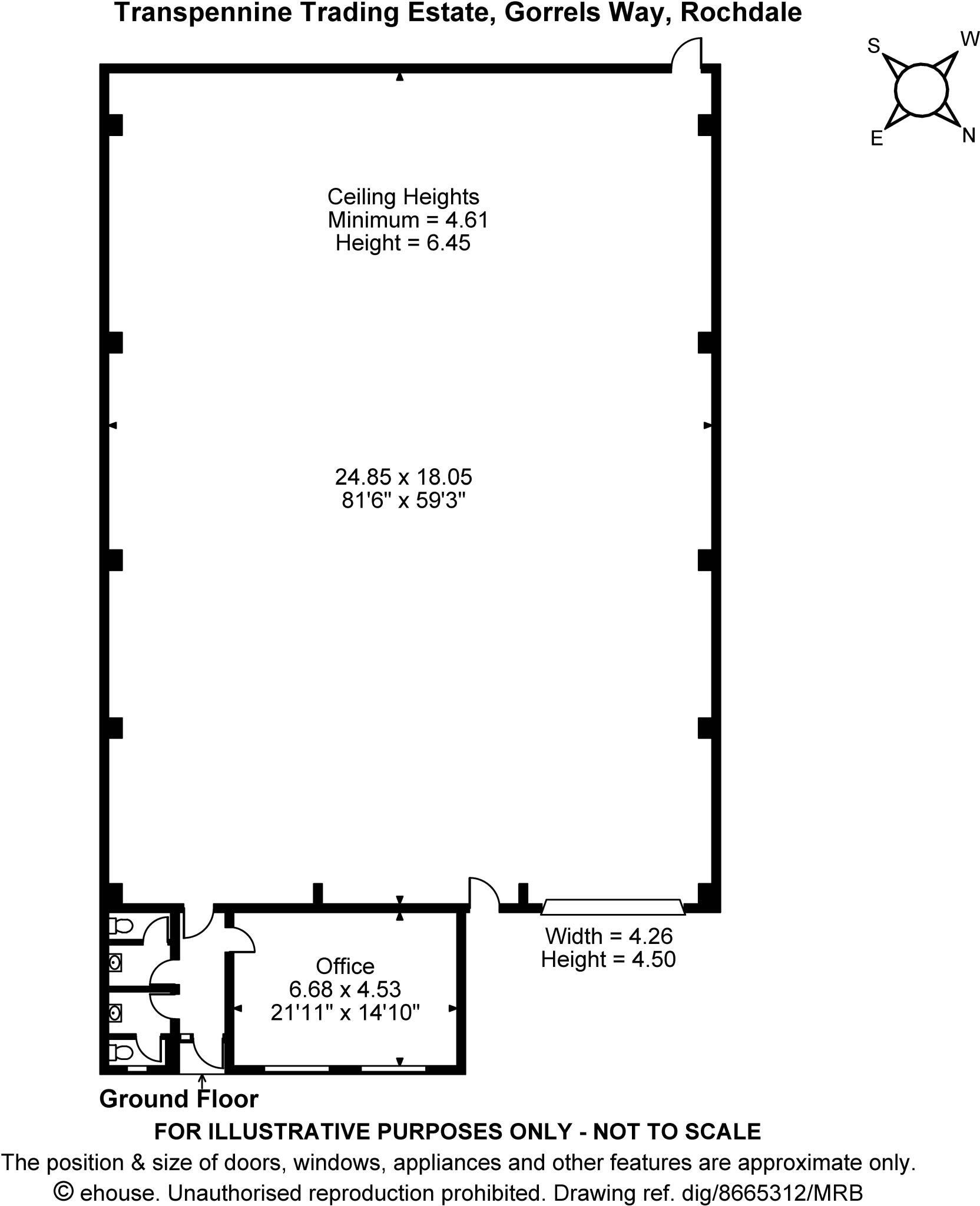
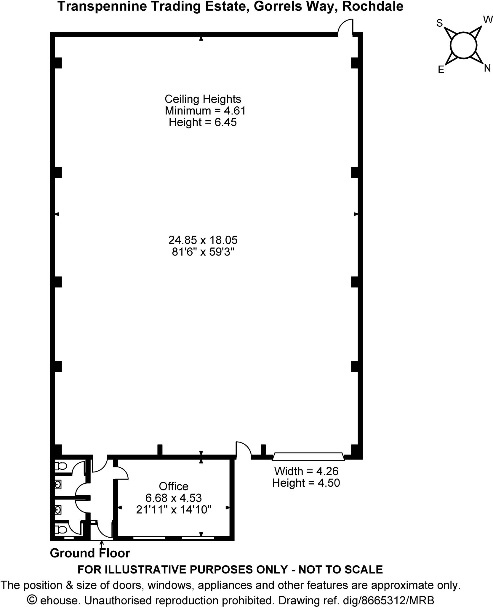
Unit 5C - Transpennine Trading Estate, Gorrels Way
Size
Ask agent
Lease length
Ask agent
EPC
Ask agent
Parking
Ask agent
- Price per
- Ask agent
- Primary use
- Light industrial
Key features
- Car Parking
- Electric Roller Shutter Door
- Office Accommodation
- Premier Industrial Location
- Refurbished Unit
Description
The unit is currently undergoing an extensive refurbishment to include a profile steel roof, LED lighting and internal re-decoration.
Ideally positioned adjacent to the A627(M), the estate benefits from excellent transport links via the M62, M60, and M66, making it a prime location for industrial and distribution businesses. This well-maintained and strategically located unit is perfect for companies seeking efficient access to key motorway networks in the North West.
- Clear height
- Ask agent
- Yard depth
- Ask agent
- Let type
- Ask agent
- Let contract length
- Ask agent
- Status
- Available
- Service charge
- Ask agent
- Business rates
- Ask agent
- Use class
- Ask agent
An Energy Performance certificate helps you understand the current energy efficiency of a property.
Read more about EPC requirementsAsk agent
- BREEAM rating
- Ask agent
- Environmental description
- Ask agent
Unit 5C - Transpennine Trading Estate, Gorrels Way
Indurent is a leading developer and manager of industrial and logistics spaces across the UK, with a large portfolio.
We provide a wide range of industrial units and estates that drive economic growth by bringing jobs and investment to local communities. Our expertise and resources empower businesses of all sizes to thrive, and we take pride in playing a role in their success.
We understand that each business has unique operational needs, and we are dedicated to providing tailored solutions that enable growth across the UK. Whether it’s small start-ups or multinational companies, we have the space and the in-house expertise to support our customers’ success, no matter the scale of their operations.
Your search history
You have no recent searches
Disclaimer - Property reference Unit5C. The information displayed about this property comprises a property advertisement. Rightmove.co.uk makes no warranty as to the accuracy or completeness of the advertisement or any linked or associated information, and Rightmove has no control over the content. This property advertisement does not constitute property particulars. The information is provided and maintained by Indurent, London. Please contact the selling agent or developer directly to obtain any information which may be available under the terms of The Energy Performance of Buildings (Certificates and Inspections) (England and Wales) Regulations 2007 or the Home Report if in relation to a residential property in Scotland.











