Unit 5A/B - Transpennine Trading Estate, Gorrels Way,
Size
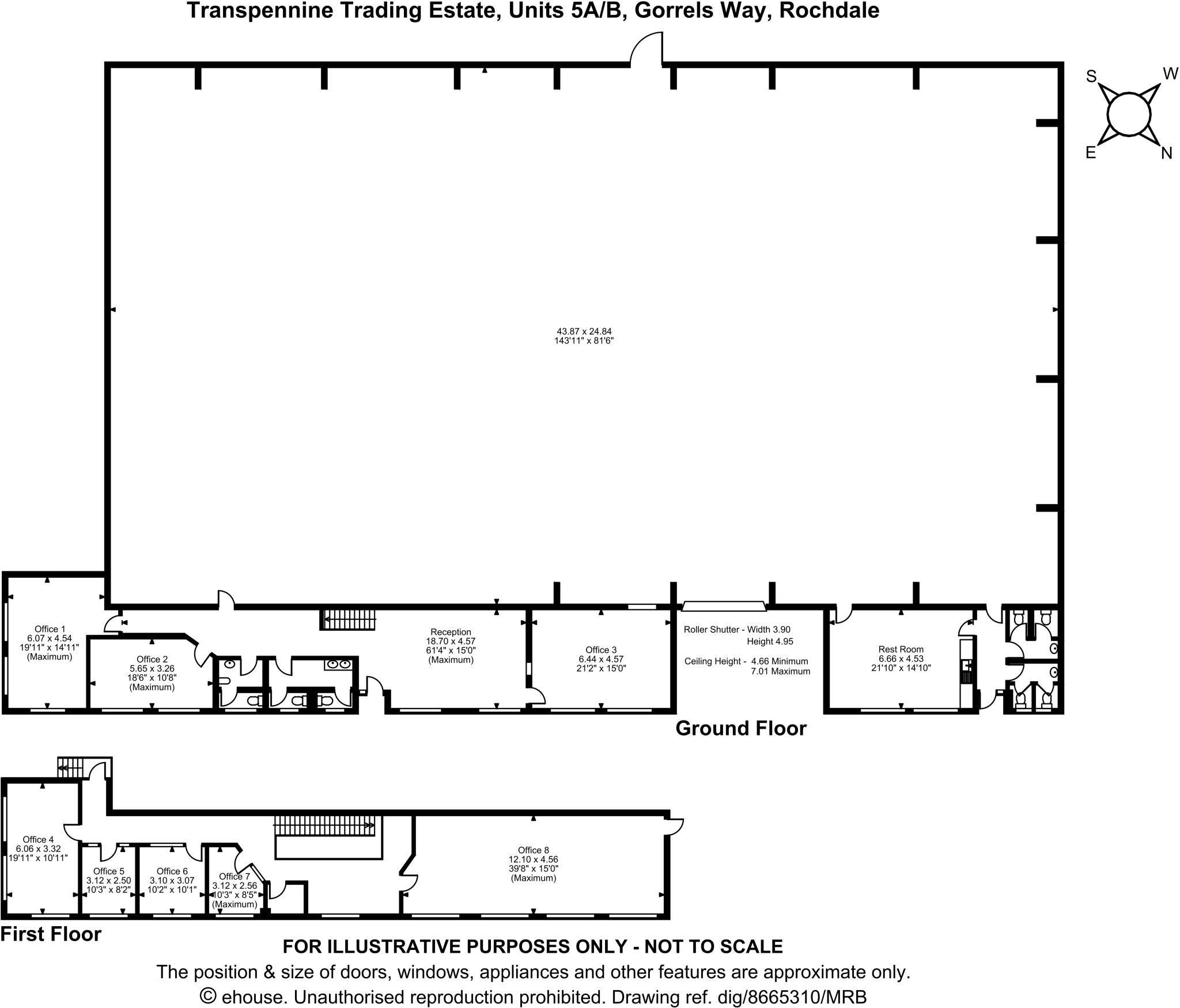
15,786
Lease length
Ask agent
EPC
Ask agent
Parking
Ask agent
- Price per
- Primary use
- Light industrial
Building amenities
Additional costs may apply for some services – please check the full property description for more details.
- Natural light
Key features
- 24 Hour Access
- Electric Roller Shutter Door
- Office Accommodation
- Roof Lights
- WC Facilities
- Yard Space
- Roadside Location
Description
Shared access to a secure yard to include car parking is available with three separate access gates.
The unit has recently undergone major refurbishment to include a new profile steel roof, internal redecoration to the warehouse and office space, LED lighting and external decoration to the offices.
- Clear height
- Ask agent
- Yard depth
- Ask agent
- Let type
- Ask agent
- Let contract length
- Ask agent
- Status
- Available
- Service charge
- Ask agent
- Business rates
- Ask agent
- Use class
- Ask agent
An Energy Performance certificate helps you understand the current energy efficiency of a property.
Read more about EPC requirementsAsk agent
- BREEAM rating
- Ask agent
- Environmental description
- Ask agent
Brochure
Unit 5A/B - Transpennine Trading Estate, Gorrels Way,
Indurent is a leading developer and manager of industrial and logistics spaces across the UK, with a large portfolio.
We provide a wide range of industrial units and estates that drive economic growth by bringing jobs and investment to local communities. Our expertise and resources empower businesses of all sizes to thrive, and we take pride in playing a role in their success.
We understand that each business has unique operational needs, and we are dedicated to providing tailored solutions that enable growth across the UK. Whether it’s small start-ups or multinational companies, we have the space and the in-house expertise to support our customers’ success, no matter the scale of their operations.
Your search history
You have no recent searches
Disclaimer - Property reference Unit5abTrans. The information displayed about this property comprises a property advertisement. Rightmove.co.uk makes no warranty as to the accuracy or completeness of the advertisement or any linked or associated information, and Rightmove has no control over the content. This property advertisement does not constitute property particulars. The information is provided and maintained by Indurent, London. Please contact the selling agent or developer directly to obtain any information which may be available under the terms of The Energy Performance of Buildings (Certificates and Inspections) (England and Wales) Regulations 2007 or the Home Report if in relation to a residential property in Scotland.












