Old Hall Street, Liverpool, Merseyside, L3
- SIZE AVAILABLE
580-840 sq ft
54-78 sq m
- SECTOR
Office to lease
- USE CLASSUse class orders: B1 Business and Class E
B1, E
Lease details
- Lease available date:
- Ask agent
- Furnish type:
- Unfurnished
Key features
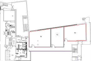
- Three brand new suites available: 1B 840 sq ft, 1C 580 sq ft, 1 D 785 sq ft
- All inclusive rents (excluding VAT, Business Rates & telephone / internet)
- Shared Kitchen & WC facilities on each floor
- 2 high speed passenger lifts
- Directly opposite Moorfields station in the commercial district.
- Refurbished and reconfigured reception - with concierge
- Welcoming DDA reception area, meeting rooms & shower facilities
- Secure parking in the basement
- 24/7 access
Description
Excellent transport links being directly opposite Moorfields station entrance on Old Hall Street.
Home to some of the best known businesses in Liverpool, including The Liverpool Chamber of Commerce, Out to Lunch and Pret-a-Manger.
Flexi let-Office suites are designed for short term occupancy to help your business grow, with minimum terms of one year available.
The ground floor has a bright, welcoming reception, with concierge and shared shower facilities.
Rents are all inclusive! (other than VAT, business rates and telephone / internet).
Contemporary office suites for rent overlooking Old Hall Street and Chapel Street.
Suites benefit from comfort cooling, their own dedicated entrance and the use of a shared kitchen and WC facilities.
Suites can be merged with adjacent suites to provide additional space.
Brochures
Old Hall Street, Liverpool, Merseyside, L3
NEAREST STATIONS
Distances are straight line measurements from the centre of the postcode- Moorfields Station0.2 miles
- James Street Station0.2 miles
- Liverpool Central Station0.6 miles
Notes
Disclaimer - Property reference No1OHSFlexi. The information displayed about this property comprises a property advertisement. Rightmove.co.uk makes no warranty as to the accuracy or completeness of the advertisement or any linked or associated information, and Rightmove has no control over the content. This property advertisement does not constitute property particulars. The information is provided and maintained by CBRE LTD, Liverpool. Please contact the selling agent or developer directly to obtain any information which may be available under the terms of The Energy Performance of Buildings (Certificates and Inspections) (England and Wales) Regulations 2007 or the Home Report if in relation to a residential property in Scotland.
Map data ©OpenStreetMap contributors.





