Court Farm Barns, Medcroft Road, Tackley, Oxfordshire
Size
795 - 3,199
Lease length
Ask agent
EPC
Parking
30
Spaces
4

- Size
- Price
- Price per
- Primary use
- Traditional office
- Other use(s)
- Other leisure
- Condition
- Partial fit out
- Capacity
- Ask agent
- Desks
- Ask agent
Key features
- Attractive courtyard development
- Highly efficient EPC rating of B
- Recently refurbished office accommodation
- Kitchen and WC’s
- Five parking spaces
Description
Unit 2A is a recently refurbished ground floor self-contained open plan office unit. The office suite has its own private ground floor entrance fronting onto the courtyard.
Court Farm Barns are recently refurbished, self-contained office units that offer flexible space located in a stunning rural environment.
Located in the village of Tackley, Court Farm Barns benefits from good access to public transport links including a mainline railway station with trains to Paddington and Marylebone. It is also located just off the A4260 Oxford to Banbury Road, 4 miles from Kidlington and 9 miles from Oxford city centre. It has a regular bus service to Oxford and is 7 miles from Oxford Parkway. Local amenities include a village shop, post office and public house.
More particularly the property features:
Attractive courtyard development
Units 2A has a highly efficient EPC rating of B
Recently refurbished office accommodation
Kitchen and WC's
Ample parking available
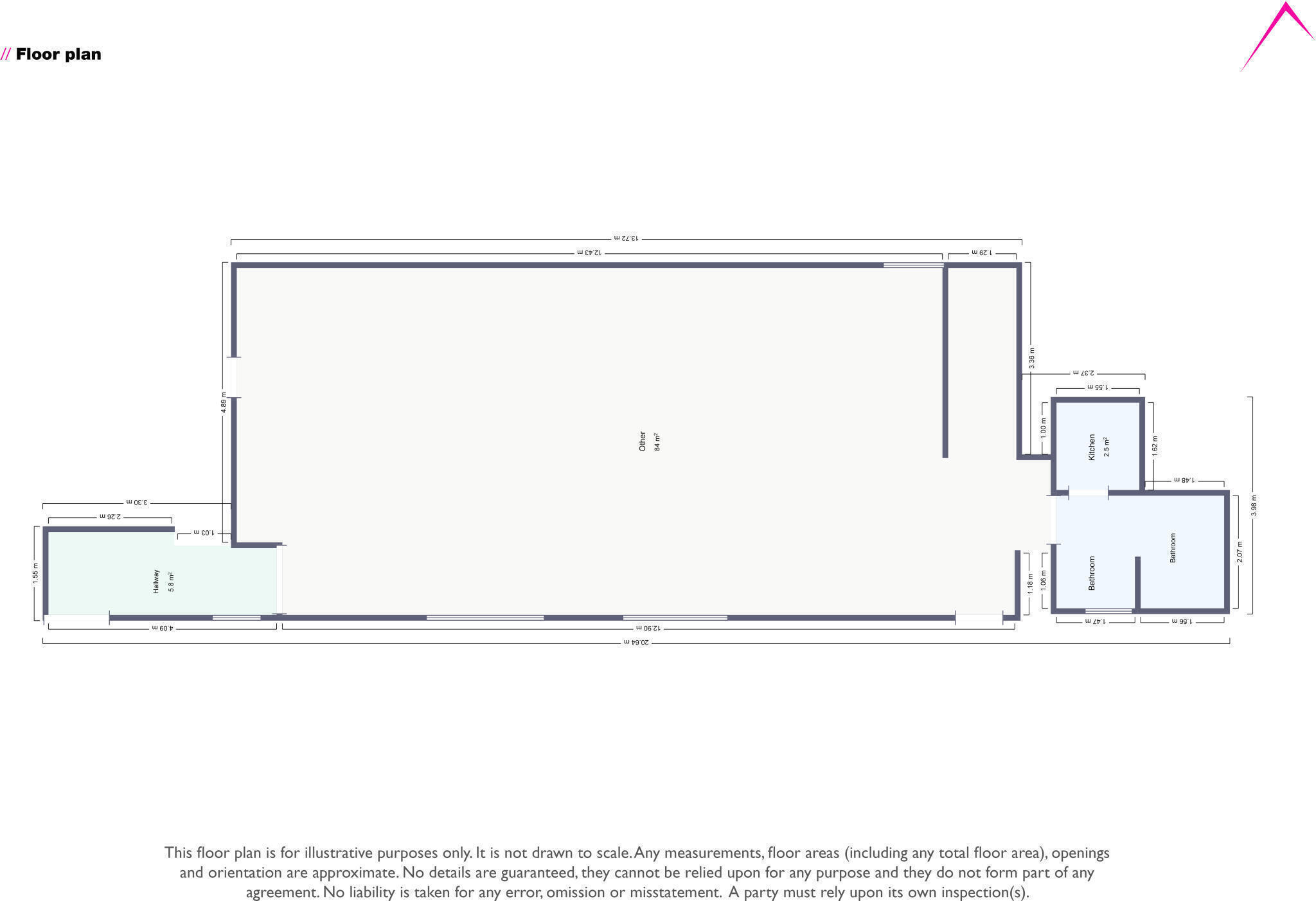
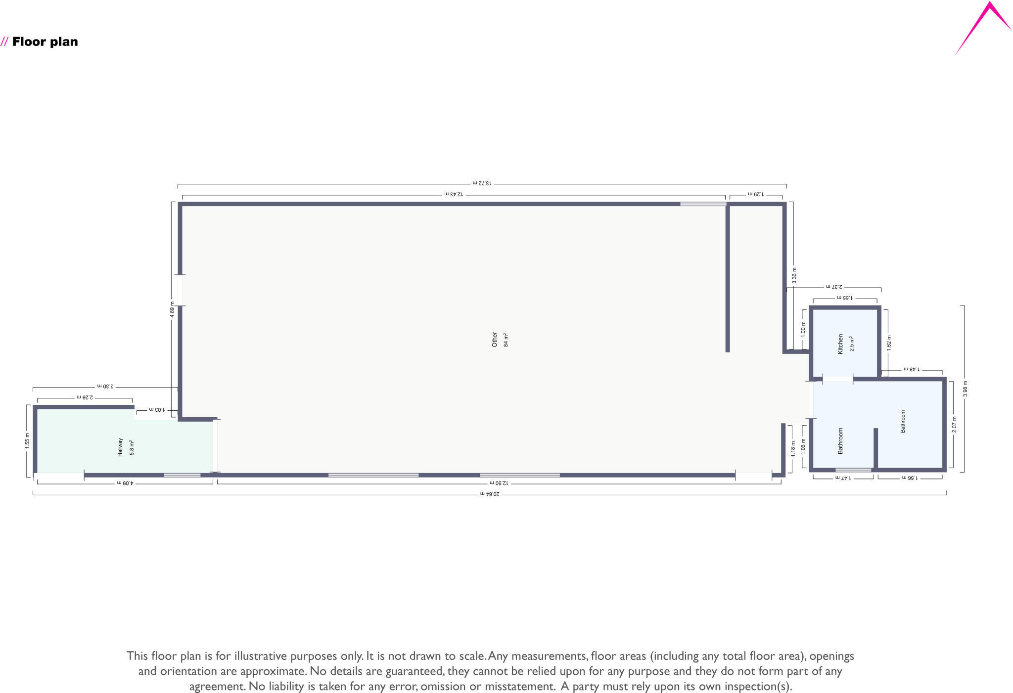
// Accommodation
Measurements are provided on a net internal area (NIA) basis:
Unit 2A - Ground Floor: 893.40 sq. ft.
// Services
Mains electricity, water and drainage are connected. These services have not been tested by the Agents.
// Leasehold
Unit 2A is available by way of a flexible lease on terms to be agreed.
// Rent
£17.50 per sq ft
// Service Charge
There is a service charge of £1.00 per sq ft. Further details are available on request.
// Insurance
The Landlord insures the building and recovers the premium from the Tenant.
// Business Rates
The Rateable Value for each unit:
Unit 2A - £23,000
(transitional relief may be available)
// EPC
Unit 2A has an Energy Performance Asset Rating of B (49).
Copies of the EPC certificate are available from the Agent
// VAT
All terms quoted are exclusive of VAT which is payable.
// Legal Costs
Each party to bear their own legal costs incurred in this transaction.
// Subject to Contract
Additional information
- Let type
- Long
- Let contract length
- Ask agent
- Rent obligation
- Fully repairing and insuring
- Status
- Available
- Service charge
- £893
- Business rates
- Ask agent

- Size
- Price
- Price per
- Primary use
- Traditional office
- Other use(s)
- Other leisure
- Condition
- Partial fit out
- Capacity
- Ask agent
- Desks
- Ask agent
Key features
- Attractive courtyard development
- Highly efficient EPC rating of B
- Recently refurbished office accommodation
- Kitchen and WC’s
- Six parking spaces
Description
Unit 2B is a recently refurbished first floor self-contained open plan office unit. The office suite has its own private ground floor entrance fronting onto the courtyard.
Court Farm Barns are recently refurbished, self-contained office units that offer flexible space located in a stunning rural environment.
Located in the village of Tackley, Court Farm Barns benefits from good access to public transport links including a mainline railway station with trains to Paddington and Marylebone. It is also located just off the A4260 Oxford to Banbury Road, 4 miles from Kidlington and 9 miles from Oxford city centre. It has a regular bus service to Oxford and is 7 miles from Oxford Parkway. Local amenities include a village shop, post office and public house.
More particularly the property features:
Attractive courtyard development
Unit 2B has a highly efficient EPC rating of B
Recently refurbished office accommodation
Kitchen and WC's
Ample parking available
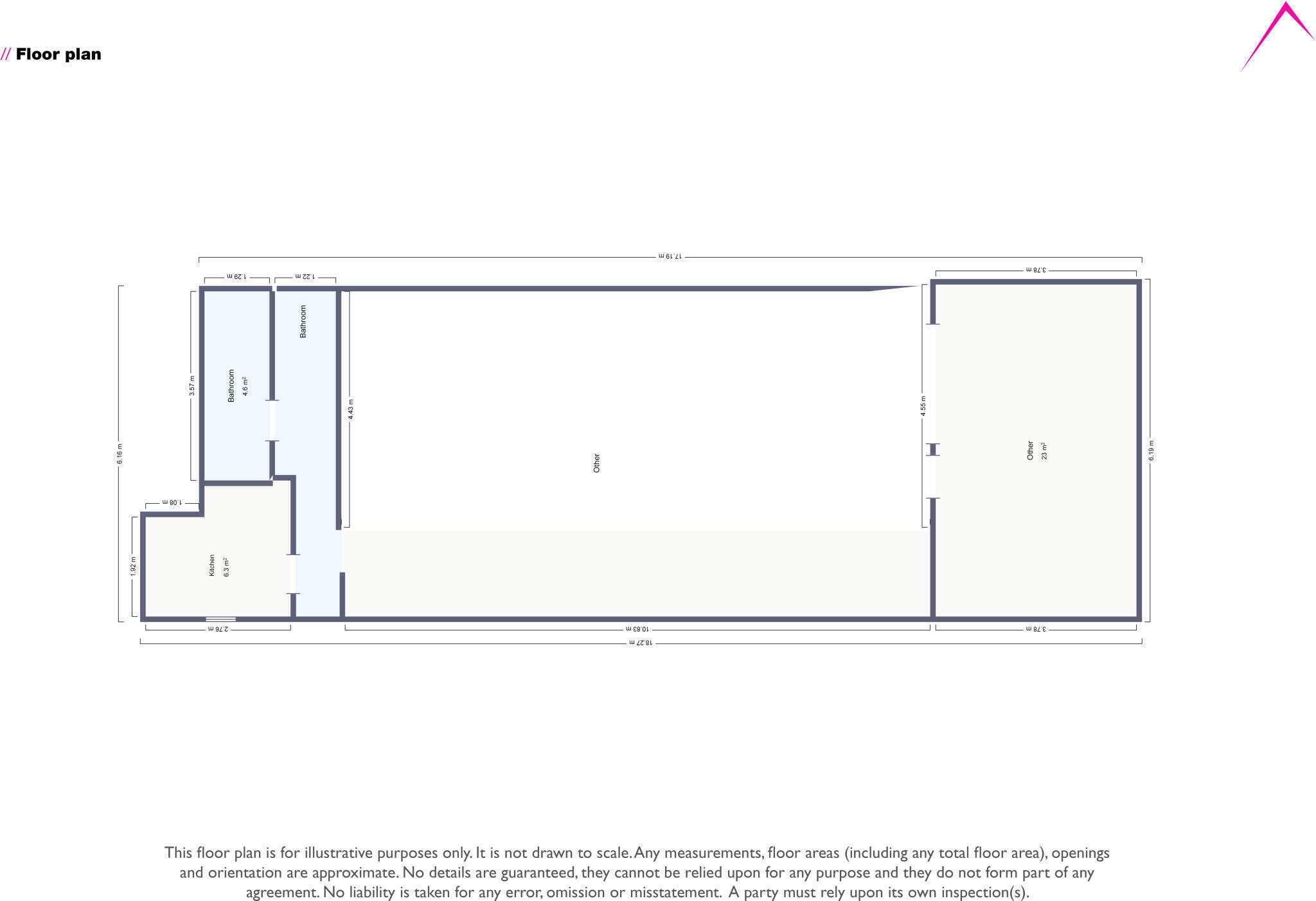
// Accommodation
Measurements are provided on a net internal area (NIA) basis:
Unit 2B - First Floor: 764.23 sq. ft.
// Services
Mains electricity, water and drainage are connected. These services have not been tested by the Agents.
// Leasehold
Unit 2B is available by way of a flexible lease on terms to be agreed.
// Rent
£17.50 per sq ft
// Service Charge
There is a service charge of £1.00 per sq ft. Further details are available on request.
// Insurance
The Landlord insures the building and recovers the premium from the Tenant.
// Business Rates
The Rateable Value for each unit:
Unit 2B - £20,500
(transitional relief may be available)
// EPC
Unit 2B has an Energy Performance Asset Rating of B (35).
Copies of the EPC certificate are available from the Agent
// VAT
All terms quoted are exclusive of VAT which is payable.
// Legal Costs
Each party to bear their own legal costs incurred in this transaction.
// Subject to Contract
Additional information
- Let type
- Long
- Let contract length
- Ask agent
- Rent obligation
- Fully repairing and insuring
- Status
- Reserved
- Service charge
- £764
- Business rates
- Ask agent

- Size
- Price
- Price per
- Primary use
- Other leisure
- Other use(s)
- Traditional office
- Condition
- Partial fit out
Key features
- Attractive courtyard development
- Recently refurbished office accommodation
- Kitchen and WC's
- Ample parking available
- Timber effect flooring
Description
Court Farm Barns are recently refurbished, self-contained office units that offer flexible space located in a stunning rural environment.
Located in the village of Tackley, Court Farm Barns benefits from good access to public transport links including a mainline railway station with trains to Paddington and Marylebone. It is also located just off the A4260 Oxford to Banbury Road, 4 miles from Kidlington and 9 miles from Oxford city centre. It has a regular bus service to Oxford and is 7 miles from Oxford Parkway. Local amenities include a village shop, post office and public house.
More particularly the property features:
Attractive courtyard development
Recently refurbished office accommodation
Kitchen and WC's
Ample parking available
Timber effect flooring
// Accommodation
Measurements are provided on a net internal area (NIA) basis:
Unit 4 - First Floor: 1,511 sq. ft.
// Services
Mains electricity, water and drainage are connected. These services have not been tested by the Agents.
// Leasehold
Unit 4 is available by way of lease assignment.
// Rent
£17.50 per sq ft
// Service Charge
There is a service charge of £1.00 per sq ft. Further details are available on request.
// Insurance
The Landlord insures the building and recovers the premium from the Tenant.
// Business Rates
The Rateable Value for each unit:
Unit 4 - £31,500
(transitional relief may be available)
// EPC
Unit 4 has an Energy Performance Asset Rating of C (67).
Copies of the EPC certificate are available from the Agent
// VAT
All terms quoted are exclusive of VAT which is payable.
// Legal Costs
Each party to bear their own legal costs incurred in this transaction.
// Subject to Contract
Additional information
- Let type
- Ask agent
- Let contract length
- Ask agent
- Rent obligation
- Fully repairing and insuring
- Status
- Available
- Service charge
- £1,511
- Business rates
- Ask agent

- Size
- Price
- Price per
- Primary use
- Traditional office
- Other use(s)
- Other leisure, Mixed use
- Condition
- Partial fit out
- Capacity
- Ask agent
- Desks
- Ask agent
Key features
- Attractive courtyard development
- Recently refurbished ground floor office accommodation
- Kitchen and WC’s
- Ample parking
- Good internal natural light from partially glazed frontage.
Description
Court Farm Barns are recently refurbished units that offer flexible space. Unit 7 comprises a large open plan office with separate meeting room.
Court Farm Barns are recently refurbished, self-contained office units that offer flexible space located in a stunning rural environment.
Located in the village of Tackley, Court Farm Barns benefits from good access to public transport links including a mainline railway station with trains to Paddington and Marylebone. It is also located just off the A4260 Oxford to Banbury Road, 4 miles from Kidlington and 9 miles from Oxford city centre. It has a regular bus service to Oxford and is 7 miles from Oxford Parkway. Local amenities include a village shop, post office and public house.
More particularly the property features:
• Attractive courtyard development
• Recently refurbished ground floor office accommodation
• Kitchen and WC’s
• Ample parking
• Good internal natural light from partially glazed frontage.
// Accommodation
Measurements are provided on a net internal area (NIA) basis:
Unit 7 - Ground Floor: 795 sq. ft.
// Services
Mains electricity, water and drainage are connected. These services have not been tested by the Agents.
// Leasehold
Unit 7 is available by way of flexible leases on terms to be agreed.
// Rent
£17.50 per sq ft
// Service Charge
There is a service charge of £1.00 per sq ft. Further details are available on request.
// Insurance
The Landlord insures the building and recovers the premium from the Tenant.
// Business Rates
The Rateable Value for each unit:
Unit 7 - £17,750
(transitional relief may be available)
// EPC
Unit 7 has an Energy Performance Asset Rating of E (101).
Copies of the EPC certificate are available from the Agent
// VAT
All terms quoted are exclusive of VAT which is payable.
// Legal Costs
Each party to bear their own legal costs incurred in this transaction.
// Subject to Contract
Additional information
- Let type
- Ask agent
- Let contract length
- Ask agent
- Rent obligation
- Fully repairing and insuring
- Status
- Available
- Service charge
- £795
- Business rates
- Ask agent
Building amenities
Additional costs may apply for some services – please check the full property description for more details.
- Air conditioning
- Central heating
- Natural light
- Open plan
- Communal gardens
- Pets allowed
- Twenty four hour access
Key features
- Attractive courtyard development
- Units 2A, 2B have a highly efficient EPC rating of B
- Recently refurbished office accommodation
- Kitchen and WC's
- Ample parking available
Description
Located in the village of Tackley, Court Farm Barns benefits from good access to public transport links including a mainline railway station with trains to Paddington and Marylebone. It is also located just off the A4260 Oxford to Banbury Road, 4 miles from Kidlington and 9 miles from Oxford city centre. It has a regular bus service to Oxford and is 7 miles from Oxford Parkway. Local amenities include a village shop, post office and public house.
More particularly the property features:
Attractive courtyard development
Units 2A, 2B have a highly efficient EPC rating of B
Recently refurbished office accommodation
Kitchen and WC's
Ample parking available
// Accommodation
Measurements are provided on a net internal area (NIA) basis:
Unit 2A - Ground Floor: 893.40 sq. ft.
Unit 2B - First Floor: 764.23 sq. ft.
Unit 4 - First Floor: 1,511 sq. ft.
Unit 7 - Ground Floor: 795 sq. ft.
// Services
Mains electricity, water and drainage are connected. These services have not been tested by the Agents.
// Leasehold
Units 2A, 2B, & 7 are available by way of flexible leases on terms to be agreed. Unit 4 is available by way of lease assignment.
// Rent
£17.50 per sq ft
// Service Charge
There is a service charge of £1.00 per sq ft. Further details are available on request.
// Insurance
The Landlord insures the building and recovers the premium from the Tenant.
// Business Rates
The Rateable Value for each unit:
Unit 2A - £23,000
Unit 2B - £20,500
Unit 4 - £31,500
Unit 7 - £17,750
(transitional relief may be available)
// EPC
Unit 2A has an Energy Performance Asset Rating of B (49).
Unit 2B has an Energy Performance Asset Rating of B (35).
Unit 4 has an Energy Performance Asset Rating of C (67).
Unit 7 has an Energy Performance Asset Rating of E (101).
Copies of the EPC certificate are available from the Agent
// VAT
All terms quoted are exclusive of VAT which is payable.
// Legal Costs
Each party to bear their own legal costs incurred in this transaction.
// Subject to Contract
- Let type
- Long
- Let contract length
- Ask agent
- Status
- Available
- Service charge
- £893
- Business rates
- Ask agent
- Use class
- E
- Floors in building
- 2
An Energy Performance certificate helps you understand the current energy efficiency of a property.
Read more about EPC requirementsAsk agent
- BREEAM rating
- Ask agent
- Environmental description
- Ask agent
Brochure
Court Farm Barns, Medcroft Road, Tackley, Oxfordshire
Adalta Real Ltd specialises in all aspects of commercial property agency throughout the UK. We act as letting / selling & acquisition agents as well as development consultants for a wide range of clients. In addition we actively seek retail led mixed use and food retail development opportunities to develop 'in' house' or by way of joint venture agreements. Areas of interest include, but are not limited to, retail led mixed use schemes, strategic land promotion and roadside / food store development across the UK.
Your search history
You have no recent searches
Disclaimer - Property reference Court_Farm_Barns_. The information displayed about this property comprises a property advertisement. Rightmove.co.uk makes no warranty as to the accuracy or completeness of the advertisement or any linked or associated information, and Rightmove has no control over the content. This property advertisement does not constitute property particulars. The information is provided and maintained by Adalta Real, Banbury. Please contact the selling agent or developer directly to obtain any information which may be available under the terms of The Energy Performance of Buildings (Certificates and Inspections) (England and Wales) Regulations 2007 or the Home Report if in relation to a residential property in Scotland.



























































