Speke Hall Industrial Estate, Spindus Road, Liverpool
Size
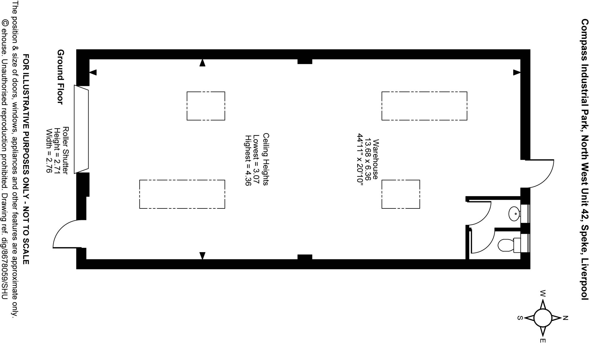
939
Lease length
Ask agent
EPC
Ask agent
Parking
Ask agent
- Price per
- Primary use
- Light industrial
Key features
- 24 Hour Access
- WC Facilities
- Car Parking
- CCTV
- Premier Industrial Location
- Secure Estate
Description
The park is split into 3 zones, offering various different unit sizes to suit all types of businesses. The Compass Network Centre offers 500-1000 sq ft units for start up businesses, with Compass West and East catering for medium to large customers, currently including SIXT Rent a Car and Wolseley.
The estate benefits from 24-hour on-site security and access with a generous parking provisions for staff and customers.
- Clear height
- Ask agent
- Yard depth
- Ask agent
- Let type
- Ask agent
- Let contract length
- Ask agent
- Status
- Available
- Service charge
- Ask agent
- Business rates
- Ask agent
- Use class
- Ask agent
An Energy Performance certificate helps you understand the current energy efficiency of a property.
Read more about EPC requirementsAsk agent
- BREEAM rating
- Ask agent
- Environmental description
- Ask agent
Speke Hall Industrial Estate, Spindus Road, Liverpool
Indurent is a leading developer and manager of industrial and logistics spaces across the UK, with a large portfolio.
We provide a wide range of industrial units and estates that drive economic growth by bringing jobs and investment to local communities. Our expertise and resources empower businesses of all sizes to thrive, and we take pride in playing a role in their success.
We understand that each business has unique operational needs, and we are dedicated to providing tailored solutions that enable growth across the UK. Whether it’s small start-ups or multinational companies, we have the space and the in-house expertise to support our customers’ success, no matter the scale of their operations.
Your search history
You have no recent searches
Disclaimer - Property reference NWUnit42Compass. The information displayed about this property comprises a property advertisement. Rightmove.co.uk makes no warranty as to the accuracy or completeness of the advertisement or any linked or associated information, and Rightmove has no control over the content. This property advertisement does not constitute property particulars. The information is provided and maintained by Indurent, London. Please contact the selling agent or developer directly to obtain any information which may be available under the terms of The Energy Performance of Buildings (Certificates and Inspections) (England and Wales) Regulations 2007 or the Home Report if in relation to a residential property in Scotland.




